ZITOMORI Architecture
www.zitomori.com
ZITOMORI是由Maurizio Zito和Hikaru Mori在米兰和阿维利诺建立的建筑设计工作室。两人分别于1984年毕业于威尼斯美术学院,1991年毕业于东京美术大学,并获得二级硕士学位。
ZITOMORI is an architectural design studio set up by Maurizio Zito and Hikaru Mori, based in Milano and Avellino. The two of them graduated respectively at Venice IUAV in 1984 and at Tokio University of Fine Arts where she achived a second level master in 1991.
当我们开始考虑为马赛托建造一个地方时,我们知道我们需要一个非常独特的概念。一个几乎神圣的地方。葡萄酒的架构可以代表公司,加强品牌认同,体现其理念。它应该是一个人、技术和完美的生产和保存空间的地方。
Quando abbiamo iniziato a pensare alla costruzione di un luogo per Masseto sapevamo che era necessario un concetto molto individuale. Un posto quasi sacro. Larchitettura per il vino dove rappsentare l’azienda, rafforzare lidentità del brand e incarnare la sua filosofia. Dovrebbe essere un luogo per persone e tecnologie, e uno spazio perfetto per la produzione e la conservazione.
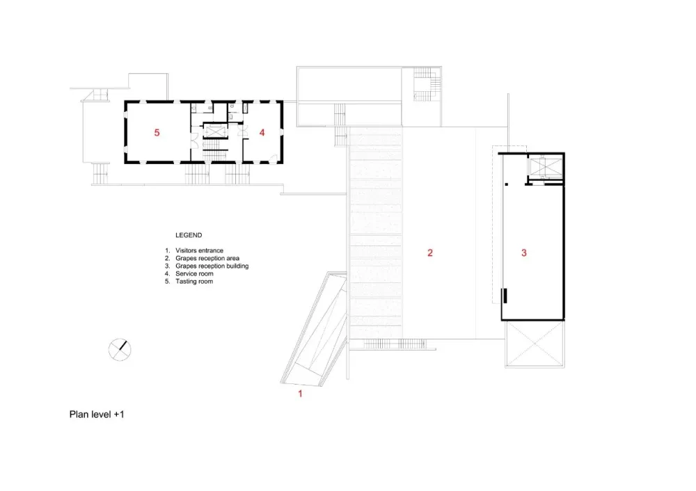
在Masseto的例子中,有两个考虑。首先,保护领土。地下室不需要独立或占主导地位。酒窖必须与土地、葡萄园、小山和历史建筑Masseto相结合。其次,将建筑与重力生产过程结合起来。
Nel caso di Masseto, sono state fatte due considerazioni. Prima di tutto, pservare il territorio. La cantina non deve essere indipendente o dominante. Bisogna integrare la cantina con il territorio, il vigneto, la collina e l’edificio storico Masseto. In secondo luogo, integrare l’architettura con il processo produttivo a gravità.
我们认为采石场是这个项目的中心主题。这是对一个致力于揭开马赛托每一年秘密的工作场所的致敬。这也是对人类努力的更广泛历史及其与自然的互动的赞扬。
Abbiamo pensato alla Cava come tema portante del progetto. È un omaggio a un luogo di lavoro dedicato a svelare i segreti di ogni annata di Masseto. È anche un tributo alla più ampia storia dello sforzo delle persone e alla sua interazione con la natura.
我们被要求创建一个新的架构,但与此同时,创建一个永恒的架构对我们来说非常重要。
A noi è stato richiesto di creare una nuova Architettura, ma allo stesso tempo per noi era molto importante creare un’Architettura senza tempo.

