项目名称 | 融创翡翠海岸城体验中心
项目地点 | 浙江省温州市平阳县
业 主 方 | 融创·中国 东南区域
设计面积 | 3983㎡
完工时间 | 2020.05
设计内容 | 室内精装
设计公司 | 北京栋三尺设计有限公司
精装设计团队 | 李子兆 夏朋君 张弓发 吴丹丹 尹嘉妮 徐磊 王星运 赵阳阳
机电设计团队 | 王艳丰 朱剑辉 张月峰
摄 影 | 成都镜上文化传媒有限公司
连绵起伏的山,一望无际的海,奔腾不息的江,融合成就一座新城。让“山海一色,山水交融”的生态之美渗透进居住者的生活体验中,重新定义未来健康住宅新标准。展望未来社区新规划,打造一个以人为本的全配套生活体验中心,融创翡翠海岸城让美好时光停留在这里。
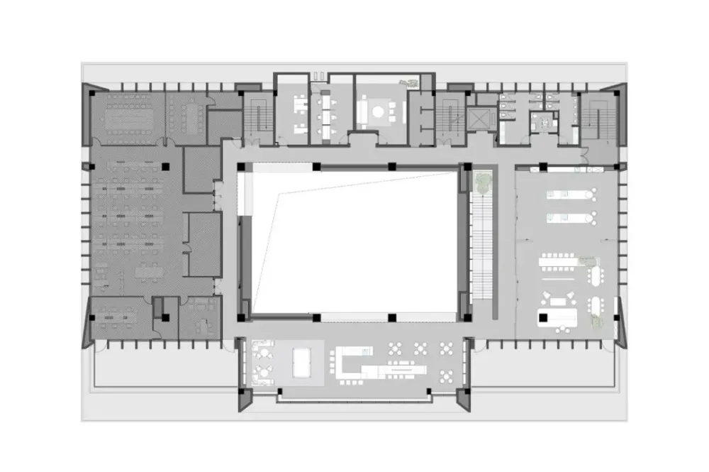
踏入空间,前厅项目标志就以绝对的版面占据视野范围,质朴石材铺底点缀海洋动物装置更突显项目主题。将沙盘展示与宣传区位放置于中轴线上,主动线彰显体验中心的重点。留白艺术让空间呈现“疏而不空”,让进入者畅游其中而想象自由。
细细体验从沙盘区到达项目宣传区的过程,契合由浅入深、动静结合的现代观赏习惯,而生动的模型全貌展示和动画宣传先入为主。以轻盈的海洋动物装置点亮沙盘区上空,减轻空洞感,光影流动间犹如置身于漂浮的洋流中,昭示着海岸城优越的自然环境。
移步洽谈空间,感受中央开放式水吧带来的场景互动,更多的可能性在这里发生。去除掉多余的修饰,最大程度地减轻了空间拥挤度,简洁舒适的观感油然而生。落座于两侧相对私密的洽谈区,序列的手工艺术玻璃隔断营造朦胧美,隐约呈现空间的趣味性。
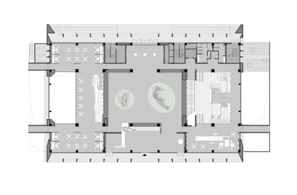
让生活的气息弥漫二层空间,驻足于温暖的阳光中,远眺大桥江水青山,近看儿童嬉戏玩耍,真实的幸福感在这个空间发酵。挑选一个时刻,在乐活区来一场桌球,品一壶好茶;在烘焙厨房,体验手工的魅力,解答生活的疑惑,获取快乐的秘诀,生活有时很简单。
深入地下,探秘贯通一层及地下一层的图书洽谈区及儿童乐园。以阶梯状架构轮廓,拾级而上,手拂书香。错层而设,或围合而坐,畅谈古今之事;或独立一侧,清茶一盏,注入精神力量。打造小方格式天花,足够的高度为长线型灯饰提供条件,将绿植和动物装置放置其中,每一个角落都散发出自然和艺术的气息,整体形成趣味性的交流和阅读场景。
将儿童乐园布局在图书洽谈区及儿童绘本区邻侧,书本与玩乐成为最好的伙伴,让儿童的世界充满想象。同时为亲子互动打造一个共享空间,让每一次陪伴和每一个微笑都为场景注入独一无二的画面。
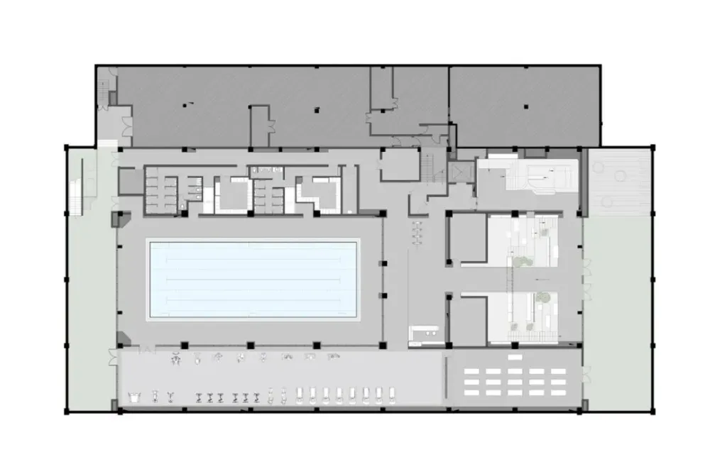
用健身会所锁定地下一层空间,不同场景的切换都在这里留下痕迹。健康成为空间的隐形内核,肆意驰骋于用心建造的泳池中,让世界安静得只听见自己的呼吸声,在游动中与自己对话;挥散汗水于健身空间中,释放全新的细胞活力。
焕新时代人居新篇章,自然底蕴成就下的品质生活在这里不断拓展。体验中心由此成为未来社区规划中具有前沿性的聚焦点,捕捉不同动向的理想生活体验,为美好的生活构筑新场景,唤醒居住者内心最纯粹的幸福感。
栋三尺设计(DSC • DESIGN)是一支坚持以国际化思想处理实际设计问题的机构 。团队创始人在大型设计机构共事多年,形成了默契的工作方法和共同认可的价值观,机构设立以来,希望以新锐的设计理念、严谨的创作思维、负责的配合精神,执着并务实地专注于设计工作本身,通过专业且高效的服务为业主解决客观问题,并以此体现团队价值。
团队以构建一个具有领先意识的专业设计服务平台为目标,从运营策划、空间创造、建筑机电室内一体化、软装配饰、艺术装置定制设计以及工程把控等环节,为地产及文化机构、酒店、总部办公、品牌连锁等企业提供相关的整体服务。

