Beijing Reflection Vancouver
感受京城百年老字号的品牌新生
Feel the century-old brand of Beijing rebirth in Vancouver
北京1864 – 2020温哥华
1864~2020,156岁的全聚德,有着太多故事。
从北京到温哥华,设计师利旭恒期望这里不仅仅是个全聚德,而是思考如何将全聚德转化成为一个载体,将中国的文化,美食,艺术及传统习俗等,透过这个北京中华老字号在海外传播出去。
“面对这百年历史的品牌,我们没办法赋予全聚德一个年轻时尚的概念,但也更不愿意做一个大红牌楼或是个复刻版的京城宫廷。中国许多传统民俗文化活动的转化成为空间中视觉艺术的创作,成为了全聚德温哥华店的创意主轴。”
全聚德烤鸭源于紫禁城,因此设计师在设计时使用的素材很多来自故宫,透过提炼后而简化,将传统的中国文化与元素转化为简洁时尚更适合当代审美。
设计概念的主轴则是来自中国传统民俗“贴春牌”,透过幽默的手法将严肃的历史转换为有趣而令人亲近。
△全聚德源于北京故宫的夕阳余晖
加拿大夕阳下的全聚德温哥华店,全聚德温哥华店的夕阳余晖,设计师试图将北京故宫的氛围移植到全聚德温哥华店里。
“Fu”is coming! Beijing is coming!
全聚德温哥华 设计概念
中国许多传统民俗文化活动的转化成为空间中视觉艺术的创作,成为了全聚德温哥华店的创意主轴。
贴春联,请福字——是中国春节传统带来福气的习俗,福字倒贴的习俗来自清代北京城恭亲王府,倒贴“福”字有着福到了之吉祥寓意。随后由达官府第传入百姓人家,人们纷纷倒贴福字在家门口,并都愿过往行人或顽童念叨几句:“福到了!福到了!”
北京最美景观之一,景山眺望故宫。这景观之所以迷人之处,主要是她的飘渺不定,神龙见首不见尾;经常有雾霾缭绕北京城,什么都看不清! 有时却又突然烟消云散,晴空万里,让人们可以一窥全貌。
△全聚德温哥华店立面图
全聚德温哥华店的用餐大厅顶上满满的颠倒过来的北京建筑群,概念来自从景山挑望北京故宫建筑群,有故宫太和殿,天坛,更有许多北京当代建筑穿插其中,大部分人都能找到自己认识的建筑。这些建筑为什么是颠倒的? 设计师试图透过“福”字倒贴的习俗,“福到了!”转化成 海外异地与家乡联系的寓意 。
“我最希望来到全聚德温哥华店的人都念叨几句:北京到了! 北京到了!” 设计总监利旭恒说道,“让所有来到这里的人感觉到了浓浓的京味,让所有海外的华人到了这里就像是回家了,这是我们最想达到的设计意图。”
西式空间架构下中式美学视觉尺度
Chinese Visual Aesthetics in Western Logic Space
进入接待区,故宫藏书阁成为主要的视觉形象,希望顾客进入餐厅之时有心情能够沉淀下来,书架与领位台的蓝色来自于紫禁城里的藏书之处文溯阁牌匾上的中国蓝。
全聚德温哥华店入口迎宾柜台全聚德150年的老牌匾,承载了所有北京人的回忆。
书架陈列亦是参考了藏书阁的书架与中式博古架的结合。复刻版的全聚德牌匾高挂在端头,牌匾底下则是规划了在温哥华的西餐厅里常见的玻璃壁炉。领位台则是特别在景德镇烧制的瓷器。在中式的视觉下空间动线则是西式的,入口右边是餐厅的酒吧区,左边则是用餐区,这是为了符合当地顾客的用餐的习惯。
△全聚德温哥华店大厅餐区烹调文字墙
活字印刷术是中国四大发明之一,设计师利用这个元素希望传达中国独有的文化与智慧,中国料理不说菜系的光烹饪方式就有数十种,例如: 炒炝炊煮煎爆炸烚滚氽灼涮焗焖烩蒸炖煲熬煨溜烧卤酱…… 因此墙上面的文字都是与烹调食物有关,这也表现出中国料理海纳百川。
△全聚德温哥华店大厅餐区烹调文字墙
说好不愿意复刻,设计师还是忍不住留下了一段紫禁城的大红城墙在温哥华,这种红也是所有北京人最熟悉的颜色。
Chinese installation art
酒吧区的天花用的是铝板制作的现代版本中式斗拱,是造型,也是种文化的表现,斗拱既是承重构件,又是艺术构件,利用复杂的采用榫卯结合将屋顶的重量经由梁架、立柱传递至基础。遇有强烈地震时,斗拱结构虽会“松动”却不致“散架”,消耗地震传来的能量。斗拱柔中带刚,借力使力有如太极,斗栱虽然坚固但所有的榫卯零件却一个都不能少,少了任何一个小零件就会散架。
酒吧顶端环绕古建筑斗拱,既是结构也是美好的中华艺术的表现。设计师将斗拱利用3D拼图的方式表现,沉重的斗拱转化为轻盈的文化装置艺术品。
中式斗拱利用3D拼图的方式表现,沉重的斗拱转化为轻盈的文化装置艺术品。
酒吧空间是多功能的,平常是个酒吧区,当有需求时也可以成为一个20人聚会的大包房。
5D全沉浸-视觉艺术餐饮体验
5D iDen RoomVisual Arts
餐厅里有浓郁的紫禁城感受,自然也会有宫外的最接地气的北京胡同,朴实的灰色北京灰可以说是北京胡同的代表色,灰砖更是老北京胡同里的最重要元素之一。
设计师将灰砖使用在许多过度的廊道空间,这让温哥华的顾客立刻穿越走在老北京胡同里,胡同有里面是一个让人惊叹的视觉飨宴,推开这大红门,是个特殊的包房,透过高科技5D技术达成全沉浸式视觉艺术餐饮体验。
△全聚德温哥华店户外用餐区
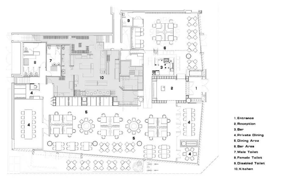
△全聚德温哥华店平面图
近年,全聚德尽管生意大不如前,国内舆论负面消息不断,设计团队仍试着透过全聚德自身的文化底蕴来改变目前的窘境,1864年成立与北京的全聚德,2020年文化传承在温哥华,全聚德这一次朴实无华的转身,试着让大家回头看看这老朋友,让大家看到这百年老字号的品牌新生。
△全聚德温哥华店开工纪念
设计总监利旭恒与温哥华全聚德张总伉俪
2016年7月15日一家人在纽约SOHO刚开业的Chefs Club吃午饭,我接到来自温哥华的电话,得知全聚德要在当地拓展一家海外店,二话不说隔天起身直飞温哥华。温哥华张先生与张女士是一对坦率诚恳又可爱的夫妻,也不像是个商人。他们来自北京,早年就移民加拿大,虽然离家万里,跟我聊起北京的大小事却是既熟悉又兴奋。 我想着也是缘份,物以类聚的缘份,当年我们都作了相同的决定,他们从北京来到了温哥华定居,我则从台北移居到了北京。 第一餐在温哥华,带着我来到温哥华很有名气的台湾餐厅吃饭,我很开心的说:“还好不是去牛排馆。”他说,他明白出门在外的人永远是向往着家乡的味道。在温哥华一口卤肉饭,场景瞬间感觉就像是回到了台湾,满满的温暖小确幸涌上心头,对家乡的牵挂是我们两家人的共同点。 有一段话,诉说着出外人心中对故乡的牵挂:无论脚步走多远,在人的脑海中,只有故乡的味道,孰悉而顽固,他就像一个味觉GPS定位系统,一头锁定了千里之外的异地,另一头则永远牵绊着记忆深处的故乡。 北京烤鸭的味道,是北京的味道,更是所有北京人味蕾中的记忆。 聊起北京点滴总是停不下来,一个人,还是一件事,只要是关于北京都往往可以衍生出许多不同的话题。他说:饮食在北京非常重视节气,冬至饺子,夏至面,立春薄饼,立秋贴秋膘。任什么节气到了,必得配上最适合的食物。北京的春节是他最美好的回忆,贴春联,请福字,鸡鸭鱼肉,蒸馒头。 这情怀,带着家乡味道,这也让他决定想作一件的让自己不遗憾的事,在温哥华亲手打造一家中华老字号全聚德。作为一个台湾设计师,当下有了最强烈的使命感。 行动起来吧!设计只是一个开始!我们会从一开始就百般用心!甲方完成了梦想,而我们,则会尽力的让他这个梦想变得更加丰满!北京中华老字号全聚德百年兴衰留下太多的故事!我们有幸见证并参与了其中一段。 ——利 旭 恒
项目名称 :全聚德 温哥华店
设计公司 :古鲁奇公司
设计团队 : 利旭恒,季雯,Andy张
家具 : stellar works , 漾美
施工单位(中国) : 京木公司
施工单位(加拿大) :ETRO Construction Limited
项目位置 : 温哥华,加拿大
项目面积 :692.5平方米
完成时间 :2020年05月
摄影 : William Luk /Mayowill Photography

