北京OPPO超级旗舰店,位于北京华熙LIVE·五棵松。设计师构想了一个相对自由的空间,不过度强调华丽的设计理念,而是还原人与氛围的自然关系。
沿着建筑外部的L型路径,临街立面采用12米高,6.4公分厚度的多层夹胶中空玻璃幕墙,形成凸曲面的体量,接入公共空间。
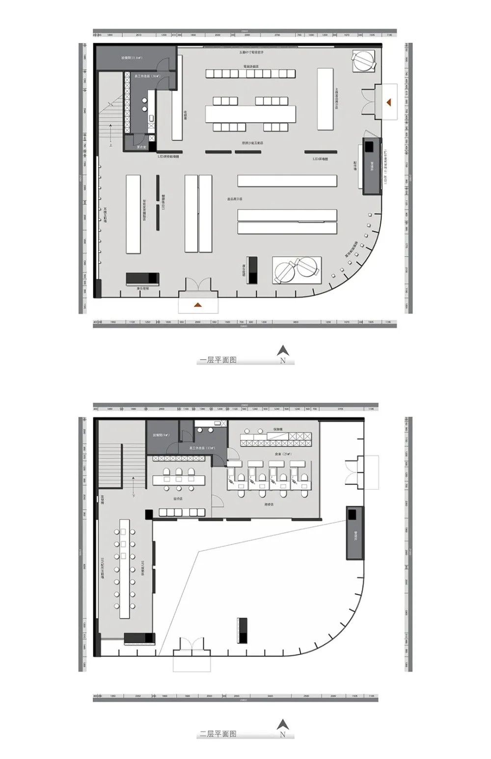
项目地点位于“下沉式广场“,最初为解决内部两层结构引致的采光不足的可能及层高的局限,设计师选择拆除二楼的绝大部分面积,将空间的单层高度拔高至近10米,扩展丰富了空间视角。
空间中置入6块8米高的LED屏幕模块,用于呈现动态的视觉观感。并通过机械模组的随机性移动增强了演示画面在空间中的流动感。
空间内相对的趣味点是在墙面设立的触发式互动装置,通过摘戴耳机的动作,使视-听达成交互联动体验。
二楼部分被保留下来的空间,依据不同的使用需求,设置了维修部及售后等服务类沟通环境。
作为东仓与OPPO合作的第三家超级旗舰店,设计师希望在此项目的设计中,营造出轻松的状态,鉴于这个充斥各种文化色彩的时代,希望弱化空间内明确的符号定义,以丰富的经验及严谨的逻辑呈现诚实的结果。
项目名称:北京OPPO超级旗舰店
项目地点:北京华熙LIVE五棵松
完成时间:2019年5月
建筑设计:DOMANI东仓建设
室内设计:DOMANI东仓建设
艺术装置:A-V桉和韦森
主案设计:张星 Vincent Zhang | DOMANI东仓建设
协作设计:史静雯 Eve JW 等 | DOMANI东仓建设
家具品牌:RIVA 1920 | 意大利
照明工程:广州帕加尼照明科技有限公司
施工单位:北京四海嘉禾建筑装饰工程有限公司
张 星 | Vincent Zhang
著名设计师,中国设计名片级人物,享有极高声誉。1992年进入设计领域 2004年创立香港东仓建设,帮助众多企业镬得全新视觉体验的同时协助其镬得更高的营利可能,并带领团队拿下过百项设计大奖。
DOMANI 东仓建设成立于2005年,坐落于中国广州。致力为不同行业的前瞻性客户提供顶级的建筑、室内及产品的创意与设计。并为市场贡献完整的高水准商业设计作品,来帮助众多企业获得全新的空间体验。及通过高溢价的空间作品带来卓越的市场反馈。东仓建设作品已囊括诸多国际权威赛事殊荣,并成为亚洲地区顶级设计机构之一。
Headquarted in Guangzhou, China, DOMANI has committed to provide design excellence for each and every forward-looking project in architecture, interior and products since its inception in 2005. We devise integrated, sustainable design solutions which exceed client’s expectations. With high pmium commercial space solutions, our energy and competency have attained remarkable market feedbacks. Awared by pstigious international prizes, we have consistently ranked amongst the top architecture and integrated design studios in Asia.
DOMANI 东仓建设秉持严谨的职业态度、卓越的设计团队与全面的项目控管模式,并结合庞大的项目顾问资源系统,通过多元化的空间作品呈现更具国际视野的企业态度。
DOMANI adheres to strict code of professional conduct . We are a team of diverse talents, working alongside with a great number of other specialist consultants. Through comphensive project management, we strive for the best in various architecure projects. All of our responsible design solutions reflect an international perspective.
△OPPO 新加坡旗舰店
△OPPO 深圳旗舰店
△OPPO ID-工业产品设计部办公室

