设计师Artem Trigubchak和Lera Brumina为Kovalska公司(乌克兰最大的建筑材料制造商和乌克兰主要的开发商之一)设计了这间办公空间。有趣的事情是,在乌克兰首都有超过70%的工程都是用Kovalska公司的混凝土建造的。
1120㎡的办公室位于苏联时代的一个建筑中,同时这里也是Kovalska公司的一个工厂。设计师的灵感来自于建筑外立面一面巨大的马赛克外墙和原始空间的粗狂线条,设计师将这些元素用作设计的起点。
Trigubchak和Brumina说:“我们对苏联时期的建筑有着无尽的热爱,并且受到了很多的启发。”“我们真的想在不改变建筑原环境的情况下创造一个舒适的工作空间。”
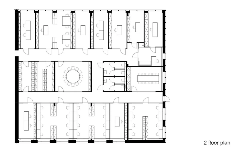
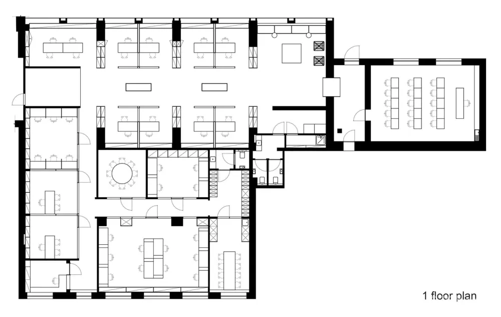
办公室的一层空间是销售部门。二楼是Kovalska公司办公区域,不对外开放。由于该公司本身是制造建筑材料的,所以在办公室空间内部用了大量本公司生产的材料和饰面,用来展示给客户使用。比如,等待区的隔断使用切好的混凝土板组装而成的,地板是用铺路石制成的。
在一些地方,沙子和大理石碎片被用作墙面装饰材料,混合的水磨石地板也专门为这个内部空间而开发使用。设计师除了本身的设计任务外,还在办公室内部展示了Kovalska公司各种系列的产品材料。

