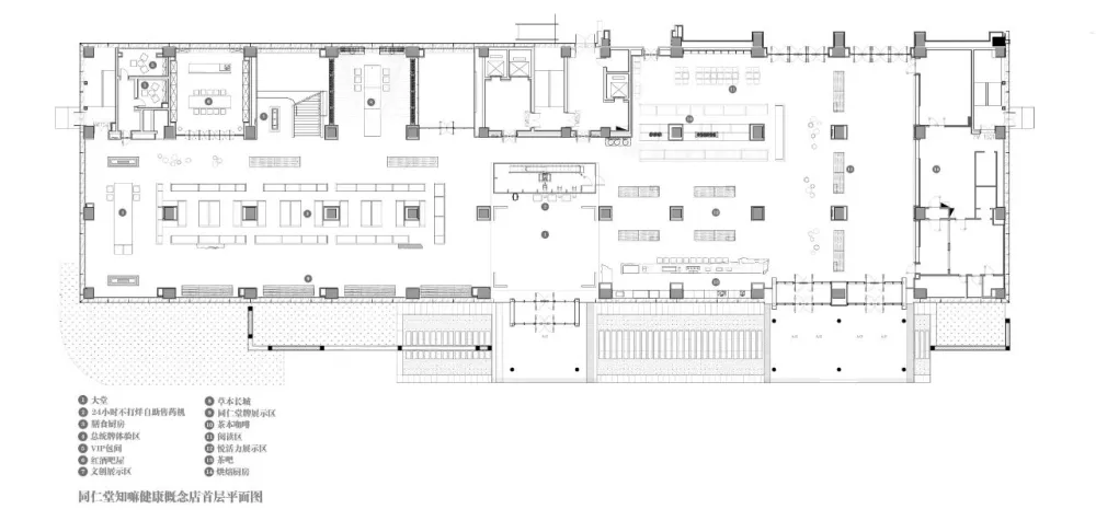
在零店一楼的“食品”主题空间,健康配方解决方案可以在一站提供。这里的美食、美酒、中西茶、焙烤区分布在两千平方米的空间内。
In the “Food” themed space on the ground floor of the zero store, the health recipes solutions can be offered in one stop. Here, the food, wine, Chinese and Western tea and baking areas are distributed in the two thousand square meters space.
在深灰色吧台围成的古老的饮食餐厅里,名厨们根据四季的变化开发出各种秘宫营养饮食。无论是品尝一杯健康咖啡还是饮用葡萄酒,都是揭开这个配方的最佳方法。
In the ancient diet dining hall enclosed by the dark gray bar, well-known chefs have developed various secret palace nourishing diets according to the four seasons. Whether tasting a cup of health coffee or drinking wine is the best solution to unfold the recipe.
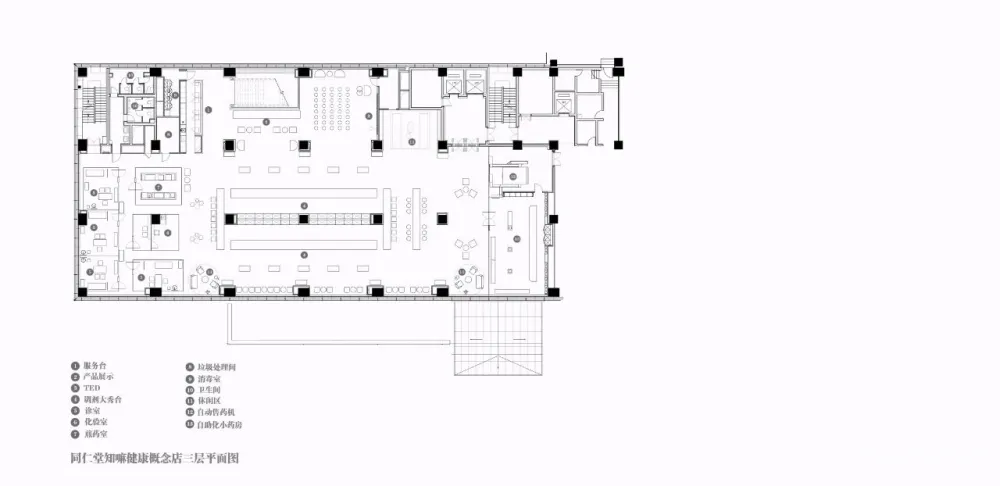
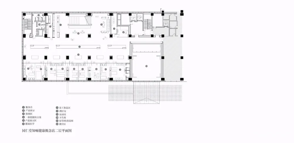
另外两个主题“询问”和“康复”设置在zero store的二层。同仁堂对“问诊”空间的体检、“恢复期”空间的亚健康管理与理疗等功能区进行了整理。
Another two main themes of “Inquiry” and “Convalescence” are set on the second floor in the zero store. The functional areas like the body examination of “Inquiry” space and the sub-health management and physical therapy of “Convalescence” space are arranged in order by Tongrentang.

