距离影响交往方式
美国人类学家爱德华·霍尔博士为人际交往划分了四种距离,戈夫将相遇定义为「公共场合人们之间持续性的相互注意」。人类是天生的社会性动物,人类就是生活在不同规模和类型的群体之中。社会群体是由关系建构起来的,这种关系是由个人所处位置的相关性构成的。在这个特殊的结构中个体活动会牵连到整体的结构活动,另一方面整体结构也影响并制约着个体的活动。同时,相类似的个体行动者在社会空间中的位置也是接近的,并拥有相似的性格、兴趣和实践活动。小尺度空间让人感到亲近,可以方便更展开的话题,大尺度的空间则有更大的包容性和可能性。不同距离所产生的交流活动也各有不同,关于距离与人活动的关系随处可见。
Distance affects the way of communication
Dr. Edward Hall, an American anthropologist who divides four different types of distances from interpersonal relationships, and the renowned socialist Erving Goffman defined “to meet” as “the constant mutual attention of people in public places.” Human beings are natural social animals and supposed to live in different sizes and types of groups, and the social group is constructed by the relationship, which is constituted by the relativity of the individual’s position. In this special structure, the individual activity will influence the whole structure, on the other hand the whole structure also affects and restricts the individual’s activity. In the social space, at the same time, the positions of similar individuals who share similar characters, interests and practical activities are also close. A small-scale space makes people feel close to each other, however a large-scale space has greater inclusiveness and possibility.
The ways of communication produced by different distances between people are respective, and the relationship between distance and human activities is also ubiquitous.
▼距离影响交往方式 Distance affects the way of communication

探索新时代语境下的社交关系
Exploring the Social Relationship in A New Age
在传统的茶饮社交空间当中,分散式的座位为人们提供了私密的交流方式,喜茶dp123店作为一个系列呈现,旨在探讨新时代中,人与人之间在现实世界里的距离,以及人们「坐下来」的另一种方式。在喜茶,你可以自由地「一人小憩」,也可以制造「二人时光」的浪漫,还可以享受「多人相聚」的欢乐。喜茶不只是一家满足你口腹之欲的茶饮店,更代表着一种全新的社交方式与空间。
In the traditional tea-drinking spaces, distributed seating provides a way for people to communicate privately. The Heytea DP123, as a series of presentations, takes aim at exploring the distances between people in reality for our new era and another way of “siting down.” In Heytea, one can relish his or her tea freely and privately, a couple is able to enjoy the romance of the only-us-two world , and a group of people can also rejoice together.
As a result, Heytea is not only a tea shop that satisfies your appetite, but also represents a new way of socializing in a space.
喜茶dp1店(深圳一方城店) “相信就会相遇”
Heytea DP 1(Shenzhen Uniwalk) “Believe it, you will meet.”
把19种不同尺寸的小桌子拼成一张大桌,跳脱出封闭,大桌子缩短了不同群体之间的距离,为他们的互动提供了可能。对坐、反坐、围坐,不同的坐下来的方式出现在同一个大空间内,私密性与开放性共存。让每个消费者每次进店都能收获不同的空间体验感。
In order to jump out of the closed box, one big table constituted by19 small tables with various sizes shortens the distances between different groups, providing them with the possibility of interaction.
Different ways of sitting, including sitting face to face, sitting oppositely and sitting around, appear in the same large space, making the privacy and the openness coexist, so that each consumer can gain a different sense of space every time they enter the store.

▼19张小桌拼接而成的大桌联系着每个顾客,带来多样化的社交活动 The big table that consists of 19 small tables connects everyone come to HEYTEA brings diverse social activities

▼将不同尺寸的小圆桌拼成一张大桌,人和人之间形成了新的距离,为人们的互动提供了可能 One big table constituted by small tables with various sizes shortens the distances between different groups, providing them with the possibility of interaction.
▼对坐、反坐、围坐,私密性与开放性共存 Sitting face to face, sitting oppositely and sitting around appear in the same large space, making the privacy and the openness coexist.

▼桌子之间的绿植营造自然的氛围,如置身于林中饮茶,若隐若现 The green plants interspersed between the tables create a natural atmosphere, enabling the customers to feel like relishing their teas in a looming forest.


▼店铺俯瞰图,Bird’s eye perspective

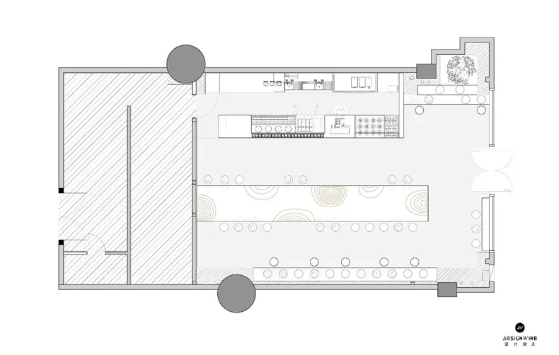
▼平面图,Plan

喜茶dp2店(深圳深业上城店) “山溪涧”
Heytea DP2 (Shenzhen UpperHills) “Streams in the Valley”
围水而坐,曲水流觞,携客煮茶吟诗作画,向来是古代文人墨客诗酒唱酬的一件雅事。根据店面的特殊空间结构,我们尝试用自然的曲线来串联各个尺度的桌子,充分利用空间的同时,也制造出人与人之间不同的距离。地面稍作抬起,形成小丘陵,订制的流线型餐桌由内自外自然蔓延,化作“溪流”。山溪两侧可坐宾客30余人,绿意盎然的植物穿插其中,顶部起伏的水波纹隐隐荡漾。
One of the most popular and elegant things for the ancient Chinese literati to do was to drink wine from a winding canal with one wine cup floating on it( which is called Qu Shui Liu Shang in Chinese.) According to the special spatial structure of the store, the designer tries to use a natural curve to connect different positions in the space, not only making full use of the space, but also creating various spacing between people. Customized streamlined table naturally spreads out from the inside and transfer into a “stream.” On both sides of this “creek in the valley”, more than 30 guests can be seated, with interspersed green plants and undulating ceiling just like the rippled water.
▼曲水流觞图:此地有崇山峻岭,茂林修竹,又有清流激湍,映带左右,引以为流觞曲水,列坐其次,虽无丝竹管弦之盛,一觞一咏,亦足以畅叙幽情 Qu Shui Liu Shang Painting( one of the most popular things to do for the ancient Chinese literati, which is drinking wine from a winding canal with one wine cup floating on it)


▼在有限的空间中打造现代“曲水流觞”社交空间 To create a modern interpretation of Qu Shui Liu Shang in a limited space.


▼山溪两侧可坐宾客30余人,绿意盎然的植物穿插其中,顶部起伏的水波纹隐隐荡漾 On both sides of this “creek in the valley”, more than 30 guests can be seated, with interspersed green plants and undulating ceiling just like the rippled water.

▼用自然的曲线来串联各个尺度的桌子,充分利用空间的同时,也制造出人与人之间不同的距离
the designer uses a natural curve to connect different positions in the space, not only making full use of the space, but also creating various spacing between people.

▼平面图,Plan
喜茶dp3店(广州凯华广场店) “山外山”
Heytea DP3(Guangzhou Central Tower) “Beyond the mounts, and people beyond”
山外山是喜茶dp系列的第三家门店,延续前两家门店的设计理念,通过空间实验探索人在喜茶空间内聚合、散落的方式。与普通茶饮店分散的布置方式不同,贯穿整个空间的长桌把茶客们聚合起来,桌面上不规则隆起的山丘,在功能上区隔了不同组别的茶客,在形式上如若层云叠嶂的东方意象。天顶之上是山形的白色弧形顶棚,如无垠穹顶笼罩四野。茶客如置身宋代画家米芾的《春山瑞松图》里,在云雾满谷,掩映山林翠色间,且茶,且座。
Beyond the Mounts is Heytea’s third store of the DP (Daydreamer Project) Series. Continued with the design concept of the previous two, the space is carried out experimentally in order to explore the way how people gather and scatter in the shop. Differing from the ordinary tea shops with seats spread out, the long tea table that goes through the whole space makes the aggregation of the customers possible.
Additionally, the structures that represent the layering hills in the cloud world, which is a classical scene in the Chinese traditional ink-and-wash paintings, upheave irregularly on the top of the table, and meanwhile, divide the tea drinkers into various sections functionally. Curved and mountain-like ceiling above,it seems like that customers are placed in the scenario created in the renowned ancient painting, Spring Mountain and Auspicious Pines, by Fu Mi of Song Dynasty: in the valleys teemed with cloud and mist and mountains shadowed by the greens, a sip of tea is taken on each seat.
▼宋代画家米芾的《春山瑞松图》,landscape painting

▼长桌带来了多样化的社交活动,The long table brings diverse social activities.


▼桌面上起伏的山丘自然区隔了不同人群,如若层云叠嶂的东方意象 On the top of the table, the irregularly upheaving hill-like structures divide the tea drinkers into various sections functionally, which represents the classical image of endlessly rising peaks in the Chinese traditional culture.


▼贯穿整个空间的长桌把茶客们聚合起来,桌面上不规则隆起的山丘,在功能上区隔了不同组别的茶客 The long tea table that goes through the whole space makes the aggregation of the customers possible. The irregularly upheaving hill-like structures on the top of the table divide the tea drinkers into various sections functionally.

▼山形的白色弧形顶棚,如无垠穹顶笼罩四野 With the white, curved and mountain-like ceiling above, like the endless dome shrouding the vast fields.


▼桌面的山峰与天花的山丘在镜像后形成完整连续的层峦叠嶂,山外有山的东方意象 After being mirrored, the “hills” of the table and the ceiling form a complete succession of endlessly rising peaks- an oriental image of “mounts beyond mounts.”


▼平面图,Plan

项目名称 喜茶白日梦计划
建筑师: 晏俊杰 A.A.N建筑设计事务所
公司公众号:AAN建筑设计工作室
联系邮箱 AAN_ARCHITECTS@outlook.com
项目设计时间:2017.9-2018.4
项目完工时间:2018.7
主创设计师:晏俊杰
设计团队:覃可妍,郑霄翎,易于行,温颖华,杜珩,卓劭臻,张洛林,许锴
施工图绘制:深圳梅兰工作室
灯光顾问:钟平勇,李能健
项目地址: 深圳,广州
建筑面积: 190㎡,140㎡,156㎡
摄影版权: 曾喆
商业策划:达叔好好吃事务所
客户: 喜茶 HEYTEA
主要材料: 白色铝板,水磨石,人造石等
主要品牌:广州市富腾建材科技有限公司,菁品造材,广州雍雅美舍家具制造有限公司
本文内容来源于:设计腕儿


?