Arize 酒店于泰国素坤逸路26号开设了第一家分店,其主要目标客户是日本侨民。后来,酒店业主看到了在是拉差地区的机会,因为该地拥有一个工业区,也有日本商人往来。Arizel酒店有379间客房。为了为长期住宿的客人提供服务,在某些类型的房间还增设了标准酒店没有的设施和空间。同时,酒店的设计应与海滨城市的特点相契合。
酒店位于泰国曼谷东南120公里的Si Racha的Arize Hotel,由曼谷室内设计工作室IDIN Architects设计。
Arize Hotel共有379间客房,它的主要目标受众是日本侨民。
为了服务长时间停留的客人,在一些房间类型,有额外的设施和空间比标准的酒店。
同时,酒店的设计要符合海滨城市的文脉和特色。
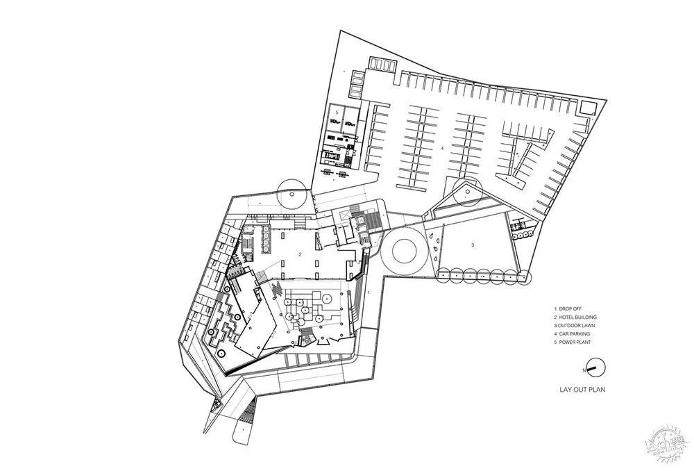
在设计初期,该项目计划建造一栋22层楼,范围覆盖整个用地面积的建筑,但是在收到信息后,建筑师们决定扭转方案,提议将该建筑加高以保护现有的树木, 最大化绿化面积,保留的空间同时也为今后的扩建提供了灵活性。
酒店的平台层区域设有有一个巨大的封闭式庭院,这里保留下来了大多数现存的树木,也为客人打造出了安逸的迎宾区域,将外部的嘈杂隔绝开来。这个封闭式的庭院受到了“Engawa”概念的启发,“Engawa”意为将人与自然联系在一起的露台。
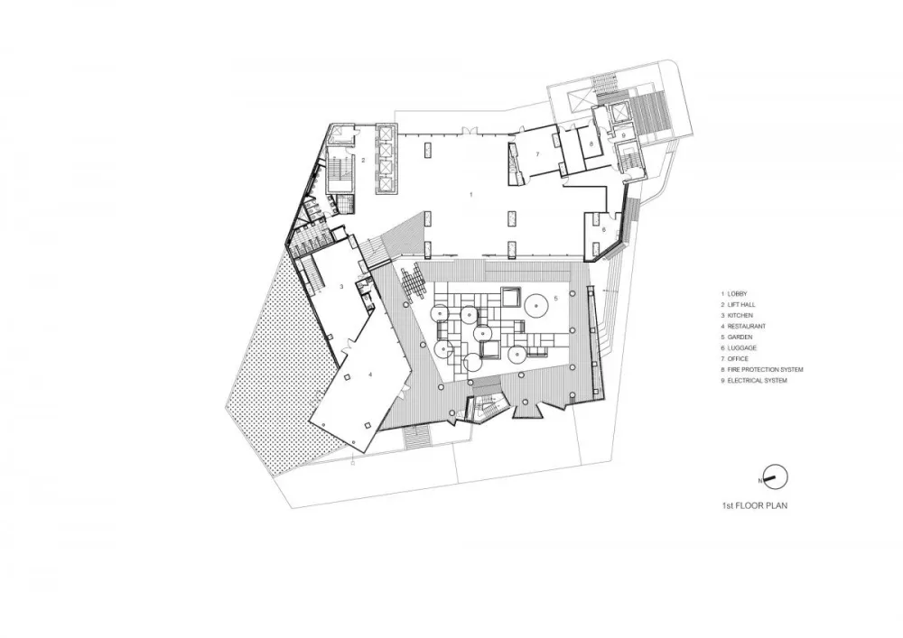
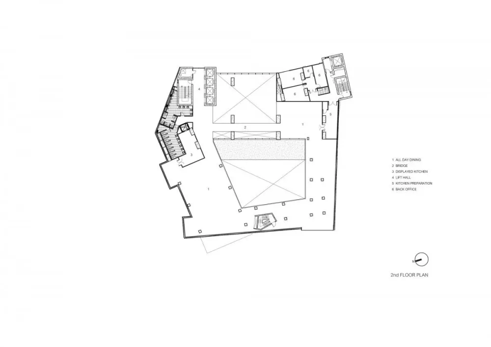
木质格栅被选作围合庭院并控制照射到空间中的光线的特征元素。明显的阴影会随时间变化。这种现象反映了日语单词“ Ma”的起源,这个词在日本建筑中意为“空间”或“地方”。它由“门”和“太阳”两个词衍生而来,体现了阳光从门的缝隙中倾泻出来这一意象。酒店的大堂与外面现有的罗望子树的轴线完美对齐,而罗望子树也成为了大堂入口的背景。酒店的二层有一座廊桥通向全天候用餐区,形成了环路,以方便客人使用。封闭二层的玻璃被设计成半透明的,营造出了日本的纸制门扇“障子”的感觉。
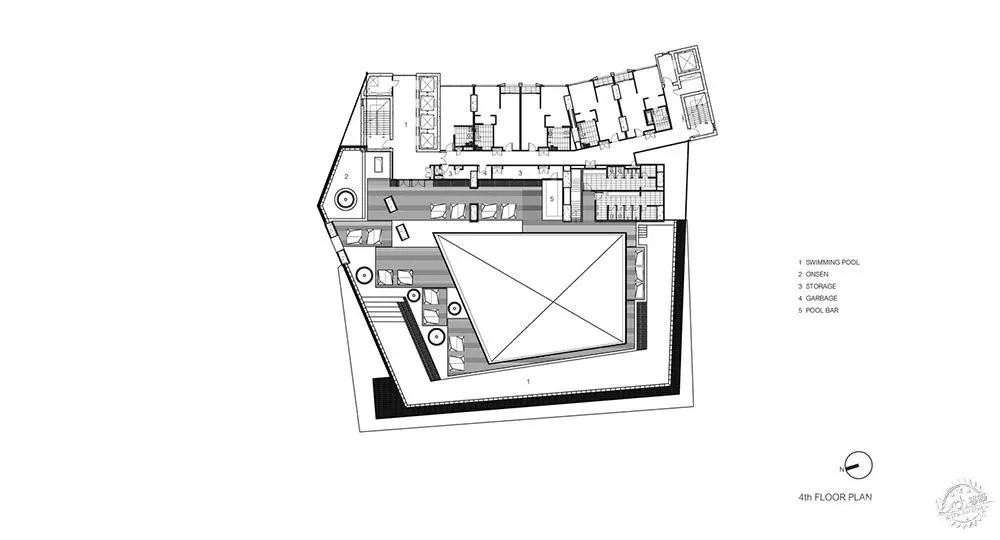
大厅与现有罗望子树的轴线精确对齐,而罗望子树则成为了大厅入口的背景。在二楼,有便捷环形连廊直通全天候用餐区。该区域地板的玻璃是半透明质地,给人以日本纸门“Shoji”的气息。矮墙的顶部是拥有全新体验的游泳池,客人可以围绕着下部的建筑和庭院游泳。并且可以从矮墙上的许多地方欣赏到树木庭院。
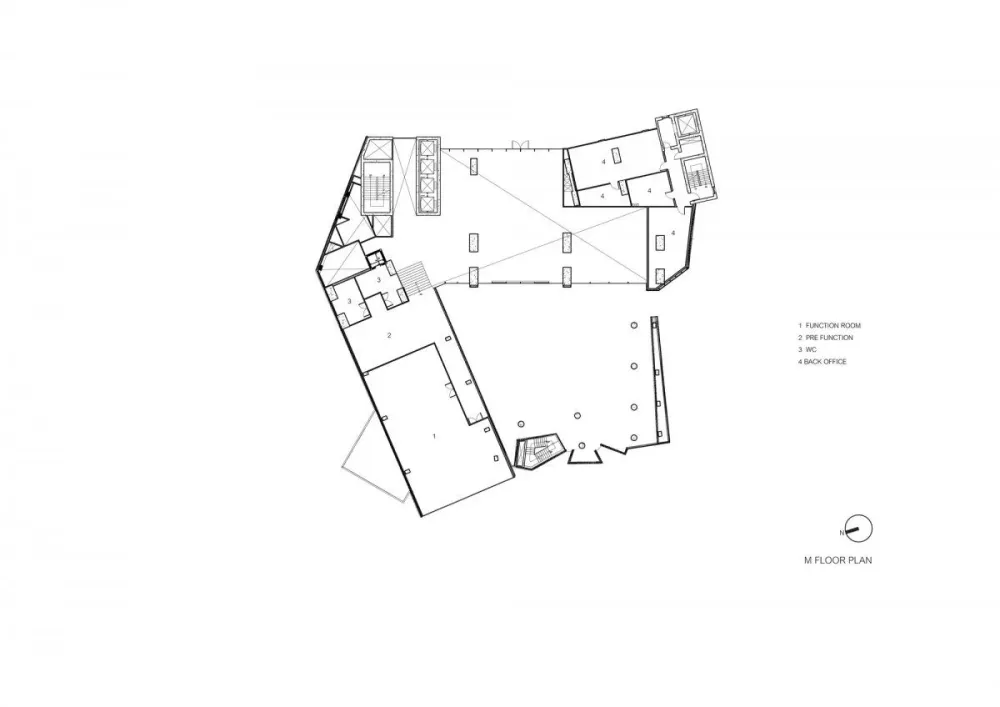
对于塔楼部分,该项目的业主打算在客房区域采用双载走廊系统,以最大程度地减小交通面积,因此设计者遵循了这一要求,让每个房间都能观赏到美丽的景色,即将建筑物的一侧朝向泰国湾,而另一侧朝向山景。每层楼都有公共区域用于户外活动,并且都不间断地连接在一起,直达位于顶层的公寓。这套顶层公寓包括了起居区、居室、卧室和会议室。
室内空间的设计灵感来自江户时代著名的艺术主题“ Setsu Getsu Ka”,意为“雪、月光和花”,这个特殊的短语被分解为许多部分,并分别体现在不同的区域。
在大厅,“雪”一词被诠释为“无边界”,建筑师用反射玻璃覆盖了柱子,并在天花板上安装了3,000块木板,意指下雪。一些位于柱子周围的木片通过反射玻璃,与周围环境和谐地融合在一起。在全天候用餐区,通过一些光影效果传达“月光”这个概念,而会议室则是从“花”一词中获得设计灵感,并且通过元素的移动来展示。此外,“ Wabi Sabi”的概念通过在客房中使用具有原始纹理的天然木材装饰,来诠释其不完美的美感。
全天候的用餐区域与“月光”一词互动,因为这里应用了光和影。
而会议室通过元素的移动阐释了“花”这一词。
此外,“ Wabi Sabi”(侘寂)这一概念也体现在了酒店之中。
客房中运用了具有粗糙纹理的天然木材进行装饰,旨在表现一种不完美的美感。
平台层的顶部设置的游泳池能够让客人在建筑与庭院之上游泳,带来了全新的泳池体验。这样的设计让中心的树木庭院从平台层的许多方位都可以看到。
图片来源于网络,仅供分享交流。
版权归原作者所有,如有侵权请联系删除 。

