建筑,有时候是为了实现某种特定的愿望
当我们在讨论极简时到底在讨论什么
或许是被简练的构图所吸引
或许是被它呈现出来超凡脱俗的气质所折服
让观看者有了一种疯狂的偏执
 
 
△Fran Silvestre/著名极简建筑师
Fran Silvestre
埃因霍温理工大学毕业后
在阿尔瓦罗·西扎的工作室工作
被称为西班牙最经典的极简大师
2005年成立个人设计事务所
他为人低调,极少接受媒体采访
几乎搜不到任何关于他的消息
满屏的极简画风令人窒息
 
 
 
 
 
 
尤其擅长用白色来渲染空间的极简意境
将视觉压力降到了最低程度
近期Fran Silvestre
又带来了哪些惊艳的作品
现代社会的高层建筑越来越多,鳞次栉比却大同小异。而经典的建筑却鲜少更新。建筑师根据要求,目的是要建造一座能够经历漫长时间考验且经典永不过时的建筑,同时适应当地的物理条件和人文情怀并且充分利用它们,最终以创新而灵动的方式呈现。
 
 
建筑造型如同一位放哨的战士一般,挺拔而坚毅。建筑的结构采用刚性核心结构,楼层分布方便了简单结构的物化。立面的设计采用了坚固的岩石,该表面可适应几何结构,无需热成型,通过通风立面系统固定在承重结构上。
▼坚固的表面既保持几何形体又不需要额外围护
 
 
不仅如此,从它的立面结构上看,建筑通过不同的岩层结构,展现出了时间流逝的姿态,定义了城市不同类型的高度。
▼两座塔楼共享底部商业群楼
 
 
两座塔楼共享交通核心。曲线几何形体与强烈的日出阳光一同产生光影渐变,突显塔身的纤细感。建筑师插入必要的技术性设备,形成立面韵律。商业区域设置在塔楼底部,并在上面布置了建筑的公共区域包括游泳池、健身房等。
▼立面韵律及作为商业区的底部空间
 
 
室内的空间也井然有序,简洁的白色空间轻盈而富有诗意。
 
 
 
 
 
 
▼规则几何形的居住空间
 
 
▼规则居住空间与圆形平面之间设置露台和必要的遮阳结构
 
 
而精巧的阁楼也十分有趣,阁楼空间按照需求整体后退,塔楼的其中之一的屋顶作为私人使用的阁楼,另一座则为公共空间,这样既节省了空间,又使得空间看上去颇有美感。
 
 
 
 
 
 
 
 
 
 
 
 
Coimbra-Steinmann
这栋住宅位于葡萄牙里斯本一片高尔夫球场的上坡位置,能够远眺里斯本的城市景观。住宅从场地出发进行设计,在平缓下降的地形之中采用纵向布局形式并呈现三角几何形态,两个体块完美诠释了直线与曲线的浪漫邂逅。
▼建筑的两个体量在入口通道交汇
 
 
结合建筑的流动性,Fran Silvestre在这里实现了柯布西耶式的水平长窗,赋予室内最大的灵动性及自由度。
 
 
▼两个体量呈现令人着迷的直线和曲线形态
 
 
▼容纳了住宅白天活动空间的直线型体块
 
 
使用者和住宅之间的对话形成了一场奇妙的邂逅,两者之间的对话形成于空间之中但又超越了建筑本身。
 
 
 
 
室内使用白色极简的基调,大面积的开放空间,让建筑与基地更融合,从而让设计更有艺术感染力。
 
 
 
 
 
 
 
 
 
 
 
 
 
 
 
 
 
 
 
 
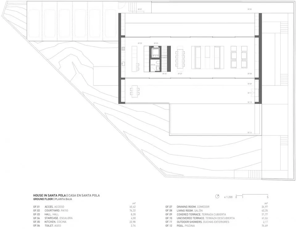
该住宅是位于西班牙圣波拉Tabarca岛的极简别墅,阶梯状的体量朝向海岸,高与低、灰与白、透明度与私密性的对比,体现了设计的二元性。
 
 
 
 
 
 
 
 
 
 
 
 
灰色调的天然石材,与周围山脉的质感融为一体,与顶部的白色搭配,简化设计,线条简练,灰白色经典搭配,让极简风的惬意一展无余。
▼低处的灰色体量与高处的白色体量
 
 
▼阶梯状的体量朝向海岸
 
 
 
 
除了高低两个体量之间的对比,设计的二元性还体现在其透明度上:一方面住宅尽可能地隔绝于周围的其他建筑,另一方面又完全地向自然景观敞开。
 
 
 
 
开窗方法同样展现了多样性:首层是一个完全通透的一体化空间,通过方形的口袋空间敞开于东西两侧的庭院。二层在朝向大海的方向设有带状窗,为房间带来采光。临街立面设有一个位于低处的细长窗户,不仅为走廊提供了光线和自然风,还保证了室内空间的私密性。
 
 
▼首层是一个完全通透的一体化空间
 
 
 
 
 
 
 
 
 
 
 
 
 
 
 
 
 
 
 
 
 
 
 
 
 
 
 
 
 
 
 
 
 
 
 
 
WATER MIRROR HOUSE
 
 
Fran Silvestre善于利用地形营造视觉美学,他更是一个“密斯”式的自然主义者,一直在追求建筑与自然的融合。
 
 
 
 
 
 
 
 
 
 
 
 
 
 
 
 


