场地的条件是建筑设计中最重要的变量之一。但是,即使面对是一块很值得探索的场地,建筑师也很少去了解其局限性和背后的限制,并在此基础上设计稳妥的建筑方案,然后买下这块场地、推进建筑项目。对于承受着很大的时间和费用压力的小型住房和商品房项目而言,尤其如此。
综合考虑服装设计、销售的工作和抚养两个孩子的日常生活,这对夫妇选择自建房屋,将此前相距很远的生活和工作区域联系起来,实现他们理想中的“接近工作的生活”。我们看中的场地位于京畿道九里市山上的一个村落,土地形状为三角形,面积仅为95平方米左右,但是由于与空地相邻,视觉效果上并不狭窄。已经转移给经纪人的区域内的最大建筑面积,看起来似乎可以满足家庭居住和夫妻办公室的需求,甚至可能还有用于出租的空间。



我忙于签订土地合同,然后找到建筑师。但是,与预期不同的是,北方太阳光线高度的限制和大面积的公告(超过1米)严重限制了高层地板的固定和土地使用;考虑到所需的单独地下入口、两个停车位以及与相邻房屋的心理距离,实际可用的土地很少。因此,该项目的重要目标,是在放弃出租打算后仍然很紧张的住宅空间中,寻找可利用的最大面积和最佳条件。


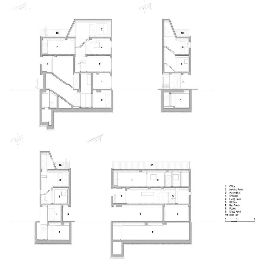
对该家庭的居住空间(第二,第三和第四层)的设计,试图找到一种适合三角形土地的形态,尽管该建筑内包含了各种各样的房屋形态。 Oroot 使用以北侧太阳光线高度为标准的限制线为设计图案,使建筑的上半部分符合法定边界,并将该限制线的张力延伸到建筑物的每个部分。从四层的露台,横跨两层楼通往前门,再到下方的楼梯间,这一限制被转换成形式的亮点。为了保持清晰的线条概念,并满足建筑师对纯净纹理的期望,设计方案中所有围绕该线的部分只包括裸露的混凝土和窗户。

在靠近场地距离较长的一侧时,一个小的架空结构连接停车场,而倾斜的间隙和悬臂台阶则将视线自然地引向二层。二楼有一个客厅,裸露的混凝土墙延伸到其内部;三楼有一个供全家人使用的更衣室,两个卧室,一个额外的房间;四楼有一个带屋顶的浴室。考虑到与之相邻的宽阔道路和其他建筑物,建筑师尽可能将某些重要的窗户放大以满足采光和通风需求,而对剩余的窗户则进行了相应的缩小。建筑的混凝土外墙保障了安全性和隐私性。



对这对夫妇的工作室、展厅和包括会议室和仓库在内的位于地下和一楼的购物区的设计,旨在优化地下空间的面积和环境,并确保覆盖区域不会割裂场地间的联系。一楼的空间一分为二,在背对背的停车场架空区域和前方的道路之间形成一个缓冲空间。通过设置小卫生间、锅炉房、工作室和办公室的组成部分等功能室,位于三角形狭窄部分的空间也发挥了作用。此外,设计师还在主楼梯的下坡处设置开口,由此可以通向单独的地下室,在地面留下另一个缝隙;在此过程中,主楼梯间的挡墙延伸到下部,仿佛它来自天花板,这确保了开口部分的安全性,并且无需设置铁栏杆。如果你走下楼梯,就会看到前面有一个小的凹陷区域,如果你从右侧的凹坑区域进入地下,将通往一间工作室和一间会议室,这提供了光线和通风空间。


土地的不同情况就像形态各异的新生儿一样,建筑项目中不存在完美的、没有束缚的场地。 Slit House 在建造过程中,建筑师从容地对待土地的情况,根据土地的情况和有关法律调整设计方案,这说明建筑的非常规形式往往是根据场地最基本的自然特征而自然生发的。













∇ 平面图

∇ 立面图

∇ 剖面图

主要项目信息
项目名称:Slit House
项目位置:韩国九里
项目类型:住宅空间/私人住宅
项目面积:213.06平方米
完成年份:2019
设计公司:Architects H2L
摄影:Woochul Jung
文本:archdaily

