从泳池平台望向住宅©BoysPlayNice
感谢Formafatal对gooood的分享
艺术住宅(Art Villa)是Art Villas度假区的其中一座建筑,坐落在距哥斯达黎加小镇乌维塔不远处的一座山丘丛林里,可以俯瞰到赫摩斯海滩的美景。度假区内,3栋独特的别墅和一个多功能亭阁分布在2公顷的土地上。项目投资人希望建筑师打造一个可以让游客近距离接触自然、净化身心,也同时体验奢华与冒险的地方。来自Formafatal工作室的建筑师们在满足客户需求的同时,也从中南美洲热烈缤纷的氛围中得到了启发。
▼建筑概览©BoysPlayNice
艺术住宅是Art Villas度假区中最先被设计和建成的项目,其建筑和室内设计均由Formafatal事务所完成。Refuel Works studio为该项目提供了富有远见的概念性指导。
▼艺术住宅外观©BoysPlayNice
▼住宅周围的山丘丛林景观©BoysPlayNice
▼混凝土体量呈现厚重感©BoysPlayN
这座双层住宅在25000平方米场地上成为一处显眼的存在,570平方米的建筑面积包含了宽敞的公共区域(前厅、主客厅、厨房、餐厅和屋顶泳池露台)以及5间带有私人浴室的卧室。地下层设有儿童游戏室、健身房、舞厅、步入式衣衣橱以及洗衣房和杂物间。
▼前厅©BoysPlayNice
▼前厅水景©BoysPlayNice
在设计室内空间时,建筑师不仅从周围的野生丛林中获得了灵感,还受到了巴西建筑师Paulo Mendez da Rocha作品的启发。 建筑的混凝土墙体被刻意地保持在原始状态,与室内结构、精心挑选的材料、水景以及绿色植物形成和谐的关系,共同创造出一种兼具粗犷与奢华的独特体验。
▼主客厅©BoysPlayNice
▼室内细节©BoysPlayNice
卧室和浴室采用了定制的装饰性水泥瓷砖地板,变化的图案呈现出随时间不断变化的难以捉摸的独特质感。厨房背景处的水彩画描绘了丛林的景象,成为室内设计中的另一个亮点。墙壁在空间中既充当了反映内部生活的镜子,亦作为一扇窗户使我们感受到来自外部的自然气息。
▼厨房和餐厅©BoysPlayNice
▼背景处的水彩画描绘了丛林的景象 ©BoysPlayNice
▼餐厅细节©BoysPlayNice
▼卧室©BoysPlayNice
▼卧室细节©BoysPlayNice
▼卧室露台©BoysPlayNice
▼浴室©BoysPlayNice
住宅中的大部分家具均由当地工匠设计和制作,部分是在捷克制造后运至现场。几把扶手椅与这些定制家具形成了和谐搭配,它们均出自南美的设计师和建筑师之手。柚木、金属和亚麻在室内装饰中占据了主导地位,再加上一些颜色较为明快的定制家具物件,为大面积且未经修饰的混凝土内部表面增添了一份柔和的气息。
▼柚木、金属和亚麻为混凝土表面增添了一份柔和的气息©BoysPlayNice
▼被天光照亮的前厅©BoysPlayNice
在哥斯达黎加茂密的丛林中,有一个超越寻常的空间:白天与黑夜在苍翠的植物群、原始的海滩和雅致的设计中不断交替变换。在这里,三栋别墅都有着个性鲜明又独特的设计与风格。度假村里的别墅在回归大自然与受保护的奢华住所之间取得了难得的平衡。当你与丛林的气息交融,在舒适迷人的空间里放松身心并找回最初的自己时,创造力就会自然而然地迸发。
▼户外露台©BoysPlayNice
由沉静的混凝土墙组成的巨型单体结构,在丛林深处裸露而自信地矗立着。广阔的玻璃墙、丛林原木和大胆的外形尺寸在点燃、吸收并反映着自然的原始元素。手绘墙壁捕捉了水的动态性质,并映衬着周围的热带森林。走在铺有手工尼加拉瓜瓷砖的地面上,柔和、真实与疗愈感汇聚在脚下,唤起了一种来自上古时代的情绪。极具复古特质的装饰与现代设计的简约性也在室内空间中得以结合。
▼从泳池平台望向住宅©BoysPlayNice
▼卧室和洗手间地面铺设以手工尼加拉瓜瓷砖©BoysPlayNice
建筑团队与全球志同道合的艺术家和知名企业进行紧密合作,在度假区组织和策划了各类活动,旨在为客人们带来解放全身心的难忘体验。建筑师从全世界度假区的游历体验中获取灵感,试图为客人营造一种前所未有的空间体验,帮助客人们进行自我拓展,与纯粹的本我建立新的连接。项目团队邀请了许多具有感召力的老师来体验建筑氛围,并通过瑜伽、钢管舞、艺术、讲座等多种媒介来带领客人迈向新的境界。除了以上这些活动之外,艺术住宅还提供婚礼场地和业余时的静修场所。
▼健身房©BoysPlayNice
▼夜间户外平台©BoysPlayNice
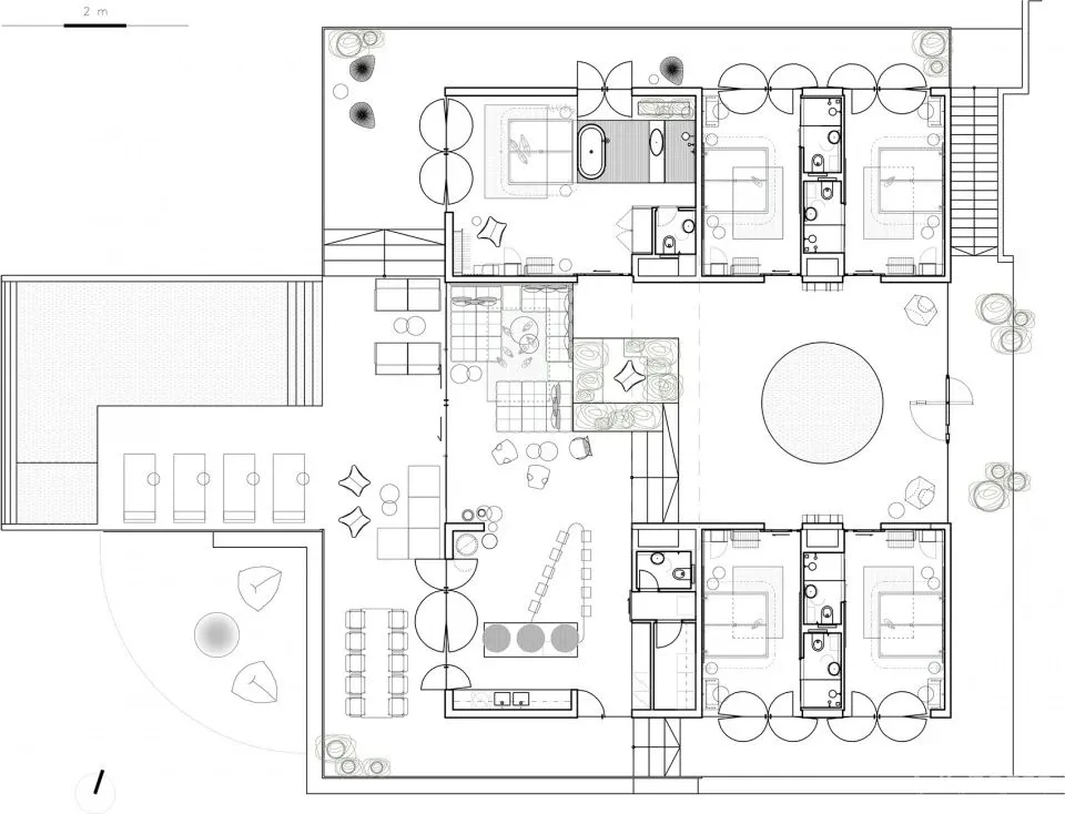
▼平面图©Formafatal

