© Park woo-jin
世宗大都会自治城是首尔地区新开发的一块周边区域,建筑师希望为城市中的人们提供一处逃离之所,使他们可以在这个新建的空间里,与自己对话交流并反思自省。
建筑师希望通过这个空间对都市人的特定生活轨迹产生一定的改变,以使他们对生活产生充分的感知。
因此,建筑师将这个简单的金属体块置于居住区稍靠外的地方,来强化这种关系。
© Park woo-jin
© Park woo-jin
同时,建筑师还希望在这个空间中为来访者提供一份独特的时间感受。建筑师将顾客购买咖啡的行为等同于他们在购买于咖啡店中闲坐的时间。建筑师希望以此去建立顾客与其自我放松间的情感联系。因此,建筑师通过雾气的使用,营造了多种不同的情绪氛围。这种手法,不光将事物最简单的图景展现了出来,还帮助人们更好地去关注他们的内心世界。
我们会提供最极致的体验,去帮助你厘清思绪,以面对自我。在这里,时间会呈现出另一种形态。
© Park woo-jin
© Park woo-jin
建筑师将墙面用作于座椅的靠背,顾客可以闲坐于此,欣赏到店铺中央的景观庭院。略带斜角的墙面,还可以帮助顾客更好地窥见庭院中的植株和天空中的云朵。通过这样的氛围营造,建筑师希望给顾问提供一个思考自省的机会。而庭院中不断变化的植株和天空中的云朵,还象征了生命循环的四季变化。
© Park woo-jin
© Park woo-jin
© Park woo-jin
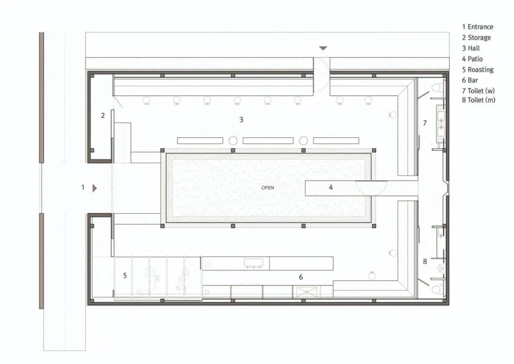
建筑师将店铺中心的庭院设计为一个无顶棚的开放空间,使得顾客步入其中时,所关注的是庭院的地面。而对角线的铺装设计则进一步强化了这种视角特征。
© Park woo-jin
© Park woo-jin
© Park woo-jin
建筑师将咖啡店的室内设计和材料选择维持在一个干净整洁的状态,并将木制的座椅漆成了黑色,以保证空间的整体性。此外,建筑师还在长凳间置入了彩色石块,以活跃空间。
© Park woo-jin
© Park woo-jin
© Park woo-jin
© Park woo-jin
建筑师通过粗糙纯朴的肌理和简单的建筑形态,保证了空间的基本调性。同时,建筑师没有在外侧设置一扇窗洞,从而保证了空间内的私密与静谧。而台面上所嵌入的钢制材料则会导致手机信号接受的不稳定。业主希望通过这种方式,将顾客从繁忙的都市生活中抽离出来,以获得更多自处的时间。
© Park woo-jin
© Park woo-jin
© Park woo-jin
© Park woo-jin
同时,建筑师也没有在店内设置任何的充电插口,以进一步帮助顾问逃离繁忙的生活。庭院中的LED屏幕不光可以帮助顾客去找到咖啡吧台的位置,其右侧的时钟还可以随时告知时间。
© Park woo-jin
© Park woo-jin
© Park woo-jin
建筑师希望以此去表达时间的流逝和生命的循环往复。虽然咖啡店中的时间流逝与外部的都市生活是一致的,但建筑师试图借助这间咖啡店的设计,为顾客提供一个抽离的机会,以直面自己。
© Park woo-jin
© Park woo-jin
© Park woo-jin
建筑师:ATMOROUND 地址:Geumnam-myeon, 燕岐郡, 忠清道, 韩国 项目年份:2020 摄影师:Park woo-jin 建筑面积:296.0 平方米 主创建筑师:ATMOROUND 项目团队:ATMOROUND 业主:LEEDO Coffee 工程设计:ATMOROUND 景观设计:Anmadang the lab
编辑:韩爽,莫因同;译者:江垚

