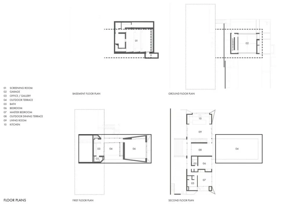
LR2 House,由Montalba Architects设计,位于加利福尼亚州帕萨迪纳的独栋豪宅,业主希望保留现有地形的斜坡状态,保留现有大片空白区域的空间,所以设计师运用长方形盒子的概念,把390㎡的空间分为几个独立的矩形块,分别位于斜坡上方和斜坡一侧,同时保留了原有的大片空白空间。
室外通风道、门廊、庭院、有盖人行道和一个巨大的屋顶平台将有限的楼面面积延伸到自然的灌木丛,并可以看到更远处的景色。房子包括客房,家庭办公室,健身房,和剧院放映室,以及丰富的户外空间,所有的景观周围的山丘和山谷。
LR2从主要的构建块组中剥离,并移动以遵循山坡地形的粗糙坡度。
预期的入口顺序随着景观流动,引导游客沿着延伸至建筑物下方的人行道。
一个独特的体验,包含了前门外的天然小溪,它坐落在二楼。
沿着自然坡度,前面的楼梯创建了一条通往桥式入口的拱形通道,同时展示了房子的全景。随着前门的打开,深色的镶板混凝土立面被柔和的木材和明亮的白色饰面所取代。
进入后,游客会发现自己置身于室内/室外的生活空间中; 外部景观的框架景观会让游客沐浴在自然光中,并让他们沉浸在室外的自然世界中。
一旦进入住宅,楼梯下降到一个私人放映室或上升到三楼的生活空间。
一系列的开放平台映射了室内生活区,包含了几乎与封闭的三楼足迹一样多的室外空间。

