[ 赣州中创国际公寓]
当讨论空间气质的时候,我们想说的的英文什么?是空间的对比与转换,是光的铺陈与流泻,还是弥漫在体块之间的气氛。
在讨论空间气质时我们想说些什么?是空间的反差和变换,光的细化和流动或遍布实体的大气。

大量的留白形成疏密对比。在上楼梯端的茶水区和放置空间,座椅软垫从上方延伸布置来与对置的坐墩互动,放松的气氛让人在休闲时激发更多灵感。



在建筑师那里,加固墙体和梁柱这些实体,其目的则是留下空间,满足功能。实体是永恒性的构造意匠,空间形态了体验这的内心体验,相互互动形成空间气质。
对于建筑师而言,构造诸如墙,梁和柱之类的实体的目的是留出空间并满足功能需求。实体是永恒的构造函数。空间塑造了内部体验。两者之间的相互作用形成了空间气质。


在室内中置入异质构件-金属悬浮楼梯,周围环境之中为核,展开整个空间叙事。
作为LOFT项目,垂直运输通常是人们关注的焦点。异类组件(金属悬挂的楼梯)放置在房间中,周围的环境以此为核心来展开整个空间的叙述。

小型的操作区提供了备餐功能,其中莫兰迪的低饱和色充满年轻的时尚气息,其中蓝色的反复再现形成连续性的视觉语言。
较小的操作区域使您可以准备餐点,其中低饱和度的莫兰迪(Morandi)颜色充满青春和时尚气息,而反复出现的蓝色则呈现出连续的视觉语言。


楼梯下部灰色空间,以模糊的方式形成领域感,与超长延伸的会议桌,形成意识上的咬合穿插,将空间构件与使用者连缀起来。
楼梯下部的灰色空间以模糊的方式形成了区域感,并与超长的扩展会议桌形成了有意识的遮挡和相互渗透,将空间组件与用户连接起来。



办公室中,旋梯再次成为雕塑引导视线,如DNA双螺旋结构盘旋向上,赋予空间商住皆宜的基因。
在办公室里,螺旋梯再次成为雕塑以引导视线,就像DNA双螺旋结构向上盘旋,为商业和居住基因提供了空间。


软装精致俏皮,是空间中的一抹亮色。水磨石自带网红气质,素朴又温暖。设计从格调上解构了办公室的紧张感,让渴望小而美的年轻创业者们,因为工作爱上生活。
装饰精美细腻,在空间中增添了鲜艳的色彩。Terrazzo具有影响者的气质,简单而温暖。设计从风格上解构了办公室的张力,使渴望小型和精美物品的年轻企业家享受工作的生活。




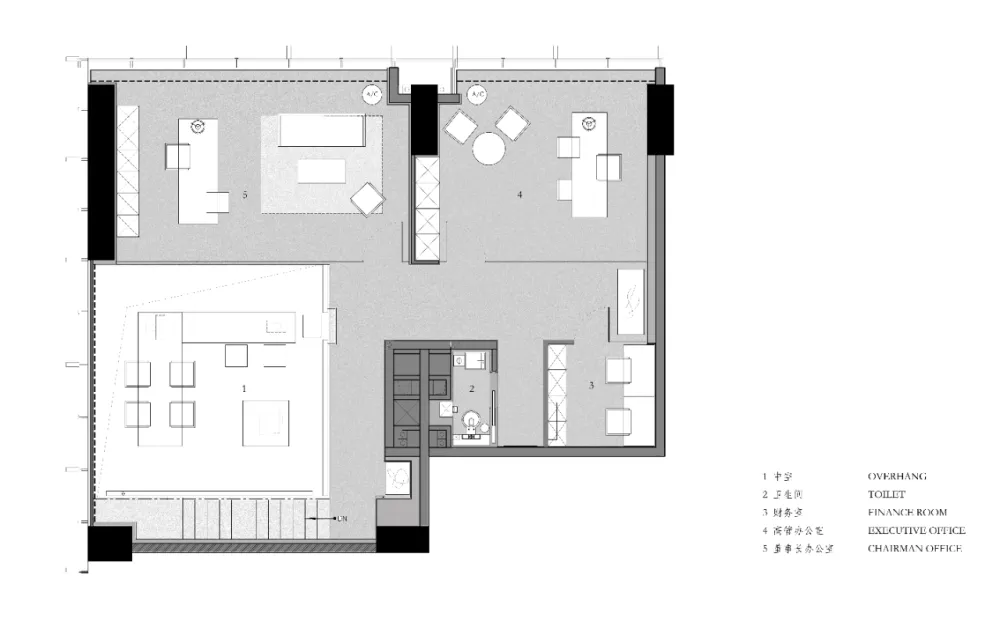
160㎡户型 [ 赣州中创国际公寓 ] 现代主义建筑师密斯提出了通用空间的概念,以确保空间的均匀性,无限的开放性和均匀分布的圆柱体的最大自由度。


共享区域是核心空间,它集成了许多显示,工作和通讯功能。为了保持现代主义的优雅,大量的玻璃被用于确保现代性的质量-透明和浮空感。


垂直视觉被竖向向构件延展,落地的产品展示架和二层雕塑展台,相似形体的方式再现主题,强化出崇高感。


三维的空间可以被视为虚空的雕塑,预先米开朗基罗谈及自己的工作时说的,“我只不过把禁锢在石头中的生命解放出来”,而室内设计师为了使用上的自由度,解放了空间。




飘逸的理石就像雕塑家手中的泥巴,以数学的美感统御其中,构成美妙和弦。




60㎡户型 [ 赣州中创国际公寓 ] 20世纪初,机器大工业取代手工,让现代主义成为显学。在包豪斯,教师们设计了前卫的大师之家,建筑前所有地未出呈现至极单纯的美感。


就像进入苹果商店一样,办公空间的形状非常简单,并具有未来感。金属板贴面始终如一,整个空间就像是完美的工业产品。


透明书架保证了功能,又以“无”的方式隐藏自身,作为对虚空的回应。



致敬包豪斯大师莫霍利·纳吉的横向多层书架,不同的是纤薄的金属托板对准当代工艺美感,延伸的视线直至挑空区,豁然开朗。

LOFT的概念被重新定义,精工打造的材料轻盈如折纸,透出洗练的线条。设计的最终目的是创造一种与使用者共振的感觉,灵动时尚的气场在这里完美呈现。




项目名称丨赣州中创国际公寓
设计面积丨 120㎡/160㎡/60㎡
主要材料丨大理石,木饰面,木地板,烤漆板,黑钢,地毯,皮革


共向设计于2013年创立,重点研究,针对方法,形成了在高端地产,精品度假酒店,商业空间等多个设计领域的综合实践。不断追求创新,始终用心于设计,潜心于项目的实践,是团队经验丰富的国际化视野的设计团队,具有对前沿市场的敏锐洞察力,擅长整合各类资源,为业主提供完整并直接有效的室内设计顾问服务和软装解决方案。多次被国际知名度杂志,书籍和网络媒体报道,包括墙纸,ELLEDÉCOR,INTERIOR,DESIGN,Designwire,环球设计等,在某些方面引起广泛关注。



中海海南万宁神州半岛别墅





中海南航湾区国际销售中心及样板房


