 
 
“敢于打破常规,并坚定地使之付诸实现,你就会发现,你的设计已不受任何限制,并达到自由自我的境界。”
Eighty Seven Park
 
 
伦佐·皮亚诺是意大利当代著名建筑师,1937年出生于意大利热那亚,毕业于米兰理工大学建筑系,1965-1970年在路易斯·康的设计事务所工作,1998年第二十届普利兹克奖得主,一直以来凭借其在全球内范围内的文化创新设计而被人们所熟知。
 
 
Eighty Seven Park地理位置
Eighty Seven Park位于迈阿密海滩的一个公园内,是伦佐·皮亚诺在美国设计的第一栋豪华公寓,建筑直面一望无际的大海,周围被绿植包围,地理环境极佳。
 
 
该住宅楼共包含68个居住单元,同时还配有面积高达8000平方米的私人公园,其中顶层公寓售价高达6.8亿美元,将成为迈阿密最贵的豪宅。
 
 
 
 
“我们设计的这座建筑属于自然,当我第一次来到这里的时候,坐在沙滩上,望着大海,它就在正前方,前面只有一望无尽的大海。
 
 
△Eighty Seven Park周边环境
普利兹克获奖者Renzo Piano操刀
建筑设计的核心理念是减少存在感,让居住者用心感受周边的自然环境,设计师用极简的设计手法、流畅柔和的线条,将建筑和自然景观完美融为一体。
 
 
 
 
 
 
自由流畅的建筑构造给人柔和的视觉感受,优雅的曲线带来韵律美感,搭配大面积的玻璃,建筑体量更加轻盈通透。
 
 
Renzo Piano和建筑模型
 
 
 
 
项目最大的特点是360º环形大阳台设计,采用悬挂式的楼板结构,各层的玻璃幕墙让视线毫无阻碍,看起来就像是漂浮在海上的玻璃塔。
 
 
 
 
开放式的露台设计让室外向室内渗透,室内向室外延伸,建筑和自然形成互动关系,在这里可以尽情享受迈阿密的沙滩美景。
 
 
 
 
干净简约的外立面在阳光照耀下,建筑体量更显通透灵动。
 
 
 
 
 
 
 
 
 
 
爱马仕御用设计师 RDAI 打造室内
室内设计延续了自然质朴的格调,进入公寓大厅会被葱郁的绿植吸引,既遮光又控温,营造出惬意的洽谈环境。
 
 
 
 
 
 
 
 
 
 
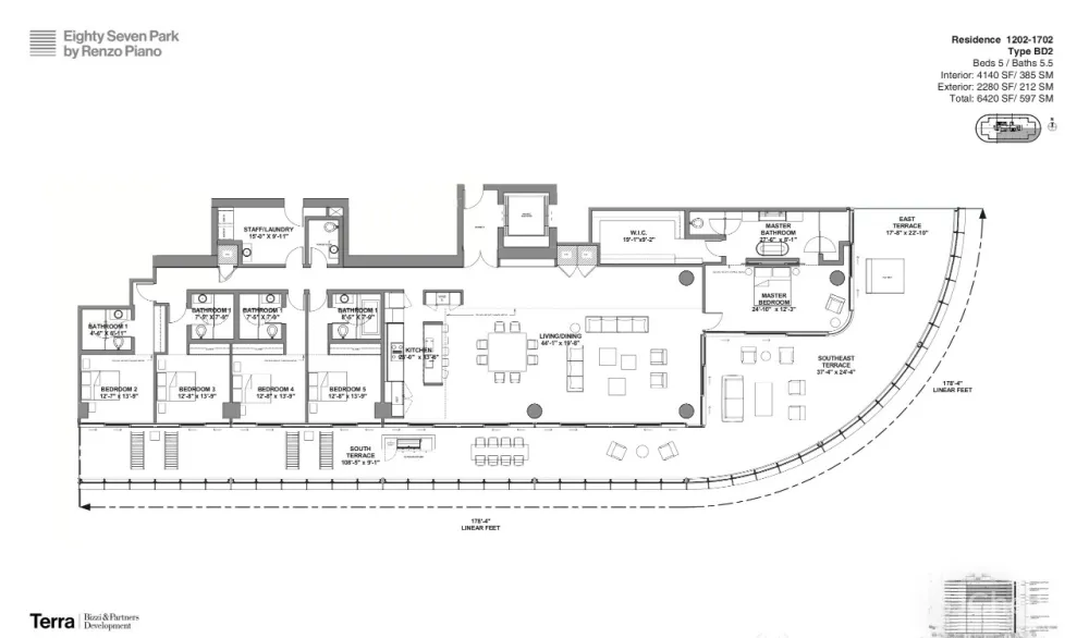
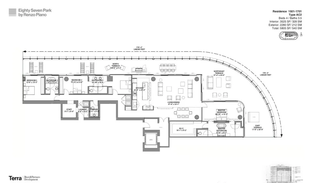
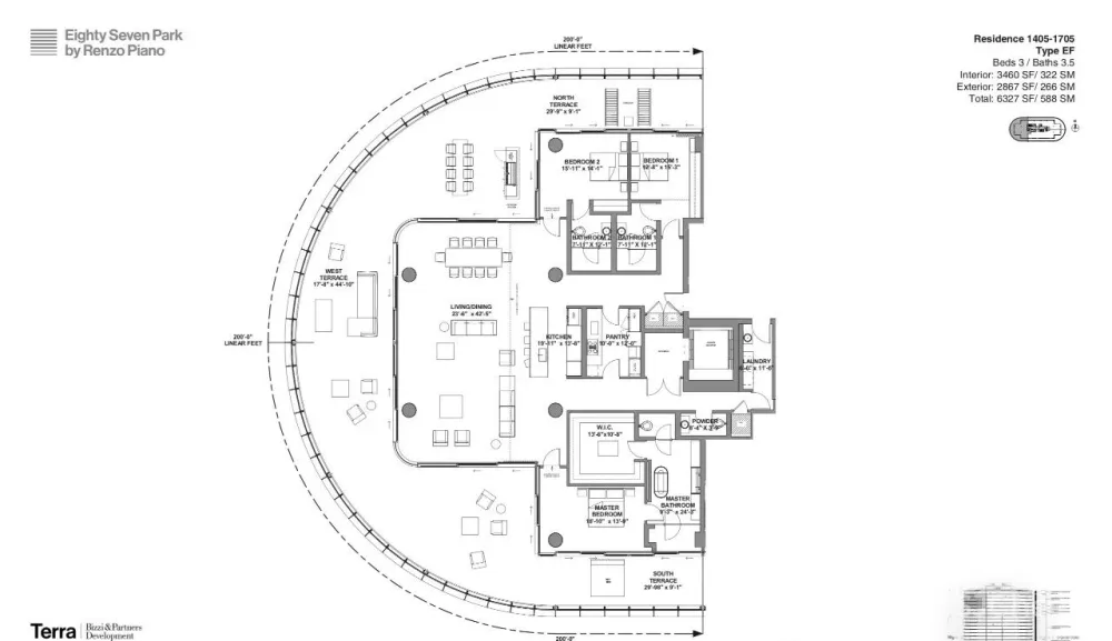
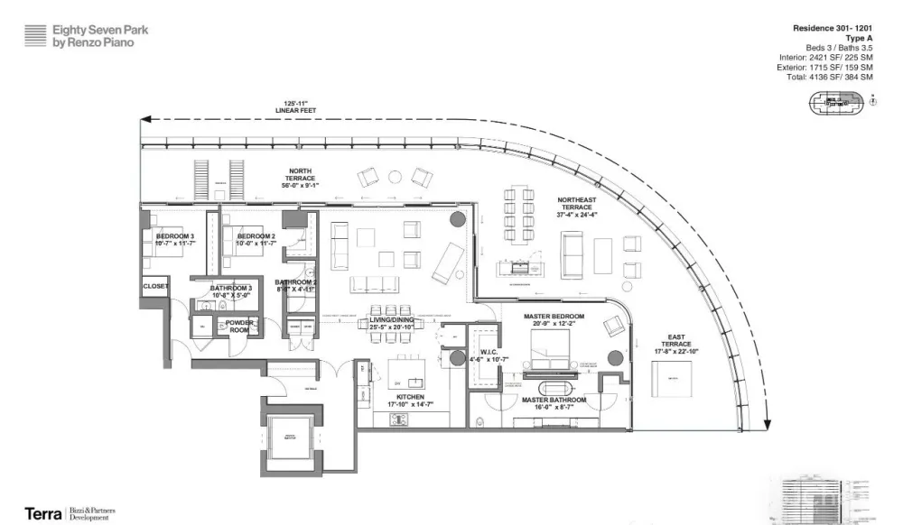
项目共有6个户型,其中价格最高的顶级公寓面积超过1152㎡,外面的露台面积超过1600㎡,包括了6间卧室和11间浴室,可以全方位的欣赏迈阿密极致景观。
△4-10层楼层平面图
 
 
 
 
 
 
 
 
超大的露台面向大海,透明的玻璃扶手让视线无限延伸,呈现出雅致的艺术画面感。
 
 
 
 
 
 
 
 
室内软装体现了极简的美学气质,抛去不必要的装饰,可以用心感受纯粹的空间。
 
 
 
 
暖色调的家具让人身心愉悦,原木肌理带来浓浓的自然气息,简洁的线条打造出时尚简约的家居氛围。
 
 
每间卧室都拥配有可以完全开放的玻璃推拉门,直面大海美景。
 
 
 
 
 
 
 
 
 
 
 
 
 
 
 
 
 
 
荷兰设计师West 8
项目的景观设计由著名的荷兰设计师West 8设计,设计师从大自然中获取灵感,大量绿植环绕这居住环境,创造出自然和谐的生态景观,打造了一个浪漫的海边秘密花园。
 
 
 
 
 
 
 
 
 
 
 
 
「Eighty Seven Park施工现场」
 
 
 
 
 
 


