Studio Formafatal工作室是由建筑师Dagmar Stepanova创立于捷克的建筑事务所,今天我们来一起看看他们的哥斯达黎加的度假别墅,其中两座已经完工。
在距离哥斯达黎加Uvita镇不远的丛林山上,有一个隐藏3栋独特的别墅分散在2公顷的地块上。在投资者找到建筑师时,他希望创造一个空间,让游客与周周文环境融合在一起,让他们心旷神怡,同时体验奢华与冒险,当每个人体验过之后,都可以深入人心,难以忘怀。来自Formafatal studio的建筑师们遵循着客户的任务,也受到了他们的启发中美洲和南美洲的气氛和色彩,为他们打造三座完美的艺术度假别墅。
Art Villa丨艺术别墅
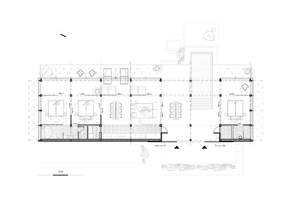
在艺术别墅区的所有别墅中,这座宏伟的混凝土别墅是第一个设计完成的建筑。
这栋两层楼的别墅占地25,000平方米,建筑面积570平方米,是该地区的一个亮点。除了宽敞的公共区域(门厅,主客厅,带餐厅的厨房和游泳池旁的屋顶露台)外,别墅还设有5间带私人浴室的卧室。地下室则设有儿童娱乐室、健身房、步入式衣帽间,洗衣房和杂物间等。
在设计室内时,我们不仅从周围的野生丛林中获得灵感,还从巴西建筑师保罗·门德斯·达罗恰(PauloMendez da Rocha)的作品中获得灵感。
混凝土墙故意保持原始,与室内构件、精选的材料、水和绿色植物相辅相成,一起创造了一个不寻常既粗糙又奢华的环境。
卧室和浴室的水泥装饰瓷砖地板,是在尼加拉瓜的边境定制。
千变万化的图案和色彩,反映了每时每刻的难以捉摸和独特的本质。
手绘水彩丛林主题的厨房背景室内的一个亮点。墙就像一面镜子,反映着墙后的生活,它就像一扇窗户,让我们看到外面的自然。
Art Villa,以及AtelierVilla,大部分家具由当地工匠设计定制或在捷克共和国生产,然后带现场组装的-它们都是由南美的设计师和建筑师设计的。
木饰面、金属和亚麻布——这些材料贯穿了别墅的始终,再加上用柔和的色调和明亮的颜色定制的家具件,为原始的混凝土内部带来了柔软的感觉。
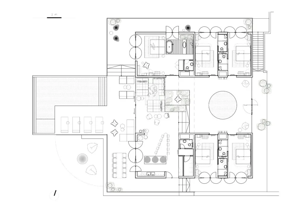
Atelier Villa丨私人别墅
Atelier Villa是为投资者及其家人设计的私人住宅。
这个26米长的棱柱状物体在陡峭的斜坡上滑行,部分漂浮在郁郁葱葱的热带植被之上。放眼望去,一望无际的大海,一望无际的青山;面向车道和邻近别墅的后墙故意没有窗户,以保持隐私。
首先,也是最重要的优先事项不仅是“消除内部和外部之间的界限”,而且还突显了建筑的简单和纯粹的线条。
深思熟虑的墙面色彩与绿色屋顶相结合,使别墅与周围环境真正融为一体。面向海洋和丛林的立面采用了大尺寸的铝穿孔部分。如果向上拉,它们就会变成两倍的檐篷。穿孔的尺度和图案在每个部分上都是不同的,从而创造了一个令人兴奋的光影效果。面板的特殊涂层是corten的颜色。整个后墙采用烧焦的木材覆层,用寿杉板(Shou Sugi Ban)处理。寿杉板是一种古老的日本木材防风雨和防老化技术。
在布置上,别墅拥有与它的外观一样的简约的功能。公用设施和储藏室、浴室和厨房沿后墙布置。
房子其余部分的布局是非常开放的;内部和外部世界之间的界限消失了,整个空间看起来就像一个有屋顶的露台。质量很轻的滑动墙可以作为创建私有区域的工具,并根据需要对空间进行调整。
天井里有一个巨大的游泳池,有部分屋顶,因此可以抵挡烈日。
CoCo Villa丨树梢别墅
顺着丛林的节奏,将自己包裹在自然的温柔气息中。在地面以上的高处盘绕,有一种一览众山小的效果。
在高高的树梢上,在一个豪华的巢里玩耍。这是一个私密的、受保护的公寓,高高耸立在生机盎然的热带森林之上。这是你发现原始自我的地方,就像在丛林里一样。
四套CoCo都有:一间带套间的卧室、起居空间、厨房、露台、游泳池和Tobboggan的功能。

