金陵幼儿园位于江苏省徐州市,甲方是一个非常有意思而又有情怀的大叔,项目原本已经施工到一半,又觉得“好像没有做出令自己感动的设计”而另委托我接手接下来的设计。而设计师更是一个极其理想主义而不顾一切的青年。在拿到我的设计稿的时候,甲方第一反应便是:原本只是想通过装修稍微做一下改变,现在看来好像是全部从头再来了。。。非常幸运甲乙双方能够互相认可与支持,才有了这样一个项目。
 
 
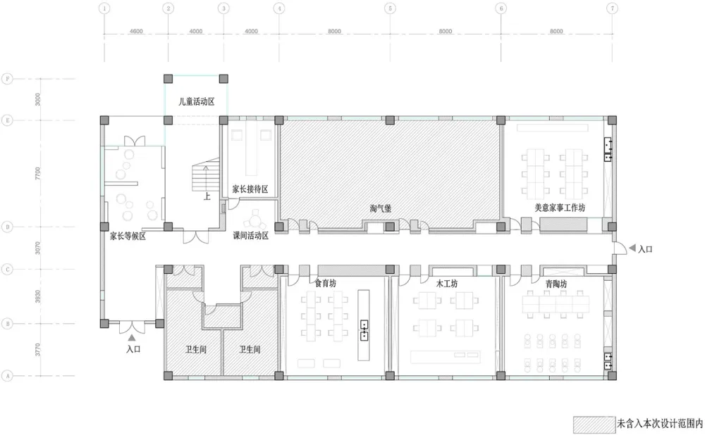
金陵幼儿园建筑面积14000平米,此次设计内容只涉及到其中的一小部分,五间教室(分别为:食育坊、木工坊、青陶坊、家事坊、绘本室)和走廊,除绘本室外,其他均在一楼。建筑原有分隔比较传统,走廊与教室隔绝开来,互不打扰。而学校对于这五部分的课程给了孩子极大的自由,他们可以根据自己的兴趣而自主选择,所以在设计上,将连接这4间教室的走廊设计成一个开放而自由的“连接器”。每个教室有两个大小不同的门,几乎所有的小朋友都会好奇而自觉地通过小门进入教室。墙面局部的圆形洞口成为小孩子玩耍、看书的小世界,而通过这些圆形的洞口、门上的圆形玻璃又可以使走廊与教室形成视觉上的交流,在走廊便可以看见小朋友上课的情形。墙面通过一面的倾斜而打破了原有对称的沉闷感。
 
 
教室内部材料主要采用木色+白色,明亮又温馨。墙面增加了大面积的柜子用以储存手工课程各种各样的工具。
 
 
绘本室位于二楼,相对安静。将原本的地面抬高,形成犹如星球表面的坑洞般一个个下陷的圆洞,孩子可以在里面看绘本、讲故事。中间圆柱内部为旋转楼梯,孩子可以在里面玩耍。













 
 
▼一层轴测图
 
 
▼二层轴测图
 
 
▼一层平面图
 
 
▼二层平面图
 
 
项目名称:金陵幼儿园室内改造 设计:何晓甜 联系邮箱:13555954122@163.com 项目设计 & 完成年份:2018.1&2018.6 主创及设计团队:何晓甜 项目地址:江苏省徐州市 建筑面积:650㎡ 摄影版权:大鱼摄影团队
版权声明:本文内容由用户自行发布上传或投稿由设计芝士代为发布,版权归原作者所有,设计芝士不拥有其著作权,亦不承担相应法律责任。如果您发现本站中有涉嫌抄袭或侵权的内容,请点此提交工单进行举报,一经查实,本站将立刻删除涉嫌侵权内容。
    

