镂空部分 ©Laurian Ghinitoiu
迪拜ME酒店位于Opus综合体内,坐落在迪拜的哈利法塔区,毗邻市中心和迪拜运河沿岸的商业湾。作为扎哈·哈迪德本人在2007年提出的设计,Opus探索了虚与实、透明与不透明以及内外空间的平衡关系,同时也是唯一一家由扎哈同时担任建筑与室内设计的酒店。
▼项目概览 ©Laurian Ghinitoiu
▼Opus综合体外观 ©Laurian Ghinitoiu
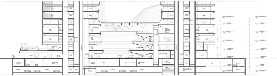
Opus占地84300平方米(907400平方英尺),其立方体的形式由两个独立的塔楼融合而成。立方体中央的“镂空”呈现出自由流动的形态,是设计中最为别致的部分。被巨大孔洞分开的两座塔楼在地面层通过4层高的中庭相连接,在距离地面71米的位置则由一座3层高、宽度为38米的不对称桥梁连接。
▼剖面图 ©Zaha Hadid Architects
▼立方体中央的“镂空”呈现出自由流动的形态 ©Laurian Ghinitoiu
▼被巨大孔洞分开的两座塔楼在距离地面71米的位置由一座3层高的不对称桥梁连接 ©Laurian Ghinitoiu
“Opus简洁而精确的玻璃立方体形式与其中央的8层楼高的空隙的流动性形成了鲜明对比。”扎哈·哈迪德建筑事务所的项目总监Christos Passas解释道。
▼街道视角 ©Laurian Ghinitoiu
立方体的双层隔热玻璃外墙覆盖以UV涂层和镜面釉料图案,能够有效减少立面对日光的吸收。这一波点状的图案覆盖了整个建筑物,一方面强调出立方体的清晰度,另一方面又通过反射性和透明度不断变化的光线效果使建筑的体量呈现出消隐的观感。
▼立面近景,可以看到波点图案 ©Laurian Ghinitoiu
镂空部分的四周形成6000平方米的表面,由4300个独立的玻璃单元构成,其中包括平面玻璃、单曲面玻璃和双曲面玻璃。每个高效的玻璃单元由8mm厚的低辐射玻璃(内部镀膜)、16mm厚的空腔和两层6mm厚、带有1.52mm PVB树脂层压板的透明玻璃构成。曲线型的立面通过数字3D建模得以实现,该模型同时还帮助确定了需要使用钢化玻璃的特定区域。
▼镂空部分的四周形成6000平方米的表面,由4300个独立的玻璃单元构成 ©Laurian Ghinitoiu
在白天,立方体的表面反射出天空、太阳和周围的城市景观;到了晚上,中央的孔洞会被安装在每块玻璃面板内的可调节LED动态照明装置点亮。
▼夜间视角 ©Laurian Ghinitoiu
由Zaha Hadid Design设计的家具被布置在酒店各处,包括大堂的“Petalinas”和“Ottomans”沙发。这些家具均由耐用的材料预制而成,其部件可以回收利用。
▼酒店大堂 ©Laurian Ghinitoiu
▼室内家具由Zaha Hadid Design设计 ©Laurian Ghinitoiu
▼室内细节 ©Laurian Ghinitoiu
迪拜ME酒店设有74间客房和19间套房,除了酒店之外,Opus综合体还包含办公楼层、服务式公寓以及多家餐厅、咖啡厅和酒吧等,其中包括ROKA日式炉端烧餐厅和著名的MAINE Land Brasserie餐厅。
▼接待处 ©Laurian Ghinitoiu
酒店卧室设有“Opus”床,套房内则设有“Work – Play”组合沙发和配套书桌。客房内部还结合以“Vitae”浴室系列,是由扎哈于2015年为Noken Porcelanosa设计,延续了酒店内部流畅的建筑性语言。
▼设有“Opus”床的客房卧室 ©Laurian Ghinitoiu
▼“Vitae”浴室系列由扎哈在2015年设计 ©Laurian Ghinitoiu
设置在Opus楼内各处的传感器能够根据使用的情况自动调节通风和照明以节约能源。ME酒店遵循了美利亚酒店集团一贯的可持续发展举措。酒店客人在入住期间会得到一个不锈钢水壶,与安装在酒店各处的饮水机搭配使用。除了客房内没有任何塑料制品,酒店还取消了自助餐服务以减少食物的浪费,并将废弃的有机物通过堆肥袋进行回收。
▼城市中的Opus综合体 ©Laurian Ghinitoiu
▼地下二层平面图 ©Zaha Hadid Architects
▼地下一层平面图 ©Zaha Hadid Architects
▼首层平面图 ©Zaha Hadid Architects
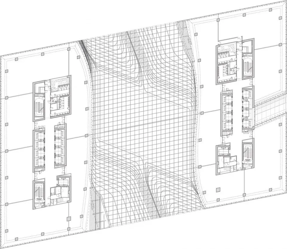
▼二层平面图 ©Zaha Hadid Architects
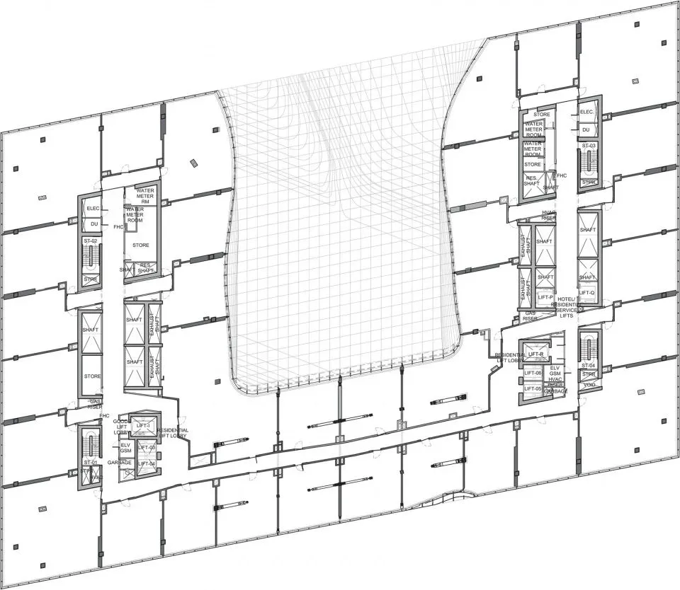
▼酒店裙楼平面图 ©Zaha Hadid Architects
▼剖面图 ©Zaha Hadid Architects

