Productora是一家位于墨西哥城的建筑工作室,由Abel Perles(1972年,阿根廷)、Carlos Bedoya(1973年,墨西哥)、Victor Jaime(1978年,墨西哥)和Wonne Ickx(1974年,比利时)共同创立。PRODUCTORA的工作特点是对精确几何图形的兴趣,以有限的元素创造出清晰简洁的项目,并在材料和空间上寻找永恒的建筑。
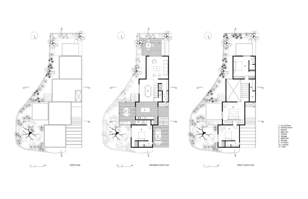
这个单户住宅的规划被分解为四个错开的体量,每个体量都有5×5米的空间。在平面和横截面上均出现了错动,并响应不同的地理条件。错开的平面整合了基地上现有大树,以及车库的定位。
交错横截面与场地的坡度相对应,形成垂直相互映衬的不同空间之间的联系。两层楼高的餐厅作为家庭的主要空间,通过连接所有垂直交错的空间的中央楼梯来衔接项目。为了尽可能经济地建造房屋,所选择的建筑系统是基于空心砖承重墙和梁/块楼板。
内部使用了裸露的砖块,而外部使用了水泥,创造了一个整体的外观。这种外露砖的非常规使用颠倒了做法,我们通常在外墙的砖被用于室内,为房间创造了温暖的感觉。因此,室内空间呈现出引人注目的纹理,与简单的水磨石地板和暴露的混凝土梁天花板相得益彰。
Casa Bautista
Casa Bautista是丛林中的一件活雕塑,是超现实主义和野兽派灵感的结合
在尤卡坦半岛的西安卡安生物圈保护区的茂密丛林中,你可能会偶然发现一座嵌在沙丘上俯瞰加勒比海的蓝色混凝土房屋。Casa Bautista隐藏在一块被玛雅人称为“天空起源”的土地上,它是通向大自然的大门,既承载着爱德华·詹姆斯(Edward James)的拉斯波萨斯(Las Pozas)超现实主义雕塑公园的奇思异想,又承载着一座残酷堡垒的重量。
在三角形尖顶的支撑下,房屋似乎在树冠中盘旋。已经爬满了藤蔓和爬山虎,这可能是中世纪未发现的现代主义废墟。然而,仅在六年前,两个朋友就用砍刀砍掉了茂密的植被,寻找一块足以荒野的土地,以满足他们最狂野的建筑幻想,一个让朋友们沉浸在大自然中的超现实主义隐居地。。这对夫妇,Productora的建筑师兼总监Victor Jaime和位于瓦哈卡州的有机咖啡庄园Pueblo del Sol的创始人Ezequiel Ayarza于18年前在墨西哥城的一家酒吧偶然碰面。当天海梅(Jaime)的就辞掉了工作,在2001年金融危机中,阿亚尔扎(Ayarza)刚从阿根廷来到这座城市。
他们的计划在此扎根了,但是在Sian Kaan生态保护区的规划规则意味着这所房子只能覆盖300平方米限高到8米(与树冠一样高),而对丛林的任何清理都是仅限于建筑物的周边。正是这些限制,激发了这座三层住宅的灵感,它包裹在木材棚架中,屋顶上有一个游泳池和用餐区,让你仿佛置身于大自然、海洋和天空之中。在地面上是一个遮蔽的,阴凉的区域,用于存放海滩设备,二层容纳了宽敞的就餐和起居空间以及卧室。
由当地察拉姆木材公司的木匠建造,一个由轻质凉棚和梯田组成的系统,在提供遮阳和湿度控制的同时,软化了原本粗犷的建筑,还创造了额外的生活空间。这所房子提供了充满惊喜的空间,其中包括“一个通向隐藏的麦兹卡尔酒窖的秘密门”和一个由木桥连接的混凝土圆筒,“概念上就像进入涡轮机一样”,杰米说。这个圆柱体,三角形的楼梯和一个外部的螺旋楼梯,房子就像一个生活在丛林中的雕塑。“Productora一直感兴趣的简单形式,及其与周围的景观,“建筑师补充道。
在Casa Bautista,建筑艺术延伸到染成蓝色混凝土的材料,这是对海洋和天空的致敬。“它属于这个地方,就像水里发现的一块石头,”杰米说。点缀着浅绿色、天蓝色和浅灰色,表面有纹理和反光。黄昏时分,当客人来到屋顶,在粉红色的夕阳下用餐时,沙子变成了月色的灰色,丛林变得更加密集,房子则是被余晖染成了紫色。“我们喜欢认为我们的项目是我们的时代,是永恒的,因为它们谈论的是基本的东西,比如敬畏、情感、明暗和环境,”Jaime说,这座独特的海滨别墅肯定全年都挤满了朋友。
Teotitlán del Valle Cultural Center
这个社区文化中心展示了墨西哥瓦哈卡州Teotitlan del Valle村的考古发现和纺织文明。面向村庄广场的主体量容纳了博物馆,博物馆将举办特提特兰历史博物馆的收藏和活动。该项目受即时环境的美学支配,而美学决定了高度,颜色和所用材料。其他功能空间包括市政图书馆和服务区。两座建筑所占面积仅占总面积的18%,留下了广场和花园等大型公共空间。这有助于改善穿过场地的步行路线,并与主要广场连接,将文化中心创造的新公共空间巧妙的连接到现有广场的环路中,并且定义了村庄的城市结构。
建筑体量呈现朴素、中性的外观。建筑的形式和材料特点,包括双层斜屋顶,30厘米厚的混凝土墙和控制开口,创造了一个被动系统,以应对恶劣的气候条件。这一基本策略有助于调节建筑内部的温度,为用户提供一个舒适的空间来读书、工作或参观博物馆,同时也避免了安装空调系统的需要。室内呈现出不同的照明条件和空间品质(双层和三层高度的空间),为展览和活动创造了不同的氛围。文化中心使用当地最少量的材料(染色混凝土、木材、粘土瓦和砖)来融入它的环境。
Teopanzolco Cultural Cente
新文化中心项目位于Teopanzolco考古遗址区对面,基于两个基本策略:一方面加强与考古遗址的关系,另一方面创造一个重要的公共空间。
建筑是围绕两个元素,一个三角形包含公共建筑项目(大堂、服务、票房,衣帽间,礼堂)及其周围平台包含操作区(更衣室、存储、车间等),以及一个多功能剧场。
围绕三角形建筑的水平平台是考古区和城市的观景台。大基座有一系列的天井,其中一个正对着礼堂的第二个入口,已经被隐藏在地下,形成了一个小型的露天剧场空间。该平台产生了各种各样的外部空间,解决了进入礼堂内部或平台本身的次要通道,同时整合了现有的大树。
与此同时,主要的三角形屋顶由一个巨大的阶梯式坡道组成,坡道从十字路口出现,与环绕它的水平平台形成对比,大大减少了新建筑的物理存在和视觉影响,同时将屋顶本身转换成一个额外的露天礼堂,以考古遗址为背景。巨大的三角形广场形成了大礼堂大厅的屋顶,同时也包含了另一个较小的三角形广场,反过来又形成了主大厅的屋顶。平台在相反的方向下降,并创造了倾斜平面的视觉相互作用,这些倾斜平面可以从建筑物的不同位置欣赏到。主大厅是一个半开放的空间,它的开口位置很重要,有流畅通风,避免使用空调系统。入口空间的三角形平面布局的轴线特意与主金字塔对齐。因此,正对着金字塔的大厅成为了一个观景台和活动前后的会议空间,以及与当代文化生活和过去的存在建立持续对话的空间。


现在这个浮躁的世界,能细心整理一些东西发上来的越来越少了。要么就是敷衍的图片,要么就是枯燥的文字。之后就是AI生成的预制菜类的打包便捷快餐了。感谢楼主的分享,让我能在大智能无人化来临之前,看到同类发出的项目。有幸与您互动,缘分2