Grammarly是一家全球性公司,在旧金山、纽约和基辅设有办事处。Grammarly是一个数字写作助手,每天有数以百万计的人使用它,无论他们在哪里打字,它都能使他们的交流清晰有效。Grammarly全天候运作,广泛使用IT设备,并在个人和组设置中进行大量通信和数据交换。公司需要为不同的活动类型提供各种各样的空间,包括一个可容纳150人的大型会议厅,用于演讲和演示(又称会议区);设有多个小型会议室,配备资讯科技设备,在全球各地的办公室之间举行高质素的影音会议;接待区;隔音娱乐室;员工食堂;打盹的房间;几个休闲区;设施区域
 
 
其他要求包括环保材料、暖色调和室内的家的感觉;会议连接和电气化系统的高科技解决方案,以及空间的灵活性和适应性。
 
 
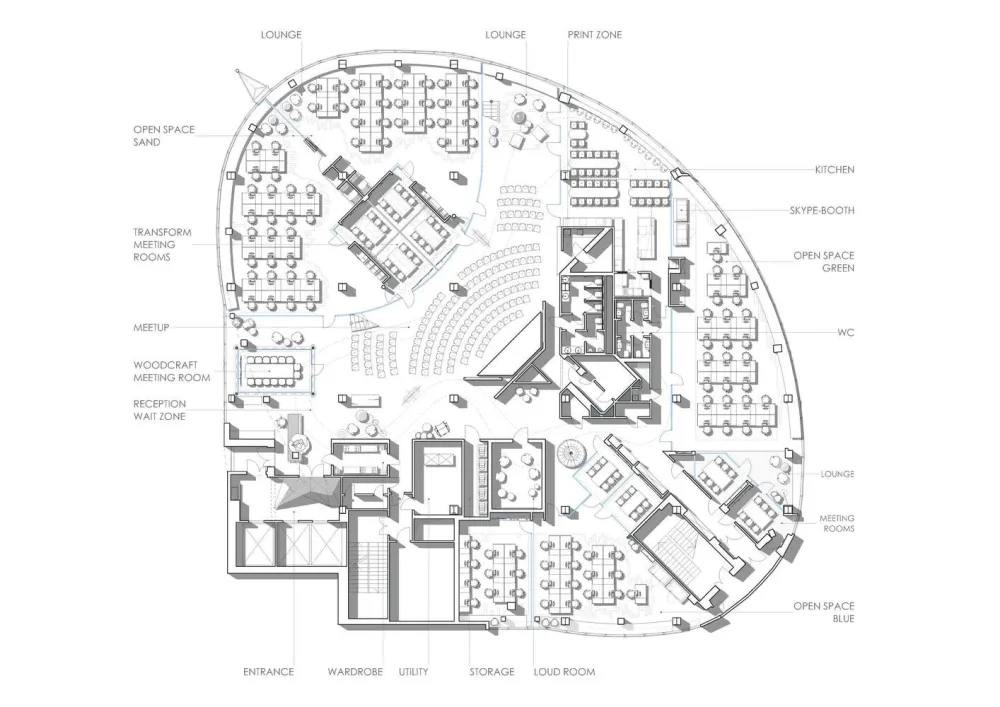
原办公区位于一栋14层办公楼的顶层两层,分为两层,一层为8.8米高的天花板和1300平方米的开放空间,另一层为3米高的阁楼和450平方米的空间。
 
 
我们的设计理念是将会议区设置在一楼,使其成为办公室的核心元素,成为办公室的心脏,围绕着六个开放空间工作区,每个工作区都具有隔音的功能。我们调整了夹层的结构,以确保正确的径向曲线,将工作区与会议区分开。我们将两层与新安装的开放式楼梯连接起来。
 
 
几个独立的包厢为安静的工作和一对一的交流提供了隐私。更大的会议室,可容纳8至15人,位于会议区周围,并以不同的颜色完成。办公室里有21个休息区,包括一个图书馆、一个午睡室和一个放乐器或看视频的音响室。甚至还有一个壁炉区,用来增加舒适和放松,这也是一个非正式的会议场所。
 
 
环保材料和天然木材的广泛使用,包括创造性重用橡树整个办公空间,多个引用户外休息区,和大量的自然光有助于创建一个积极的员工工作与生活的平衡,导致自己最高水平的舒适和效率。
 
 
午睡室设计为三个睡觉的地方。从概念上讲,这是由窗帘关闭的三个块,用于光学隔离。这些模块有床垫,称重传感器位于床垫下。如果有人占据了一个睡觉的地方——传感器会做出反应,并向灯光指示发送信号——zZZ字母,表示该区域处于繁忙状态。
 
 
一楼房间上方的休息区通过整个办公室的一个关键元素——悬索桥与工作区相连。桥的长度为90米,它环绕办公室呈柔和的曲线,俯瞰整个办公室,并在其路径上略微扩大,以容纳休息区。这座桥没有地面支撑,只是悬在天花板上。为了保持桥梁的厚度最小,我们通过了主楼下的洒水系统管道,将它们的碎片融入到桥梁的主体中,与桥梁的结构元素相融合。
 
 
 
 
 
 
 
 
 
 
 
 
 
 
 
 
 
 

 
 

 
 

 
 

 
 

 
 

 
 
 
 
 
 
 
 
 
 
 
 
 
 
 
 
 
 
 
 
 
 
地址:乌克兰
年份:2018
摄影师:Andrey Bezuglov, Yevhenii Avramenko


