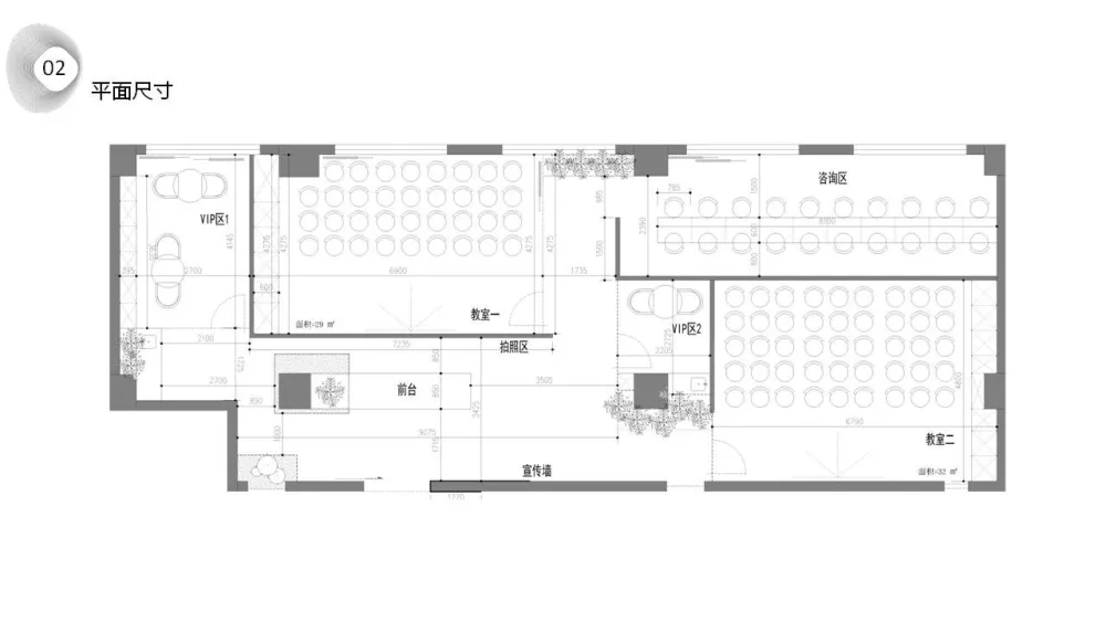
项目位于山西太原晋阳街体育路口宏安大厦10层(150㎡),伴随人口老龄化的社会背景,业主倡导家政一体化服务理念,将培训管理与业务标准化,在老龄人口市场实现精准定位,设计深化过程中精细无障碍设计与老龄人口行动配合及甲方服务流程。
视觉引导分析
项目名称:佳禾国际家政服务中心 办公室室内项目
项目地点:山西太原晋阳街体育路口宏安大厦10层(150㎡)
设计公司:初舍工作室
主案设计:郜少帅
设计团队:王嘉兴、魏杰
完成时间:2020年
项目规模:200m2

