建筑师Guilherme Torres是巴西当今最知名的建筑师之一。作为新一代的代表,Guilherme的项目作品屡获国内多个奖项。它致力于高品质,极简主义、有趣的完美主义,,除了一个不同寻常的调色板和对后现代美学推崇之外,他还在尝试的各种可能性和设计语言,它的项目——无论是住宅设计、商业设计还是家具设计——都在完美的平衡中脱颖而出,永远不会单调。
Garden House
项目摄影:Denilson Machado – MCAEstúdio
圣保罗市的一个私人社区中,占地2700平方米的土地呈现出既具有吸引力又具有挑战性的元素,在场地中央有着一颗百年无花果树。它也被称为生命之树,它是圣经中所讲的第一棵植物,当和夏娃在吃了智慧之果后,用无花果树的叶子缝制了衣服。象征着贞节、道德和不朽。
这个项目是为一对夫妇设计的,偶尔他们的孩子回过来看望他们,整个项目分布在直径约15米的树周围。该地块有一个陡峭的斜坡,与街道的水平,成为项目的一部分。沿街区行驶时,你会发现该建筑与环境几乎融为了一体。
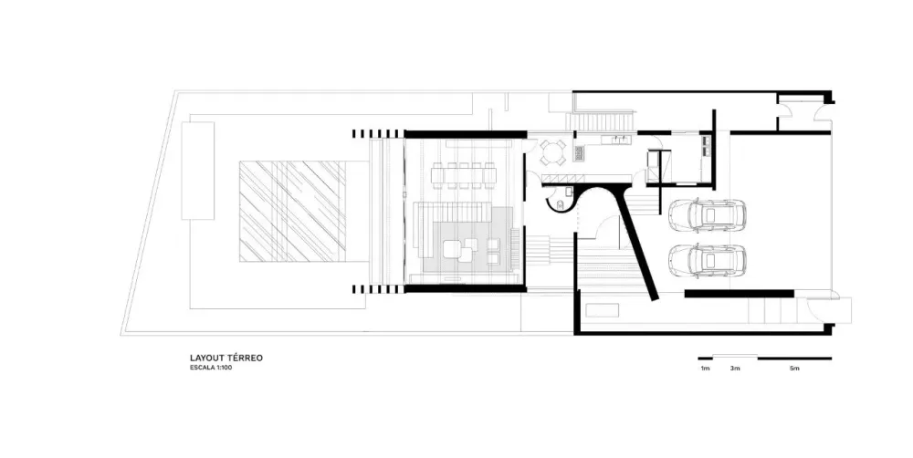
三个功能区分布在无花果树周围,形成了一个庭院。车库屋顶是大型钢结构,它同时也确定了建筑物的入口。
这些项目运用了大量的天然和原始材料,例如耐候钢和结构墙的裸露混凝土。与这些粗糙的材料形成对比的是,大理石和白色墙面创造了微妙的框景,把一个特殊的热带伊甸园景观展现在我们面前。
项目摄影:Denilson Machado – MCAEstúdio
这座1100平方米的住宅位于圣保罗最高档社区的中心地带,由业主的祖父母在上世纪60年代建造。原来的房子是按照新古典主义风格设计的,有一个非常封闭和分隔的楼层平面图。该项目旨在重新思考环境的空间分布,开放内部空间,创造新的结构,将住宅转变为当代艺术作品,与年轻的DJ和音乐制作人保持完美的融合。该住宅呈现出一种非常精致而又不拘泥于形式的风格,并且使用了永恒的白色巴西大理石材料配以精致的木饰面形成鲜明对比。
所有的家具都是由建筑师设计的。会客厅和壁炉间的沙发都覆盖着织物和皮革,采用模块化系统,可以进行无限的组合。餐桌,故意只装了一把椅子,保持了装饰的戏剧性气氛。我们看到的艺术品都是主人的私人收藏。黑色木饰面墙隐藏了像酒窖一样的门和空间,它与办公室分隔开,用丙烯酸材质的面板设计,创造了一个品尝区和容纳葡萄酒的空间,这是业主最大的爱好之一。
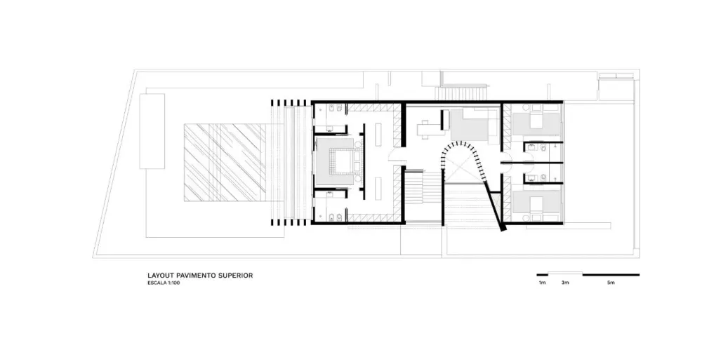
二楼上是一套宽敞的140平方米主卧套房,包括卧室、露台、壁橱和浴室,几乎没有任何分隔。所有的家具都是专门为这些空间设计的。上层空间用了大面积的可移动黑色穿孔金属板,具有非常强烈的图形效果,像素化的冠树环绕整个建筑,给项目带来一种超现实的感觉,这个项目并不打算充分装饰空间,而是一个精心挑选的家具,这些家具也承载了主人多年来的情感记忆。
由Guilherme创造了500平米的现代空间,感觉就像在一个田园般的环境中。我想要的是一个完整而独特的空间。我的灵感让我有信心创建一个不会过时的建筑结构。
Villa Deca在场景中视觉干扰最小的情况下差不多用的是原材料。房子没有窗户,也没有锁,看起来就像一个巨大的阳台,一个亲密的避难所。极简主义的环境,纯粹的单色,从室内到室外几乎是完全开放的。
Parallel House
项目摄影:Denilson Machado – MCAEstúdio
Guilherme Torres陪着这对年轻夫妇买下了这块地——建于80年代圣保罗传统街区中心地带的463㎡的房子,他们的愿望是使建筑适应他们的生活方式,同时考虑到未来孩子们的到来。
住宅为家庭提供了理想的规划,但其形式是完全分隔的平面。建筑师选择增加空跨度并整合空间。从一开始,我们就决定尽可能利用现有的建筑。例如,窗户上的木制框架是原始的,我们只是经过适当的处理和油漆。
旧的游戏室被整合到门廊中,形成了一个完整的起居区,并配有一张大餐桌和其他家具,全部由混凝土制成。这一决定节省了资源,但也赋予了房子历史的记忆和规模。
原来的天花板是木饰面,非常低,但是拆除后发现了非常漂亮的混凝土梁结构。这个元素,一系列的柱子创造出来,包括了建筑的整个外部区域,创造了一个非常特殊的几何形状,并给它命名为“平行房屋”。
建筑师的另一个标志是在装修尽可能的最少使用装饰材料,在这所房子里,所有地板都是用半抛光白色花岗岩制成的,包括游泳池。

