编译:专筑网王帅,小R
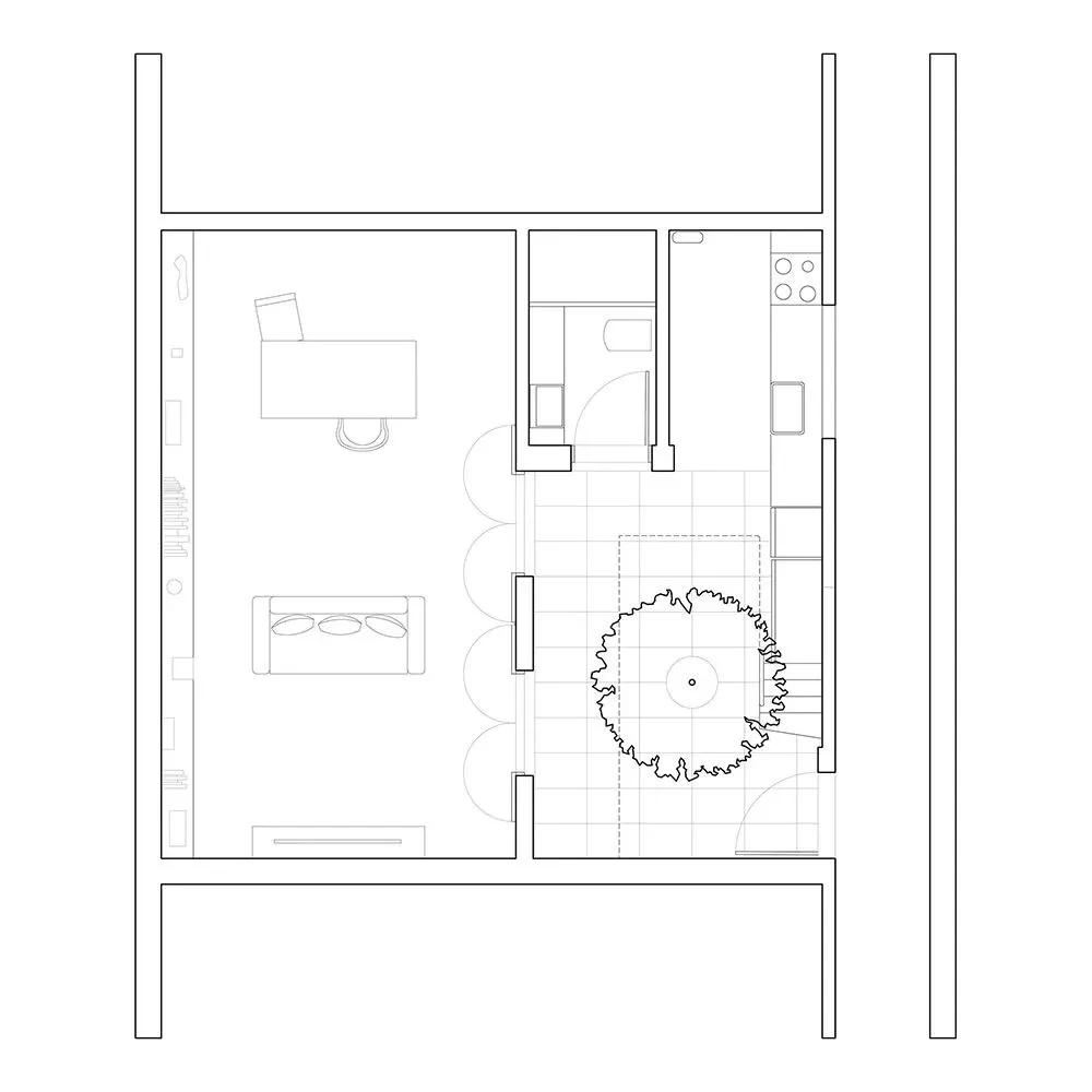
阿根廷建筑师Hernan Landolfo和Marcos Asa对阿根廷首都布宜诺斯艾利斯的一座公寓进行了扩建,建筑师重组了中间生长着橄榄树的通高中庭。
Landolfo 和 Asa受邀扩建生活空间,包括家庭办公室。他们再三思索,认为增加可用面积的最佳方法是将其庭院包围起来,从而为公寓增加一层楼。
Hernan Landolfo解释道:“我们主要通过轻质、透明的结构来完成扩建,同时利用简单的地板构成形式上的统一。”这个项目名为“Juramento住宅”,名字来源于其所在的街道。
业主可以通过通高、玻璃封闭的中庭进入90平方米的公寓,在此之前,这里是开放的庭院。该空间围绕着一棵橄榄树。Landolfo表示树和庭院拓宽了内部的视野。 Landolfo 说:“在地面层,橄榄树在视觉上影响着房间。”
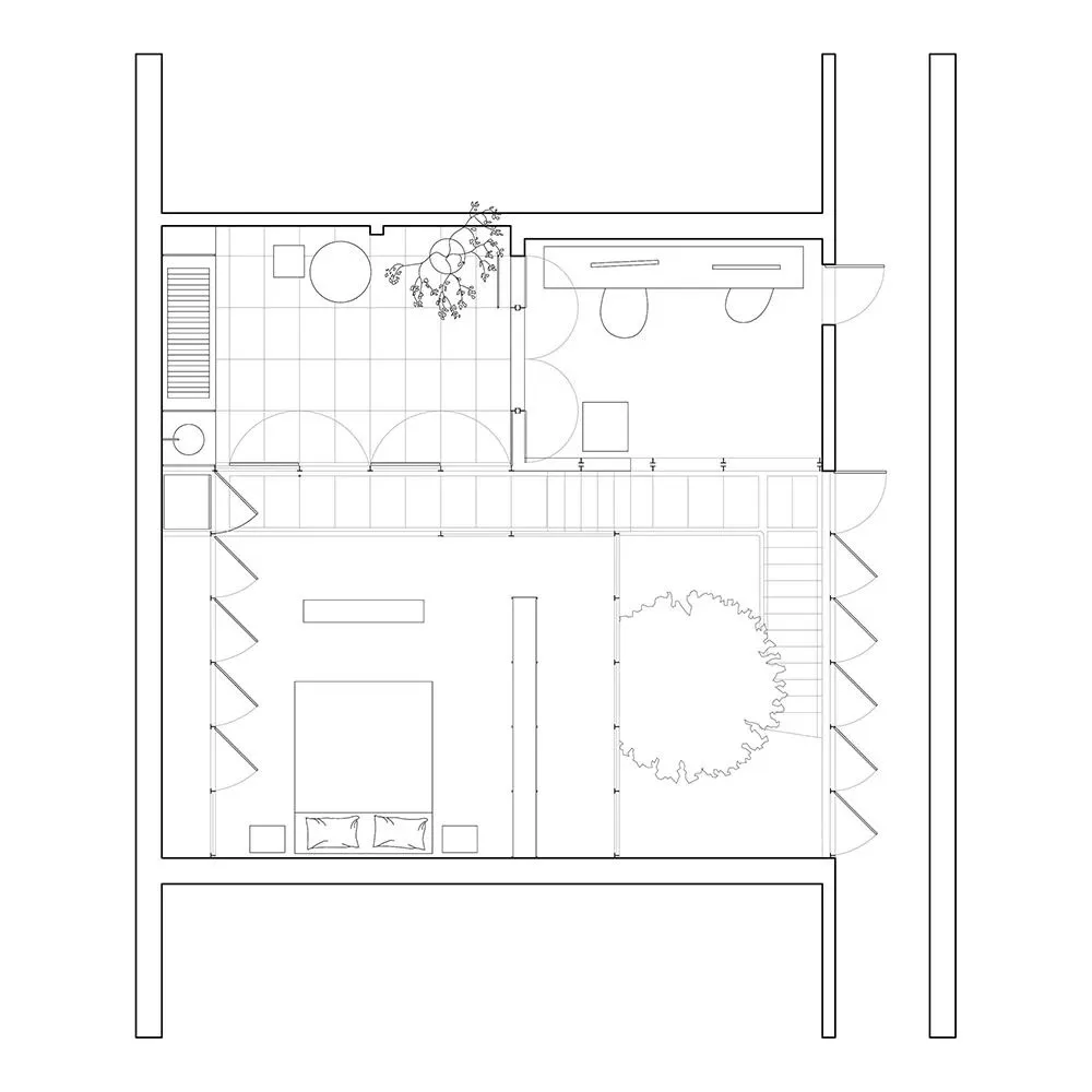
新封闭的空间使用了硬木地板,这创造出一种更舒适的内部表面。厨房上方是一间家庭办公室,它可以完全打开向庭院,俯瞰橄榄树。 在另一侧起居室的上方是业主的新卧室。这里使用了半透明的玻璃包裹着,为业主提供了一些隐私,同时在白天可以拥有充足的自然采光。
Landolfo说:“在一楼的玻璃起到了进入和离开卧室的分隔作用,因为它有着不同透明度的反射感。”
卧室外面还安装了屋顶露台。这里铺设着与庭院类似的石材,让内外部空间保持了较好的连续性。
Landolfo和Asa并没有对这所公寓进行大翻修,他们留下很多原来的东西。钢材组成了基本结构,除此之外,还有木地板和内置的架子,最终,这些硬朗的元素通过绿色植物而显得柔和一些。 他们在阿根廷的其他项目还有位于布宜诺斯艾利斯的艺术装饰风格的住宅扩建,还有以前用于马厩的一座住宅设计。 摄影:Javier Ajustin Rojas


学习学习