江南造币博物馆及金基集团总部位于南京来凤街菱角市66号国家领军人才创业园(简称“国创园”)内,由一栋老厂房局部改造而成,包括一处对公众开放的小型博物馆——江南造币博物馆,以及金基集团的办公、接待和展示等空间。由于金基集团是所在“国创园”园区的开发、运营机构,博物馆也以园区的历史、文化为展示内容,因此将项目置于整个园区的历史和空间脉络中进行思考,显得尤为必要。
园区历史脉络
Historical Context of the Park
项目所在的“国创园”园区,前身为南京第二机床厂厂区。该厂区的历史可追溯至1896年,两江总督刘坤一筹建的“江南铸造银元制钱总局”。辛亥革命后的1912年,该厂改名为“中华民国江南造币厂”。1930年隶属工商部,为全国度量衡局所辖“度量衡制造所”。1949年南京解放后,为地方国营“南京度量衡厂”。1955年公私合营组成“南京第一机械厂”。1959年更名为“南京第二机床厂”。2012年,南京第二机床厂搬离,“国创园”启动建设。厂区目前的布局和建筑遗存均为解放后形成。设计团队通过对历史文献、地图的梳理、研究,厘清了厂区的发展过程和形态变迁。根据研究制作的模型成为江南造币博物馆的展示内容之一。
“砖拱吊车梁”工业建筑结构的价值判断
Evaluation of the Industrial Building Structure “Brick Arch Crane Girders”
项目所在的“国创园”8号楼,原为建于上世纪60年代初的“铸造车间”。其主体部分东西长60米,南北进深23.8米。主体结构为在南北向排列的3道混合结构承重墙体上搁置2列钢木组合桁架(跨度12米),每列桁架共20榀。每道混合结构承重墙体下部为青砖砌筑的连续拱券(拱跨4米),在距地面4.7米以上转换为砖混结构柱,与下部拱间砖柱对应,柱顶由混凝土梁联系,桁架搁置于梁上。3道承重墙体包含的3列连续砖砌拱券,东西向共21跨。这3列连续砖拱的存在,令厂房内部与外部给人的印象反差极大。从外部看,“铸造车间”可谓平淡无奇,水泥抹灰墙面上开方窗,朴素而略显单调;而内部,3列砖拱砌体在形式上具有强烈的韵律感,清水砖砌叠涩和拱券呈现出砌体结构特有的建构美感。砖拱在外立面上的完全隐匿,表明其形式并非外观表现性的需要;而砖拱砌体与其上部结构的显著差异,也否定了这一砌体结构形式是出于承托屋面荷载的考量,由此可以推测它们与工业生产工艺流程中的特殊需求有关。
经过查阅文献和访谈,设计团队确认,这些砖拱结构体是在上世纪50年代末至60年代初,因钢筋混凝土材料匮乏,而以连续砖拱吊车梁代替常规的混凝土结构吊车梁的工程措施。作为特殊时期的一种工业建筑结构做法,反映了当时的生产条件和社会面貌,而具有其历史价值。
设计问题
Problems Encountered
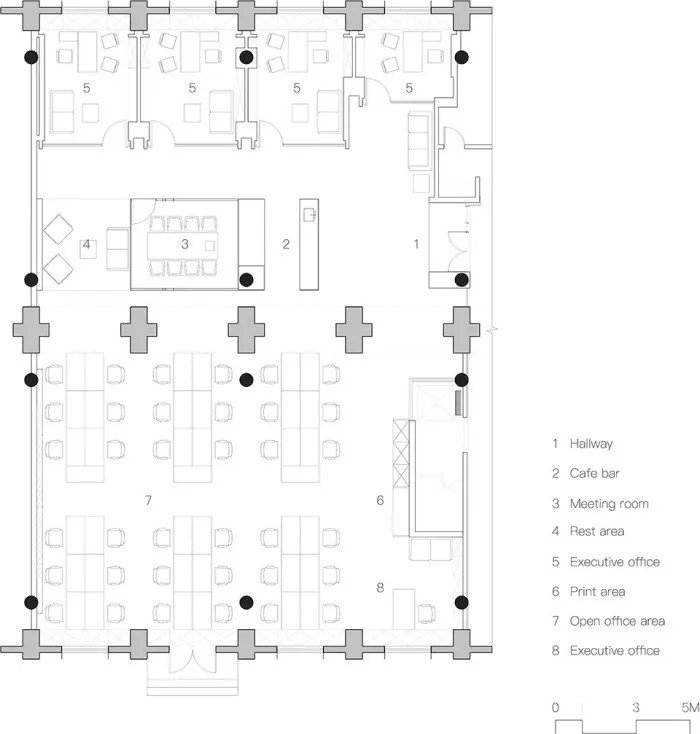
金基集团总部占据了整个“铸造车间”东西向21跨砖拱中8跨所对应的区域,其西侧8跨、东侧5跨区域另有所属。在设计团队接手该项目之前,“铸造车间”已经经过一轮改造。既有改造的目标是将“铸造车间”改造为“美术馆”,并已经在原厂房内植入了由钢筋混凝土框架结构支撑的夹层楼板,将原厂房的大空间划分为上下两层。夹层标高与砖拱砌体顶部平齐,这样,除了通高的大厅以外,砖拱砌体只能在夹层以下的底层中可见。现在,业主要求将原本作为“美术馆”的大空间改造为总部办公空间,包括用于办公、接待和展示的各种尺度的空间。因而,建筑设计所面临的主要问题,就成了:如何在既有的改造后的底层空间中,因使用要求的改变,重新限定出小尺度的空间,并使这种空间限定与保留的砖拱发生关联,从而同时使砖拱的建造的美感得以表现。
概念
Design Concept
从厂房结构中提取出结构“单元体”进行尺度转换分析:
类型一:置入“拱”形要素
在原有砖拱之间设置的“拱”形要素,通过“拱”形要素的变形、错位等形式来限定和划分空间,使原有砖拱在空间中被关联和延续。
方案
Project Plan
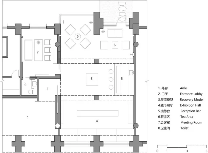
3道砖拱砌体把项目所在区域划分成南北两区。方案将一系列小空间设置在北区,其中盥洗室和VIP接待室将较为公共的博物馆和较为私密的高管办公区分隔开,并限定出与大厅之间的过渡空间。博物馆被设置在北侧东端,朝北向园区公共空间开敞,并利用既有的出入口直接联系园区主要公共流线。博物馆内部设置的“拱”形要素将空间划分为三部分,分别对应了不同的展示和接待等内容。




▼厂区地界及项目位置
▼剖透视
▼平面图
▼剖面
▼项目整体结构建造时期分析
▼空间转换类型一
类型二:置入“内胆”
在既有空间中置入独立的盒体,盒体如同“内胆”,形成内部的小环境,具有良好的隔声等物理性能,配备独立的空调系统,在开放的办公空间中营造相对私密的功能空间。
▼方案概念图示
▼空间转换类型二
▼结构“单元体”
▼既有改造之后的结构示意及项目工作范围
▼“铸造车间”主体结构示意
项目名称: 南京江南造币博物馆及金基集团总部办公
项目地点:南京国家领军人才创意产业园8号楼
室内面积: 520平方米
改造设计: 反几建筑
设计团队:万军杰 金鑫 章振东 张旭 李崇昊
项目运营:高璐 金鑫
设计周期: 2017年7月- 12月
施工周期: 2017年12月-2018年8月
历史资料:反几建筑,杨侃(南京大学建筑学博士)
模型锻造:南京峰尚雕塑艺术有限公司
铸造厂家:南京神匠环境艺术有限公司
软装配合: 反几建筑、南京金基集团董办、设计部
金属工艺指导:王克震
业主单位:南京金基集团
撰文:杨侃 万军杰
后期摄影: ingallery金啸文,赵奕龙

