4 2 1是当代中国人普遍的家庭结构。高居不下的房价、繁忙的工作和亲密的家庭纽带,让作为“独一代”的年轻人不得不上孝父母、下抚孩童。即便如此,80后和90后们还是会在巨大的生活压力下坚持自己对生活品质的要求。那么,如何让刚需人群生活的更舒适?此案是对中国当代最典型的生活方式的探索。
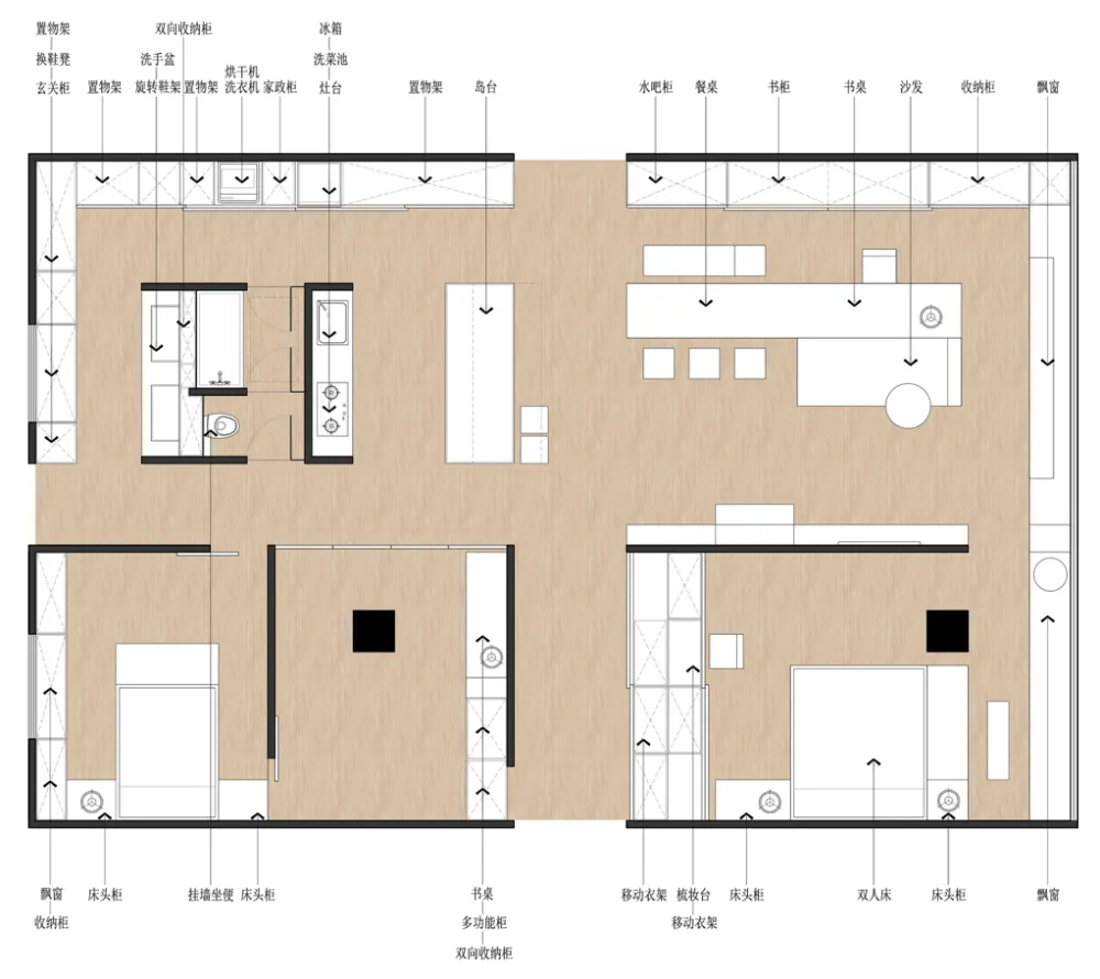
回家后依次完成换鞋-洗手-更换外套等动作
双台盆是五口之家使用之需
时刻都可以无接触收快递
壁柜拿取餐具—开放式厨房烹饪—餐桌进餐
中央岛台、餐桌、书桌、沙发等置于一个空间
形成具有综合功能生活区
夜晚降临,客厅转换成书房
当代人加班已经成为一种日常
夜晚,整体收纳的书柜和工作桌成为必需品
除了舒适的床品、强大的收纳
还为夫妻二人留有休憩空间
随着时间推移 ,空间功能转化
无论在孩子成长的哪个阶段
每个空间作用都可以充分发挥
在房间内外均可以拿取衣物
衣柜内布局可根据需求变动
不同尺寸的厨具摆放一目了然
零散的生活用品需储备在公共空间
方便拿取、又不显得杂乱
马桶间和淋浴间分离的同时又双侧打通
厨房和岛台是整个空间的视线中心
无时无刻,孩子都要在我们的视野内
做饭的时候孩子在一边玩耍
为孩子活动和成长空间留足可能性
“光”是常常被忽视的存在
但身边的每一份温暖都深藏其中
时代给中国家庭提出的难题就是给中国设计师的挑战。恒田设计关于当代居住方式的探索,希望可以让身边的普通人都可以生活的更舒适。
北京恒田建筑设计有限公司 创始人
赴日留学又在意大利深造,回国后创办设计事务所。15年的设计工作,让我坚信,空间中生活方式属性更为重要。空间要满足人在空间里的所有诉求,要考虑他的社会角色和行为。设计理念——打破常规,不如在常规下细致入微。


111111