Littlenap里奈九溪位于杭州西湖九溪景区,是对景区内原有住宅的改造。
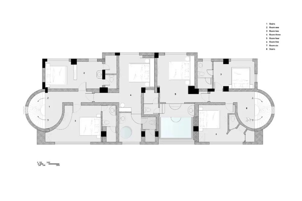
原有建筑包括了两栋紧邻的三层建筑以及一个单独的小房间,第一次查看现场,我们就和甲方共同决定,将单独的小房间从功能上与普通民宿区别开,使他成为一个具有多种可能性的空间,同时将原有两栋三层建筑的一层打通,形成一个通畅开放的首层公共空间,这个公共空间与独立的小房间一同赋予了littlenap一种灵活性。
为了达成空间的连贯性和多功能性,我们对整栋房屋进行钢结构加固工作,拿掉了原有墙体,彻底将一层开放。
从这一点出发,我们希望将littlenap打造成一个具有文化或艺术属性的场所,而不单纯是一个民宿,首层的公共空间承载了餐厅、礼品、接待、交流等属性;
而独立的小房间在日常作为单独的一个套间使用,定期会转换成为一个小展厅展示独立艺术家的作品,我们为他取名为napnapnap。
建筑在景区并且由于原有建筑的结构限制,我们没有对建筑外立面进行彻底的改造,我们使用了三种室外材料来对建筑外立面做了低成本改造。
对于室外庭院地面,我们使用了透水石,形成了单色耐久的室外地面效果。
建筑室外公共空间使用了红砖,虽然是传统材料,却形成了与景区其他建筑皆然不同的视觉效果和感受。
建筑二三层外立面使用建筑外墙肌理涂料,使原本单调的建筑外立面形成了肌理感的光影效果。
Little nap 里奈团队对室内软装进行了设计和选择,与建筑空间结合形成了特有的空间氛围。
吧台背景墙11把钥匙对应了11间客房。
Napnapnap在硬装和软装设计上与其他房间有着明显的区分,但同时又在风格上形成统一,空间中的家具均可以方便变换位置,床架也是特别设计,将两部分床架上下叠放,可形成一个陈列展台。
每一间客房的窗外都是极富绿意的美景,在结构允许的范围内,我们在墙上、屋顶、茶室设置不同大小形状的窗户,让光线、景观通过不同的方式进入到室内。
设计师:SAY ARCHITECTS 地址:九溪,杭州,浙江,中国 建筑面积:600.0 平方米 项目年份:2019 摄影师:Projection映社,汪敏杰 主持设计:单嘉男,张岩 设计团队:管晗羽,沈冰洁,孙紫益,徐瑞 施工团队:杭州优办装饰有限公司

