特房·芙蓉书院售楼处落址于厦门翔安香山下,毗邻厦门大学翔安校区,蕴蓄着贤仕文府底质,徐绮设计事务所在特房·芙蓉书院售楼处设计中,以书香雅韵为基调,构建当代生活空间的文化气质。
空间里讲求一个“场”字,
就是空间的气质之“场”
与未来人群的格调之“场”二者契合。
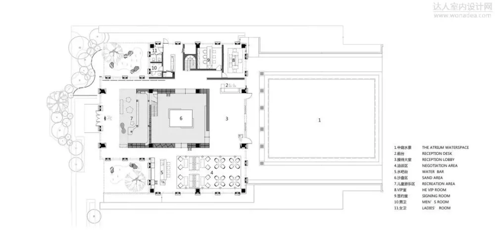
木栅长廊,池面如镜,敦厚的立柱线条与平整的飞檐映入眼帘,特房·芙蓉书院售楼处入口显得宁静而雅趣。出则繁华,入则静。步入室内,设计师用书架墙进行分割,围合,塑造内部空间。以沙盘区域为空间轴,两侧对称布局衔接洽谈区、吧台、VIP室、签约室等功能区域。
通高的书架墙构成视觉停留点,并将视线向纵深延展,线与面形成的韵律感,让穿梭在其间的人们有了探索与交流的出口。
沙盘区作为空间核心展示区,四面由书架墙环绕,以胡桃木色为主基调,材质的天然肌理构成舒适的界面。满目琳琅的书籍与艺术品,分别置于墙柜中,营造出雅致的阅读环境。从顶部玻璃窗投射进来的自然天光与灯光编排的默契配合,让温和的光影包覆其室,敞亮的环境让沙盘在此间从容优雅。
结合信息展示需求,设计师把显示屏融于书架墙,并将部分书柜改造成旋转展板,既结合了功能需求,又赋予墙柜多样变化。
向后一面的书架墙,以阶梯分割为多个层次,呈现递进延伸的视觉空间。放置的绿植则为空间注入灵动的呼吸感,强化了整个空间的意境。
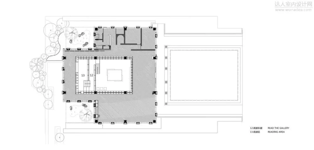
儿童游乐区位于阶梯式书柜墙之后,设计师利用下沉空间,打造一条“秘密隧道”,空间还可容高1.7米的大人通行。隧道两侧书柜放置童书,在这里,孩子可以充满好奇地探索,与空间互动。
洽谈区,明亮而宽敞,大幅的落地窗,伴随着翠竹的绿影,呈现盎然生机。光影是空间中流动的生命,光线透过半掩的百叶窗跌入,赋予空间光的纹理与秩序。
基于对人员动线关系在公共空间的梳理,设计师有意模糊空间区域的界限,将洽谈区与吧台结合,连续、匀和的开放界面,营造出学府空间文雅、闲逸的环境氛围,让交流更加自由有序。
汇聚的社群,必定有着对某种高品质生活方式的价值认同。特房·芙蓉书院售楼处,不仅作为功能场所,还为该小区入口,途经一路书香,浸染美学之调。
本案例遵循现代简约的美学理念,删繁就简,以简洁纯粹的空间抚平浮躁的心绪,以独具包容性的态度,将文化感内化融于空间当中,为来访者提供充满魅力的“书”式生活体验之旅。
项目名称:特房·芙蓉书院售楼处
项目业主:厦门特房嘉信房地产有限公司
建筑设计:厦门合立道工程设计集团股份有限公司
室内设计:徐绮设计事务所(SUJI DESIGN STUDIO)
设计团队:张江江、肖敏伟、张永正、 蓝天贵、王惠达
软装设计:翁凯艺、薛艳芳、郭婷婷、梁瑞琪
完工时间:2020年1月
徐绮设计事务所设计总监
徐绮有着长达16年的设计经验,先后担任厦门喜马拉雅设计装修公司设计总监、上海李玮珉建筑设计事务所专案经理,擅长现代简约的手法以纯粹的设计,演绎宁静、优雅的空间体验。
身为女性的柔美与优雅,让徐绮有着属于自己的设计风格——在理性的设计框架下,构建感性的空间语系。女性视角让徐绮更擅长营造空间的生活温度与居住时尚。
徐绮设计事务所(SUJI DESIGN STUDIO)是一家以提供高端设计服务的设计机构。公司致力于住宅地产和商业地产的产品研究 , 主要从事高端住宅、会所、售楼处、样板房、写字楼、精品酒店等的设计工作。

