感谢来自 HAD上海湾流建筑设计咨询有限公司 的改造项目案例分享:
湾流国际将项目地址选定于上海黄浦区四川中路63号一栋旧楼,要将此处打造成湾流国际旗下MARINA系列高端公寓项目,项目地理环境十分优越穿过马路就是风靡世界的外滩万国建筑群,坐拥外滩金融繁盛景象与陆家嘴的璀璨之景,生活在浓厚历史底蕴十里洋场的海派发祥地,见证下一个上海盛世,同时也即将成为未来世界的生活主场。
HAD设计院在项目修旧与翻新设计中进行取舍,海派文化,它趋时求新、多元包容、又善于扬弃、勇敢创新。在HAD设计团队的推敲和磨合下,湾流国际携手HAD设计院耗时半年完成了这座海派东方风格的高端公寓。
∇ 湾流国际[email protected]外滩院子地理位置

无论时代的车轮前行得多快,历史总能以其特有的方式邀请人们一次次回顾来路。
∇ 外滩旧照

外滩:洋气又怀旧,摩登又复古。不仅是旧上海时期的金融外贸中心,素有万国建筑博览群之称,隔江相对的浦东,更有上海标志性建筑东方明珠、金茂大厦、上海环球金融中心等,一座城市的发展及历史皆浓缩于此。

说到海派风格,很多人脑子里都没有一个明确的概念,但如果将海派风格与上海联系起来,相信很多人就会明白了,海派风格带着鲜明的时代印记,海纳百川,兼收并蓄,博百家之长是海派风格的最大特色,将西方住宅文化与本地居住理念融合于装饰设计的设计理念,使海派风格打上了地域与人文内涵的烙印。
∇ 海派风格

∇ 湾流国际[email protected]外滩院子改造前

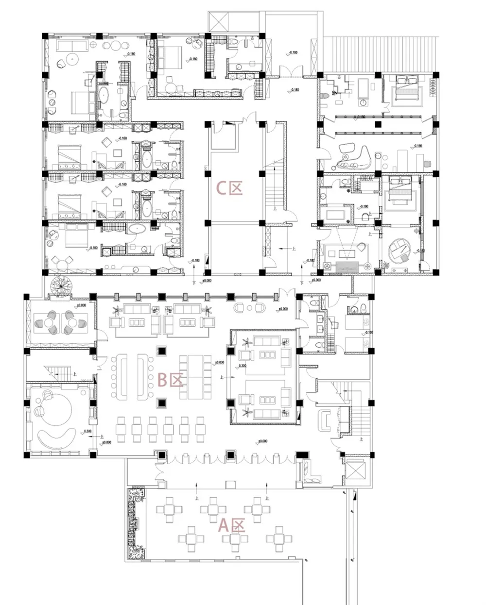
湾流国际[email protected]外滩院子首层平面整体由三个区域组成,三个区域之间层层递进,A区为入口门廊,B区为共享公共空间,C区为房间。
∇ 湾流国际[email protected]外滩院子首层平面布置图

走到A区入口门廊,浓浓的海派气息扑面而来,像极了老上海时期的洋房门廊,拱形的门廊造型搭配落地复古门窗,充满着仪式感,地面的花砖图案点缀更是丰富了整个空间,走入这个门;外面浮华的城市气氛会突然安静,让你瞬间穿越回复古的海派生活。

∇ 湾流国际[email protected]外滩院子地面拼花

∇ 湾流国际[email protected]外滩院子入口门廊

走进门廊之后便是B区的一个共享空间,深色的护墙板搭配古铜色线条点缀,让古朴稳重的空间多了一份摩登,地面采用的是人字拼的地砖,美观又耐久;你可以在这里喝上一杯咖啡,静静的享受这岁月的安好,也可以叫上三五好友,畅谈人生,远离这城市的喧闹,穿越至那段老时光。
∇ 湾流国际[email protected]外滩院子局部图

∇ 湾流国际[email protected]外滩院子综合休闲对比区

∇ 湾流国际[email protected]外滩院子综合休闲区

∇ 湾流国际[email protected]外滩院子水吧台

水吧台运用了水磨石与古铜金的材质冲撞,地面则采用了马赛克花砖,天花上车边的木作线条配搭金属线条,更是体现出了海派风格的精髓,使得空间显得沉稳又精致。
HAD设计师把这片土地所蕴藏的尊贵气质融入到空间的设计里,他让海派人文与与艺术相信相融,一切如时间般,在这里模糊了界限。
∇ 湾流国际[email protected]外滩院子局部细节

历史文化的韵味,悠远流长,怀旧,复古摩登的情怀,让人沉醉。在这样的空间里,仿佛坐上了一台时光机,逆转了时光,回归那座传奇摩登之城。
∇ 湾流国际[email protected]外滩院子综合休闲区

∇ 湾流国际[email protected]外滩院子局部

整个共享空间通过木饰面、艺术漆与古铜色不锈钢的浑然释放各自材质的细腻与温润,阳光透过大面玻璃窗洒进,同时空间也由窗户延伸到室外的连廊,模糊了界限,却开阔了视野。
皮质的沙发搭配实木的茶几,再添上些雕塑,形成了独特的美学力量,让客人可以在此享受不一样的休憩时光。
∇ 湾流国际[email protected]外滩院子

∇ 湾流国际[email protected]外滩院子局部局部

红酒雪茄吧气质凝练而彰显气度,以深色的木作和高级灰为主,家私上采用复古的皮质沙发,局部点缀灰绿色的单椅。能营造出内敛平和的商谈氛围,也有着内涵深邃的文化风貌。
也可以在这里,聆听留声机缓缓流淌周旋的歌声,或是看一场老电影,或是品味一杯红酒。
∇ 湾流国际[email protected]外滩院子红酒雪茄吧


书吧也是共享空间组成的一部分,徜徉书海之内,时间仿佛定格在日光中,在九宫格黑胡桃木的书架之间,HAD设计师安放了诸多座位,手捧心爱的书卷,随处落座,细细品读,岁月静好,而你可以在书籍里与自己的灵魂来一次深切的交谈。
一杯咖啡,一本好书,徘徊在书影之间,或细读,或静默,或冥想,仿佛变成了电影中的少年派,正开启一场茫茫书海中的奇幻漂流……
∇ 湾流国际[email protected]外滩院子书吧

穿过了一条室内采光走廊,便来到了C区。
∇ 湾流国际[email protected]外滩院子采光走廊改造前后

∇ 湾流国际[email protected]外滩院子走廊改造前后

走入公共走道,HAD设计师在配色上大面运用了粉绿色的墙面搭配暖白色肌理漆,加深了空间的递进与门洞的高长效果。粉绿+白色,会把我们带到海派的氛围中,综合掉深色地砖和厚重的木制门套的严肃感觉,点缀上彩绘玻璃的发光门牌灯,节奏变得轻松明快。
∇ 湾流国际[email protected]外滩院子房间

房间内通过木地板、柔和灯光、酒瓶绿和深色木饰面护墙板,以及黄铜装饰细节,营造出温馨惬意的居住空间以及怀旧的海派印象,我们希望通过这次翻新,让更多追求品味的各地租客感受上海的人文风景。
∇ 湾流国际[email protected]外滩院子局部细节

卫生间色彩和气味使怀旧气息更加浓重,酒瓶绿和古铜金,在老上海的电影里随处可见。你可以在这样有情调的卫生间中,享受一次泡泡浴,聆听百年海关钟声。
∇ 湾流国际[email protected]外滩院子卫生间局部细节


富有情调的屋顶花园,都能让你仿佛穿越时空,回到上世纪那个绚丽霓虹闪烁,江边光影流动,歌舞升平,如五线谱上跳跃音符的上海滩,一个优雅的绅士,推开神秘的大门。
∇ 湾流国际[email protected]外滩院子屋顶花园改造前

∇ 湾流国际[email protected]外滩院子屋顶花园改造后

∇ 湾流国际[email protected]外滩院子屋顶花园改造前后

生活中最美好的辰光是属于家的
家的模样,就是你对待生活的样子
有一个懂你的家,享受轻奢,宠爱自己
有一份情怀,为宜居而来
在环境优美的国际社区
延续海派文化的精髓,精致而独具品味
这样的生活,无疑让人心动

完整项目信息
项目名称:湾流国际MARINA高端公寓上海外滩院子项目
设计方:HAD上海湾流建筑设计咨询有限公司
联系邮箱:[email protected]
项目设计 & 完成年份:2019年1月
主创及设计团队:刘欣旎 黄思俊 孙青 罗倩芸 杜斌彦
项目地址:上海市黄浦区四川中路63号
建筑面积:3486M²
摄影版权:湾流国际
合作方:三盛亦合艺术设计顾问(北京)有限公司
客户:湾流国际

