我相信有情感的建筑 “建筑”的生命就是它的美 这对人类很重要 给使用者传达美和情感的就是建筑 ——路易斯.巴拉干
“东方、简约、均衡,建筑与艺术五大元素是梵池的核心设计理念。”设计师运用简约之笔勾勒东方美学艺术。 …
我们基于现代生活理念,结合东方文化思维,来平衡传统与现代的辩证关系。 …
在开放式空间设计中,客厅、餐厅既保持互通相连,又体现出每个空间的独立性。 …
灵活运用木色,给予空间温暖的触感,秩序井然又不失温度。
现代画搭配清水混凝土扩大了空间层次感。
创意的采光设计以及冷暖色调的结合使空间和谐立体,凸显简约与现代,使空间变得自然灵动。 …
“见微而知著”,设计师不断平衡宏观的格局与微观的细节,将现代风格与东方之美、将细微的感情与绝佳的设计 …
吊灯自顶楼垂至底层,光线衔接在阶梯之间,现代感深入浅出地融于艺术之中。 …
钢化玻璃嵌入实木踏板之中,光线穿透楼梯,房间明亮柔和。
绵密柔软的地毯和淡雅温润的灯光在不打破现代感的基础上,和谐镶嵌在简约之中,为空间赋予了柔和静谧的色彩 …
绿植点缀其间,凸显自然和谐的现代之美。
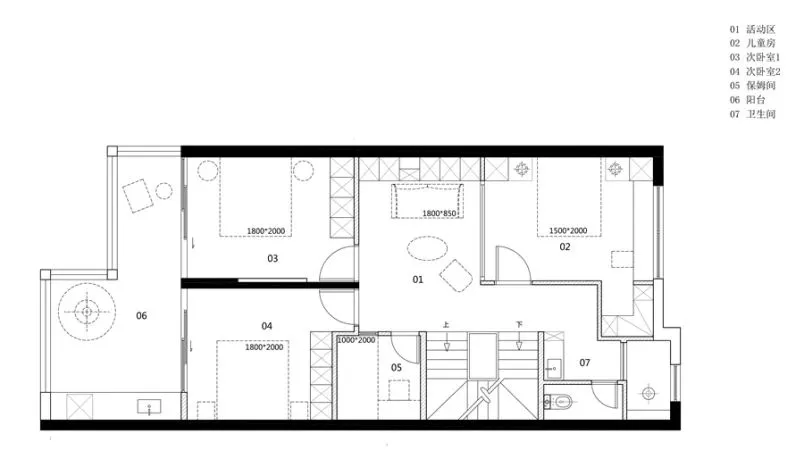
儿童房以灰白为主色调,搭配动感的地毯,风格简约而不失趣味。
室内门帘将睡眠区与活动区简易分隔,使空间格局井然有序。
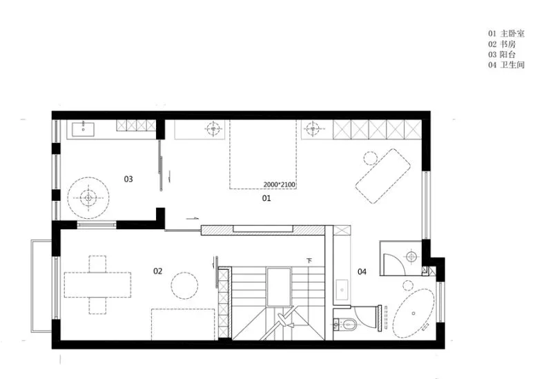
巨大的落地窗让人的视觉维度无限延伸。
移门将书房与卧室巧妙隔开,化繁为简的设计体现出开放空间的现代感与层次感。 …
阁楼依据黄金分割比完美分割,塑造深层空间立体感。
蚕丝艺术吊灯加以点缀,配合良好的采光,将现代与古典完美结合,狭小的空间蕴含着舒适简约的生活理念。 …

