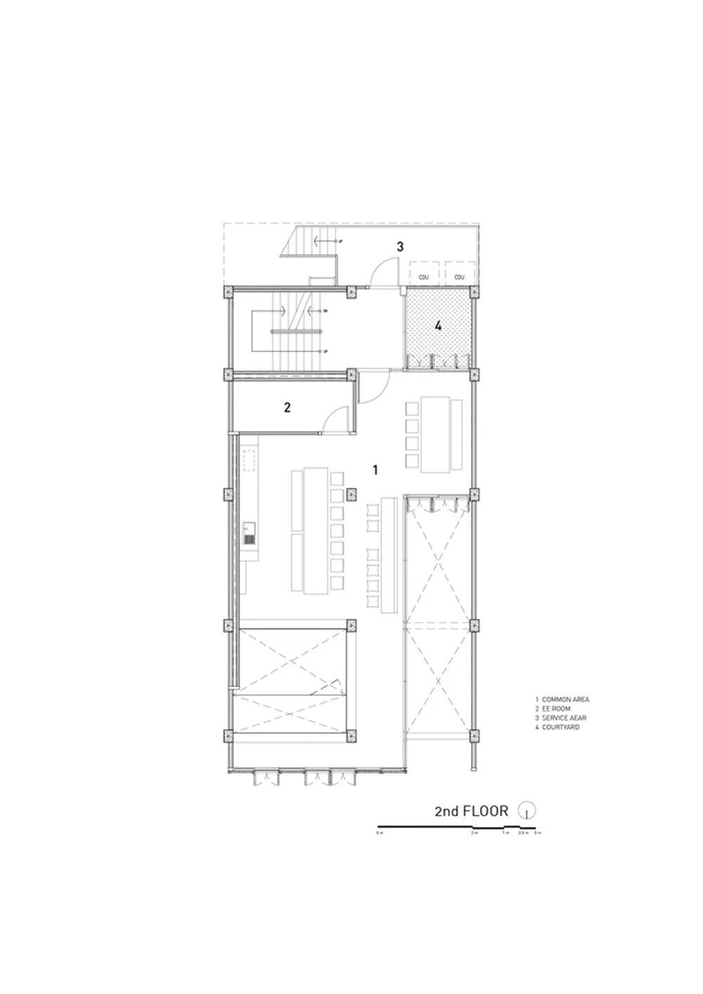
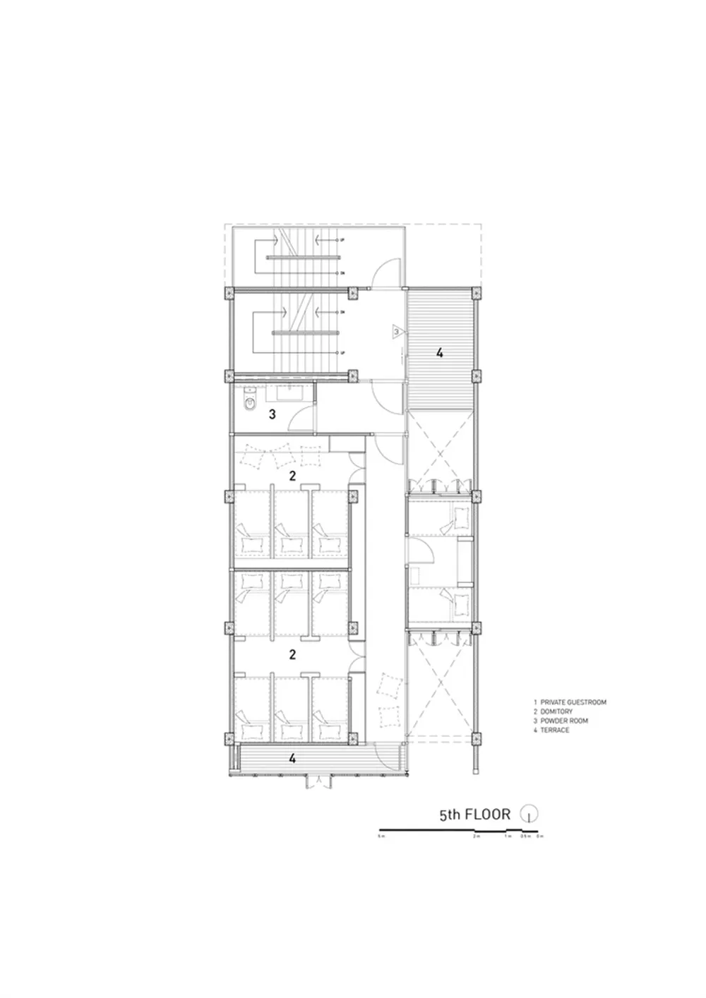
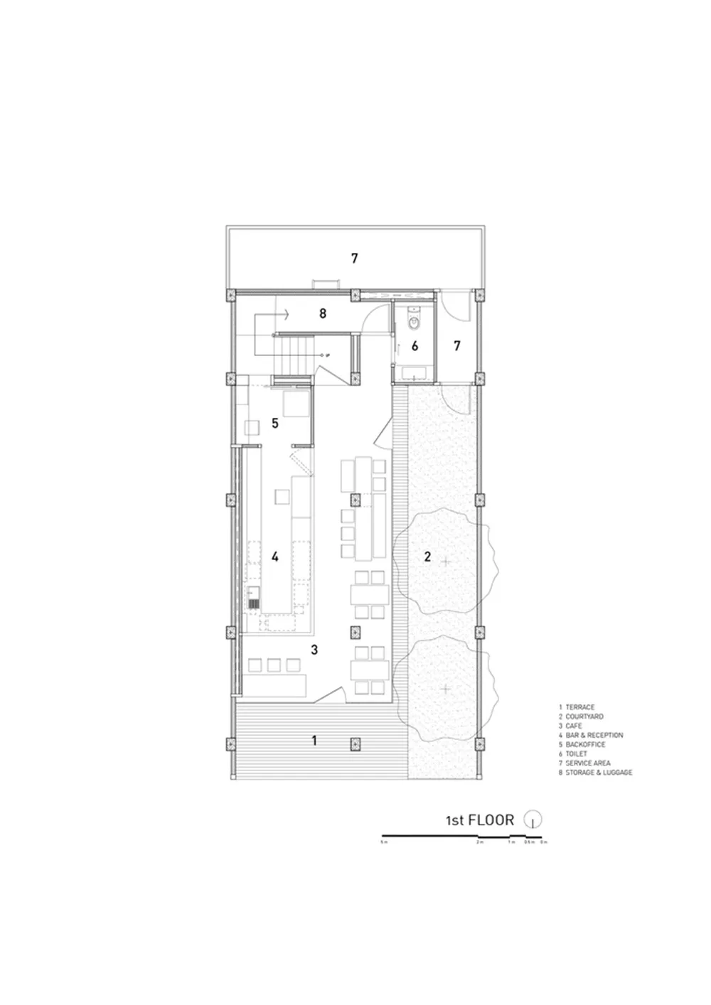
位于Phraeng Saphasat,曼谷最著名的历史区之一的Pa Prank项目是一处经过翻新的建筑,由两间商店改建为旅馆和咖啡馆,在该处附近有数个景点可供游客参观。为了方便起见,该旅馆的功能安排得到了充分的考虑。夹层是公用区域,从底层的咖啡馆,活动区和楼上的客房均可方便到达。公共区域的上方是浴室、更衣室和洗衣房区,三楼和四楼是客房区。最后,瑜伽和拳击课区位于屋顶层,服务于室内和室外活动,在此可以欣赏美丽的历史景色。
这个设计的概念来自于商店里普遍存在的光线不足的问题。店屋通常很长,它的两边被相邻的单元覆盖着,所以只有少量的光线从建筑的前面进入。因此,在每一层中,沿着建筑侧面的整个两米区域被移除,以便让光线进入该区域。此外,一楼的通风区域也被设置为庭院。特殊的私人客房被设计成漂浮在这个高的空体上,为他们提供两个方向的光线和通风。这些房间的顶部也用作上层房间的阳台。现有的结构和开裂的砖墙被有意地保留下来,向人们述说着这座建筑的历史。
此外,建筑师希望在历史环境中传达现代感的对比思想。为了实现这一目标,选择了巨大的幕墙作为围护建筑物深处功能区域的元素,以反映保存完好的墙壁。另一方面,游客可以清楚地看到古老的墙壁作为现代窗户的反射,而这面墙也成为了内部客人的风景。前立面的设计灵感来自传统的泰国店屋的窗户,但它以一种不同的方式进行诠释。钢铁和黑色等新材料现已成为主要特征,使建筑从周围的环境消失。而室内空间则主要以原有的传统窗式装饰为主,以白色为主,给人以舒适的感觉。
项目名称:PA PRANK 项目位置:泰国曼谷 项目类型:建筑改造/酒店空间 项目面积:725㎡ 完成时间:2018 设计公司:IDIN Architects 摄影:Ketsiree Wongwan
现代 酒店 简约 国外

