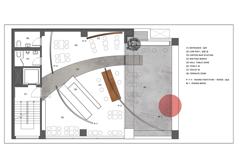
突然长大成人后,我们的日常生活可能就是一个城市里的旅行者寻找失去的童真的故事。我们仍然梦想着找到过去的记忆,当我们是纯洁和快乐的。“童话般的一天,寻月之旅”。日常生活的梦想像一个童话故事,因此我们首先绘制不同的情感和词语之间的空间,然后再思考艺术家Jiyoung Park的画作《路径》(path)。
旅程从4个山脊开始,并在其附近建立小径。 你可以在摇曳的织物中感受到风的影响,并在这里和那里隐藏的不同家具中找到新的风景。在通向山丘的路上,你将在露台上见到闪亮的月亮。当你回头的时候,你可以看到你旅途中经过的小山丘的景色。此外,当你爬到四楼时,你会看到有什么东西在风中摇摆。
当你在深夜与月牙形的月亮相遇时,你可以许一个愿,这将标志着你旅行的结束。深夜,月亮正处在最亮的时刻。月亮总是在同一个地方给我们安慰,无论是我们的快乐和悲伤的时刻。
项目名称:Cuore espsso café 项目位置:韩国水原 项目类型:餐饮空间/咖啡厅 完成时间:2019 项目面积:84m² 设计公司:Design Studio Maoom 摄影:Soulgraph Photography
现代 餐饮 简约 国外

