Courtesy of Alper Derinboğaz, Salon
alper derinboğaz,沙龙
PARKOPERA包括一个表演中心、一个演播室和一个可容纳400名观众的歌剧剧院。它还通过创建一个室外休息区来发展公园的项目。
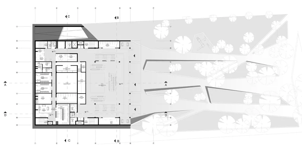
PARKOPERA includes a show center, a studio, and an opera theatre that can hold four hundred audience members. It also develops the park’s program through the creation of an outdoor lounge area.
Courtesy of Alper Derinboğaz, Salon
alper derinboğaz,沙龙
室内建筑有一个大的门厅,作为观众的平台,为中心的各种演出。在这个平台上有一层阁楼,里面有一家咖啡馆、书店和餐厅。
The interior building contains a large foyer that doubles as an audience platform for the various shows housed in the center. Attached to this platform is a mezzanine floor containing a café, bookstore, and restaurant.
Courtesy of Alper Derinboğaz, Salon
alper derinboğaz,沙龙
外部建筑代表一个零碎的体积,连接周围活动的邻居。
The exterior building repsents a fragmented volume that connects with the surrounding activity of the neighborhood.
Courtesy of Alper Derinboğaz, Salon
alper derinboğaz,沙龙
空间的组织方式允许建筑物的内部向周围的景观开放,同时将程序放置在内部。
The space is organized in such a way that allows for the interior of the building to open up to the surrounding landscape while simultaneously locating the program inside.
建筑师Alper Derinboğaz,Salon Design Team Alper Derinboğaz(组长),Hakan TünŞEngün,or un Girgin,Aysu Aysoa,Tarık Keskin,Sel UK Kiş,Şevki Topu,Eemı纳尔咨询教授,Oğuz Cem elik博士,Asst.Cem Altun教授,Asst.Dr.Nurgün Tamer Beyazit,Metin Deniz 8038.0平方米项目年
Architects Alper Derinboğaz, Salon Design Team Alper Derinboğaz (Team Leader), Hakan Tüzün Şengün, Orçun Girgin, Aysu Aysoy, Tarık Keskin, Selçuk Kişmir, Şevki Topçu, Ecem Çınar Consultation Prof. Dr. Oğuz Cem Çelik, Asst. Prof. Dr. Cem Altun, Asst. Prof. Dr. Nurgün Tamer Beyazit, Metin Deniz Area 8038.0 sqm Project Year 2016


现在这个浮躁的世界,能细心整理一些东西发上来的越来越少了。要么就是敷衍的图片,要么就是枯燥的文字。之后就是AI生成的预制菜类的打包便捷快餐了。感谢楼主的分享,让我能在大智能无人化来临之前,看到同类发出的项目。有幸与您互动,缘分。