Chipperfield说:“这座建筑嵌入了景观中,以广阔的草地和田野为特征,将其作为一个建筑主题进行整合。”
“The building is embedded in the landscape, characterized by expansive meadows and fields, which it integrates as an architectural theme,” says Chipperfield.
© David Chipperfield Architects
大卫·奇普菲尔德建筑师
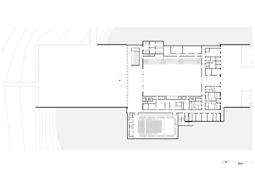
“两道挡土墙由灌木锤成,现为混凝土框架,在建筑物正门前有一个前厅。”这个广场是各种户外活动的论坛,比如露天音乐会.正门通向自然照明的门厅,从那里进入大型活动大厅。当大厅的较低层沉入地下时,上面的廊道水平,在所有的侧面都是玻璃的,在地势的最高点上升。活动厅为3500人提供空间,可用于各种活动,包括体育赛事。天花板的桁架钢结构跨越整个大厅的无柱结构。
“Two retaining walls made of bush-hammered, in-situ concrete frame a forecourt in front of the main entrance to the building. This square serves as a forum for diverse outdoor events, such as open-air concerts. The main entrance leads into the naturally lit foyer, from where the large event hall is accessed. While the lower level of the hall is sunk into the earth, the upper gallery level, which is glazed on all sides, rises above the highest point of the terrain. The event hall provides space for 3,500 people and can be used for a diverse range of events, including sporting events. The trussed steel construction of the ceiling spans column-free over the entire length of the hall.
© David Chipperfield Architects
大卫·奇普菲尔德建筑师
“较亲密的室内乐厅最多可容纳500人。从外面看,这个较小的大厅只能被视为景观的一种调节。就像活动厅的情况一样,室内乐厅也有一个有观众座位的画廊级别。”
“The more intimate chamber music hall seats up to 500 people. From the outside this smaller hall is only perceptible as a modulation of the landscape. As is the case for the event hall, the chamber music hall likewise features a gallery level with audience seating.”
© David Chipperfield Architects
大卫·奇普菲尔德建筑师
建筑师David Chipperfield建筑师设计David Chipperfield,Alexander Schwarz项目管理Harald Müller,Martin Reichert Project Archittors Annette Flohrschütz,Christian Helfrich,Thomas Sch pf联系建筑师卡夫·卡夫建筑师事务所客户Adolf Würth GmbH
Architects David Chipperfield Architects Design David Chipperfield, Alexander Schwarz Project Management Harald Müller, Martin Reichert Project Architects Annette Flohrschütz, Christian Helfrich, Thomas Schöpf Contact Architect Kraft + Kraft Architekten Client Adolf Würth GmbH & Co. KG Landscape Architects realgrün Landschaftsarchitekten Structural Engineer RPB Rückert GmbH Services engineer Facade Consultant Reba Fassadentechnik AG Project Management Drees & Sommer AG Area 10000.0 sqm Project Year 2017 Photographs David Chipperfield Architects

