Cortesía de Pablo Lobos Pedrals
Cortesía de Pablo Lobos Pedrals
 
 
架构师提供的文本描述。该项目的圣心拉斯卡布拉帕里什起源后,前教区的建筑物被严重破坏的地震,2010年2月27日。
Text description provided by the architects. The project for the Sacred Heart of Las Cabras Parrish originates after the buildings of the former parish were severely damaged by the earthquake of February 27, 2010.
Cortesía de Pablo Lobos Pedrals
Cortesía de Pablo Lobos Pedrals
 
 
该项目包括拆除位于该村中心的寺庙,然后再修建一座新寺庙和一些教区办公室。
The project consisted of demolishing what was left of the temple located in the heart of the village, and then carry out a new temple plus some parish offices.
Cortesía de Pablo Lobos Pedrals
Cortesía de Pablo Lobos Pedrals
 
 
为此,我们提出了以下问题:我们在哪里可以找到一个深刻的文化方面,可以作为设计一个重要的项目,如教堂的参考?
For this we asked the following question: Where can we find a profound aspect of culture, which can serve as reference for designing a significant project such as a Church?
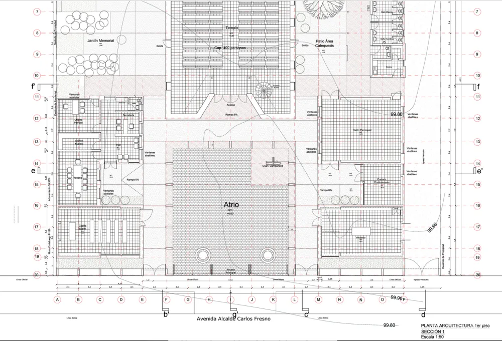
First Floor Plan, Section 2
一楼图则,第2节
 
 
在回答如此深层次的问题时,出现了一个最主观的想法:一张家庭相册中发现的四张照片,显示的是一个简单的庄园房子,它似乎回应了我们所有的担忧。这些都把我们的个人和情感故事和建筑遗产联系在一起,直到那时我们才直接接触到或感动了我们。
In response to such a deep question, the idea that arose came from the most subjective: four photographs found in a family album, showing a simple manor house, which seemed to respond to all of our concerns. These linked our personal and emotional story with an architectural legacy that had not touched or moved us directly until then.
Cortesía de Pablo Lobos Pedrals
Cortesía de Pablo Lobos Pedrals
 
 
我父亲拍摄的照片显示了一个巨大的瓷砖屋顶,由于它自身的重量而变形,从灌木丛中窥视。它们还展示了一条走廊,上面有一系列的规则柱子,中间还挂着显示墙壁厚度的木窗。它们还展示了土坯,它塑造了体积,最重要的是展示了一种传统形式,不是以其独特性而闻名,而是以延续某些最起码的原则的安全性而闻名。
The images taken by my father show a huge tiled roof, deformed by its own weight, peeking through the bushes. They also show a corridor with a sequence of regular columns and bet ween them wooden windows that display the thickness of the walls. They also show the crumbling stucco, the adobe that shapes the volume and show above all a form of tradition, not noted for its uniqueness but for the safety of perpetuating certain minimum principles.
General Isometric 1
一般等距1
 
 
从那时起,这些照片构成了这个项目的导航图,如果我们在错误的推测中太多,我们总是可以回到那里。
Since then, these photographs constitute the navigation chart of the project, a kind of place to which we could always return to if we strayed too much in false speculations.
Cortesía de Pablo Lobos Pedrals
Cortesía de Pablo Lobos Pedrals
 
 
这个项目制定了一些基本规则。一种对称的轴心,通过它可以访问项目,并通过它来组织项目。所有墙壁的统一高度,这将是慷慨的,但也尊重的规模,并符合期望的比例,从这个伟大的匿名庄园房子的过去。厚墙,全部60厘米,由混凝土,砖石,钢,泥浆和稻草的复合材料,使新技术与当地的智慧共存。
The project puts together some basic rules. An axis of symmetry, by which the project would be accessed and through which the program would be organized. A uniform height for all walls, which would be generous, but also which respected the scale of the neighborhood and met the desired proportion, taken from this great anonymous manor house of the past. Thick walls, all of them 60 cm, made from a composite material of concrete, masonry, steel, mud and straw, making new technologies coexist with the local wisdom.
Detail Section 3
详细资料第3节
 
 
最后一个大问题:如何用智利瓷砖建造?在2010年的项目中加入一系列特定时间的正式和象征性的内涵?为什么,如果我们在墙壁上采取或多或少的字面立场(用稻草填充它们,用泥浆和石灰覆盖它们),我们为什么不在屋顶上采取同样的立场呢?
Finally a great question: To build with Chilean tile? To add a series of formal and symbolic connotations of a certain time to a project of 2010? Why, if we took a more or less literal position on the walls (filling them with straw and cladding them with mud and lime), would we not take the same position on the roof?
Cortesía de Pablo Lobos Pedrals
Cortesía de Pablo Lobos Pedrals
 
 
该决定受到一系列条件的影响,如重量、颜色和材料经济性,以预涂的扁平金属板为材料,对我们的关切作出了最好的反应。
The decision was affected by a series conditions, such as weight, color and material economy, with the p-painted flat metal plate as the material that best responded to our concerns.
Details Isometric 3
细节等距3
 
 
 
 
 
 
 
 
 
 
 
 
 
 
 
 
 
 
 
 
 
 
 
 
 
 
 
 
 
 
 
 
 
 
 
 
 
 
 
 
 
 
 
 
 
 
 
 
 
 
 
 
 
 
 
 
 
 
 
 
 
 
 
 
 
 
 
 
 
 
 
 
 
 
 
 
Architects Carlos Arce Valdes, Pablo Lobos Pedrals
Location Las Cabras, O’Higgins Region, Chile
Category Chapel
Project Area 871.0 m2
Project Year 2015


