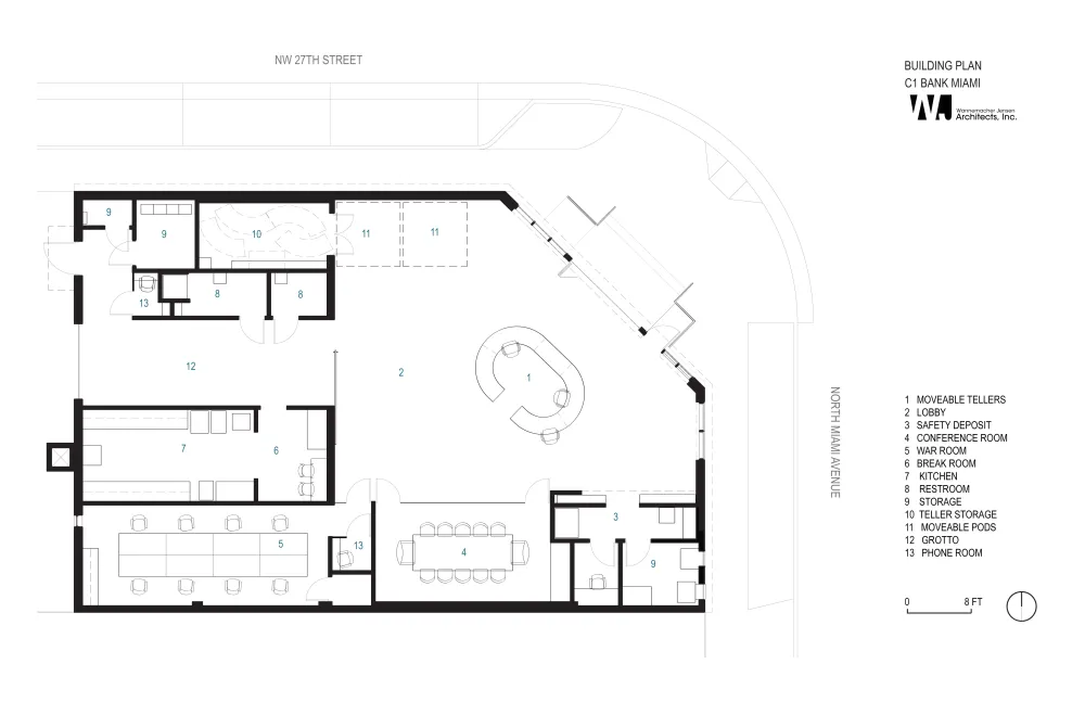
一家现代银行对其背景作出回应,并将其作为活动场所,这是C1银行在迈阿密迅速转变的温伍德艺术区的新分行的方向。
该设计使现有的仓库建筑物在白天和夜间的最终事件空间中起到银行的作用。
现有的大跨度混凝土屋顶结构使得当与新的12英尺双折玻璃系统和车库门相耦合时,允许人们在事件期间无缝地流入和离开建筑物。
每件家具,包括两个私人会议舱和一个可伸缩的书架,都可以被移到一边或收起来,以便为时装跑道或画廊展览腾出空间。一个完整的餐饮厨房配备不锈钢墙壁和所有必要的设备,以支持任何宴会。
总的来说,该银行是对温伍德的成长和更新的巨大补充-通过庆祝艺术和设计来促进社区意识和文化认同。
Firm Wannemacher Jensen Architects
Type Commercial › Bank Office Showroom Cultural › Gallery Educational › Other Industrial › Warehouse
YEAR 2014
SIZE 3000 sqft – 5000 sqft
BUDGET $1M – 5M
Photos scott fisher, Jeremy Scott Emerson, david
keywords:architecture, architecture news, interiors, interior design, portfolio, spec, brands, marketplace, products C1 Bank Headquarters
关键词:体系结构、体系结构新闻、内部设计、内部设计、产品组合、规格、品牌、市场、产品C1银行总部
一家现代银行响应它的背景,并双重作为一个活动空间,是C1银行在迈阿密的新分行的方向迅速转变的温伍德.

