
Greenwich半岛占地150英亩,沿泰晤士河绵延1.6英里,毗邻O2音乐厅,可发展16,000个住宅单位(其中4000套是政府房),2个新学校,以及350万平方尺的商业楼面。预计斥资84亿英镑,耗时20年,可以称得上是欧洲最大的开发项目。
该项目的开发商是香港Knight Dragon集团,所有者为郑家纯博士(郑氏家族)。该集团过去的开发项目包括在伦敦的Knights Bridge。
2012年6月19日,郑家纯通过私人投资公司Knight Dragon,斥资4.5亿英镑,折算约54.7亿港元,取得位于伦敦南部泰晤士河的Greenwich半岛项目60%权益。
2013年11月4日,Knight Dragon斥资1.86亿英镑(约23.2亿港元)向英国开发商Quintain Estates增持位于伦敦泰晤士河畔的Greenwich半岛项目40%权益。交易完成后,郑家纯将全资拥有有关项目。

Greenwich Peninsula共有七个社区,小编本篇介绍的是其中之一的Upper Riverside。此社区本五座大楼,汇集了世界顶尖的设计人才,包括SOM建筑事务所设计,Tom Dixon,State of Craft和美女设计师Sophie Ashby,创造出别具个性的活力社区。

Peninsula Place
Design District
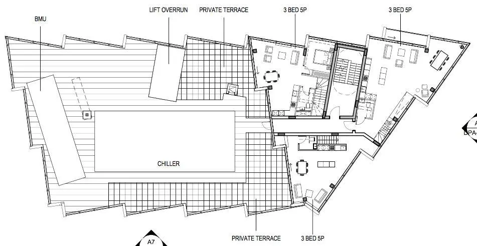
五座高层海滨住宅楼将从O2向阿联酋航空公司的高度增加。 5号楼将位于该地块以南102米处,而1号楼位于O2附近,将达到70米(21层)。高地符合民航局规定的限制,以确保附近城市机场的飞机活动安全。在Upper Riverside,建筑物北部不超过115米,南部不超过109米。在格Greenwich半岛的其他地方,未来开发的建筑高度预计将高达133.5。

Upper Riverside宏伟的玻璃和石材外墙由SOM建筑师创建,景观顾问为Gross Max Landscape Architects。建筑师将建筑物的角形描述为创造充满个性的个人生活空间。交错的外墙表达减少了对邻近建筑物的俯瞰,并最大化了对泰晤士河的景观。


Upper Riverside的每栋建筑都有一个微妙独特的玻璃和石材立面,当角度在外部变化时,会产生令人惊叹的半透明幻觉。阶梯式几何设计为公寓带来不同寻常的光线和双重景观。河流的方向将生活空间暴露在河流中,从面向海滨的温暖木质阳台延续了最大的日光。


开发商计划在开发的第一阶段建造1号楼和2号楼,提供464套新房,2015年3月建成并预计于2018年3月完工。第二阶段建设,其中543套房屋将建成建筑物3,4和5中提供的建筑物将于2016年6月开始,预计将耗时近四年,于2020年5月完工。最新的开发成本估算为第一期的1.64亿英镑和第二期的1.94亿英镑。


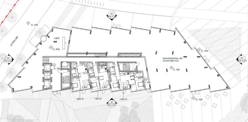
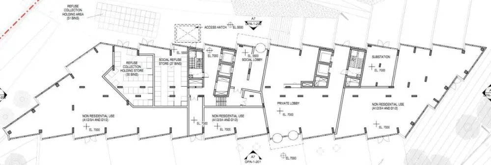
在五座建筑物中,只有1号楼(最靠近O2)和3号楼将包含经济适用房。 2号楼,4号楼和5号楼完全是私人使用权。在共有1,007套新公寓中,802将是私人(全价市场价)和205负担得起(20%)。


2015年4月,Tom Dixon设计的“限量版高概念设计公寓”系列首次推向市场,35个公寓均位于2号楼。在第一版中出售所有35间带家具的公寓后,开发商于2016年3月3日在前两座建筑中发布剩余的私人公寓。其余95间位于1号楼的私人公寓(总共130间)和2号楼的194间私人公寓。近期3号楼也已上市。





1号楼
State Of Craft
清洁线条光线和空间
CLEAN LINES LIGHT AND SPACE
伦敦设计事务所State Of Craft打造了1号楼的室内设计。设计灵感来自Greenwich半岛及其新的,创造性的居民国家平静背景与奢侈品材料。





现代工艺室内设计为现代生活提供了一种干净而深思熟虑的方法。平静的背景体现了超大,超厚异国情调的花岗岩和水磨石厨房台面等功能;全长梳妆台和淋浴板,由白色大理石和银色花岗岩制成。这些奢华的材料,讲述了坚固性和工艺,并辅以工程木地板。







2号楼
Tom Dixon
具有振动颜色的工业材料
INDUSTRIAL WITH VIBRANT COLOUR

Dixon的设计作为限量版位于No.2 Upper Riverside。在其独家版的住宅,工作室和顶层公寓中,Dixon做出了大胆的声明。他将铜和皮革等天然温暖材料与雕塑形式和大胆刺破的颜色相结合 – 想想明亮的绿色厨房珐琅和彩虹色浴室瓷砖。



在Dixon设计的整个过程中使用的强大和工业材料提供了强大的英国叙事,并参考了格林威治的历史。室内设计融合了现代的平衡,结合了天然和温暖的材料,如铜,皮革和木材,以及大胆的雕塑形式。







3号楼
Studio Ashby
一种考虑的生态主义
A CONSIDERED ECLECTICISM

Upper Riverside 3号楼坐落在海滨,享有广阔的河流和天际线景致。SOM确保每个空间都能充分利用这一独特的环境。在内部,Sophie Ashby凭借对美丽事物的热情创造了充满光线的内部装饰。






创意总监Sophie Ashby花了两年时间设计这些公寓。受独特河畔环境及丰富海洋遗产启发,特别将海事元素融入房屋设计及内部装潢,缔造出专属Upper Riverside的瑰丽气派。







Upper Riverside Club
Tom Dixon
一个放松的成员社区
A RELAXED MEMBER COMMUNITY

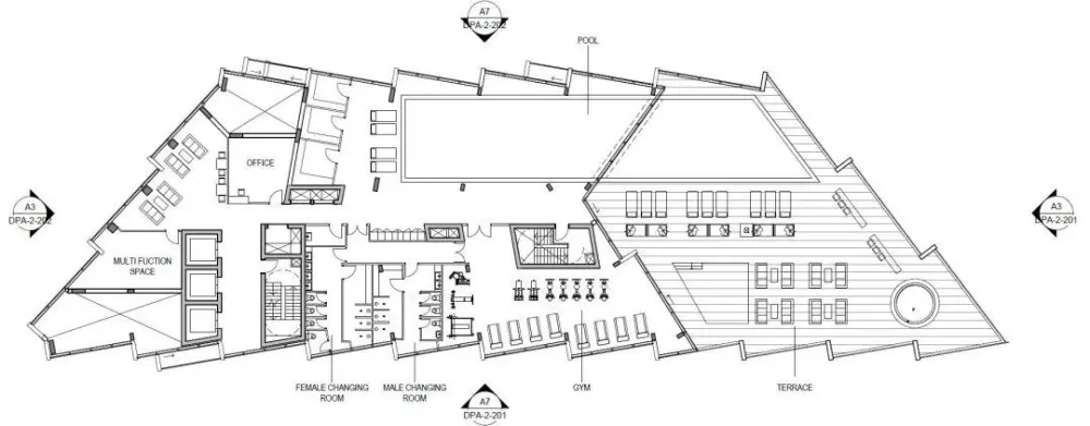
一系列住客专享的设施遍布5座大楼,当中包括可媲美酒店装饰的大堂、私人影院、游戏室,营造出一种轻松惬意的会员俱乐部气氛。俱乐部中的特色楼层Renew是由Tom Dixon在Upper Riverside设计的全新水疗体验空间。



俱乐部位于2号楼,展示了Tom Dixon在住宅环境中的室内设计首次亮相。它包括一个游泳池,蒸汽浴室,两个最先进的健身房和一个锻炼的露台,或坐下来放松,冥想和反思,同时欣赏伦敦天际线的远景。




“随着人们对健康的日益重视,我想创造一个能够增强居民日常生活方式的空间,并激励他们实现目标并感受到最佳状态,更新楼层是一个轻松的空间,居民可以与志同道合的人会面,在社区内创建一个健康社区。”-Tom Dixon













原文始发于微信公众号( 印际 ):Greenwich半岛 | Upper Riverside,欧洲最大开发项目&Tom Dixon首个住宅作品



过节没有坚持住。谢谢分享