本店位于深圳福田CBD综合体商圈One Avenue卓悦中心,秉承商场探索,创新,活力的精神, MOC DESIGN以“攀登”为寓指,以台阶形态为媒介,将追求进步、勇于攀登的态度融于设计进行延展,通过拆分重组的手法结合空间框架及功能进行设计,用简洁的体块、充满变化的组合贯穿于空间。
This new HEYTEA shop is located in One Avenue, Futian CBD, Shenzhen and it adheres to the spirit of its hosting mall – exploration, innovation and vitality. In the concept of “climbing”, MOC DESIGN OFFICE adopts the staircase as a metaphor and integrates the attitude of pursing progress and climbing with courage in the design. The space and function are carefully dismantled and rebuilt to psent simple units, but with changeable combinations.
▼以台阶形态为媒介来表达空间概念,using staircases as the media to introduce the space concept ©聂晓聪
设计构想来源于《纪念碑谷》中纵横交错的空间形态,以打散重组在空间中的台阶做为概念的表现形式,错落有致的体块结合台阶形态,自上而下延伸至整个空间。在材质及造型上,为缓解小空间固有的压迫感,使用白色基调和方正的体块拓展空间界面。
中岛区域的高桌组合装置做为空间的主角,摆列形式仿佛在尽然有序地诉说。实体和线框的台阶造型构成虚实结合的姿态,游走在天花纵横交错的台阶与整体空间体块之间,在空间整体纯白色调的渲染下,成为空间中的视觉焦点。台阶造型的分布,既可陈列品牌周边文化产品,也满足动线的划分,同时达到小憩饮茶的功能需求,人群的交流由此密切展开。
As the main character of the space, a unit of high tables is placed in an orderly manner. The solid stairs and frame stairs are intersected to constitute a stance of actuality and illusion. The ceiling staircases and overall blocks become the visual focus of the space under the rendering of the pure white tone. The staircases spad out as the display of merchandises as well as guiding the traffic flow. Meanwhile, it meets the functional needs of tea breaks and close communication among people.
▼从入口处看向中岛,实体和线框的台阶造型构成虚实结合的姿态,from the entrance to the central island, the solid stairs and frame stairs are intersected to constitute a stance of actuality and illusion ©聂晓聪
▼中岛组合细部,台阶造型的分布,既可陈列品牌周边文化产品,也满足动线的划分,details of the central island, the staircases spad out as the display of merchandises as well as guiding the traffic flow ©聂晓聪
设计师将空间的功能区域如自助台等隐藏于纵横台阶之间,并为品牌方特别设计定制了一款茶具用于向顾客展示其采自不同产地的茶叶。
▼自助台隐藏与纵横台阶之间,self-service desk embedded between staircases ©聂晓聪
从室外看向室内,虚实交错的体块造型铺满空间,中岛组合成阵列分布,形成了张弛有度的友好姿态。
From outside in, the blocks are piling up and taking shape and the central island becomes a complex functional body, both of which are meant to arouse a cordial feeling.
▼从室外看向室内,虚实交错的体块造型铺满空间,from outside in, the blocks are piling up and taking shape ©聂晓聪
▼空间形态概念演变,concept evolution of the space and form ©MOC DESIGN OFFICE
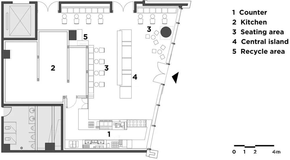
▼平面图,plan ©MOC DESIGN OFFICE
项目名称:喜茶深圳卓悦中心店
设计单位:MOC DESIGN OFFICE
主创设计师:吴岫微,梁宁森
设计团队:庄亦乘,胡侨
设计周期: 2018.11-2018.12
竣工时间:2019.12
项目地址:深圳市福田区卓悦中心1层L140
面积:178㎡
主要材料:仿水磨石瓷砖,KD木饰面板,白色烤漆不锈钢
客户:喜茶
摄影:聂晓聪

