雅物韵意,清气两相宜


浓郁的高雅感营造出精致的空间,明暗色调和谐共处,其中点缀的少许亮色是点睛之笔。环顾四周之时,软装的搭配相得益彰,电视背景墙水墨质玉石的辉煌感更使整个空间大放异彩,是吸睛之处。

将隔墙打断,转换为屏风,巧妙的把客厅与楼梯连接为一个整体,扩大视觉的延伸性,统一性的风格也因这盏屏风引向二层,逐步扩散到所有空间。

风格上提取中式文化的精髓,再注入现代生活的气息,通过空间的营造,传递一种低调奢华,简约贵气的美感。

顶部直射下的灯光增添了墙壁通透空灵的质感,水墨般的地面涤荡在脚下,一步一涟漪。恰到好处的挂画同空间整体色调相辉映,踏上高地的转折处也藏匿美景,如同人生的旅途。

天花九曲回环,充满极简的艺术感,柔和的线条向前延伸,原点重叠上终点,最终也只记得住那暖到心底的柔光。

雪花白的大理石与黑色拉丝不锈钢的搭配泾渭分明,白的雪白,黑的深邃,对比鲜明,散发出一种简约干练的现代气息。



有限的留白,无限的创意。在整个空间,人造光、自然光与白无缝融合,凝结成让人停驻的景,艺术与生活共生。
餐厅使用木色桌椅,质感十足。半透明窗纱渗出柔和光线,墙面造型虚实缥幻,折射出的剪影也为白墙添上一抹迷幻色彩。


通透的长条走廊,满铺海浪灰大理石,萦萦绕绕,缠缠绵绵。

空间彼此相融相合,次第展开,没有一处突兀。卧室一侧整面的落地窗,光线透过窗纱洒在地板、床铺,轻盈美好。是内心深处所渴望的理想栖居场所。

通往茶室的艺术长廊质感十足,满溢现代气息,墙身的挂画也延续了先前的风格,仿若置身艺术殿堂,踏足到哪里都伴随着雅气。


利用负一层打造地下茶室,布局优化,空间利率最大化。顶部开天窗,光线倾泻而下,置身其中,恍若白昼。

静谧幽清,悟禅解意,感受繁华都市内难觅的安宁和历久弥新的气韵,风格上恰如其分的融入现代气息,不突兀,不违和,仿佛天生就该同俱一体。



佛曰:“一方一净土,一念一清净。” 纷扰都市内体悟禅的意境,空间内外,尽避于喧嚣之外,以古为意,一盏清茶慰一方净土。

徘徊在古意与现代之间,静心沉气,品一壶清茶,立一盏红梅,随意中增添几分情趣,洒脱中再添万丈柔情。
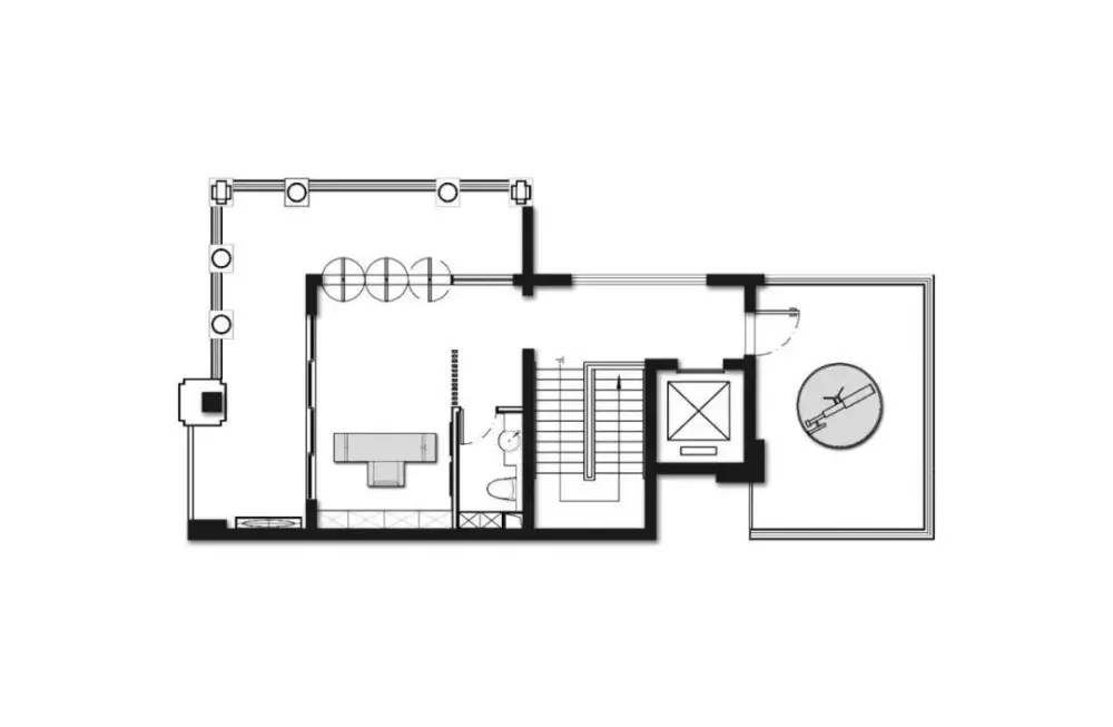
▼ 负一层平面图

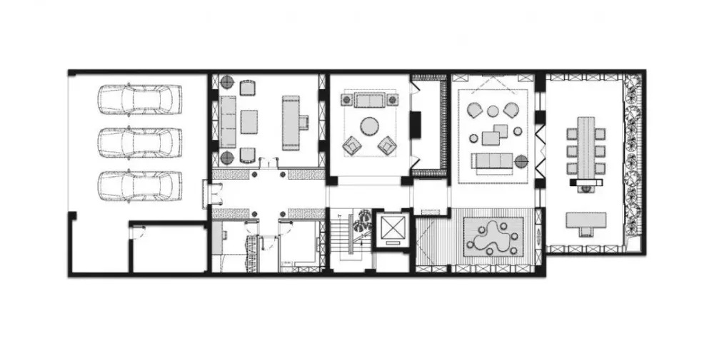
▼ 一层平面图

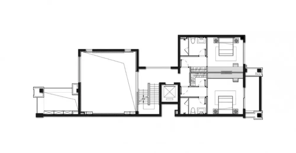
▼ 二层平面图

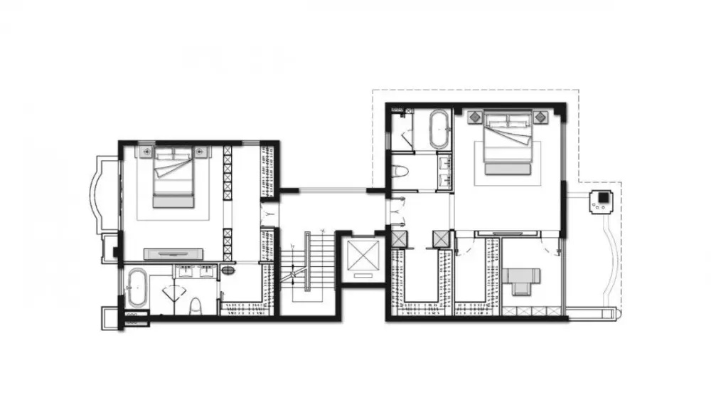
▼ 三层平面图

▼ 四层平面图


建设单位:佛山招商
项目名称:招商依云雍景湾1802户型别墅样板房
项目面积:800㎡
设计公司:聚舍联合设计
主创设计:陆闻、周雨飞
设计团队:李嘉杰、赖伟炜、钟明秀、李泓龙
项目摄影:THR三三、感官视觉



