己盒概念,与其说是工作室,不如称之为一种暂且落定的复合想象,一段自由意志的曲章,亦或是一个崭新的起点。
Geomebox concept, it is not so much a studio as a tentative compound imagination, a piece of free will, or a new starting point.
▼工作室入口走廊,the entrance corridor of the studio ©ZIMO摄影
在这个空间里,设计师利用内建筑的手法,力求解决办公场地内所需要的交通、构造及空间等问题。区域间的私密性与开放性,把人、物、空间通过设计组织成各种灵活的场景,将每个单元空间融合在一起,形成一个没有束缚的办公场所。整体空间以盒子作为主要框架,隔墙从盒子中穿插而出,与会议区的半围合矮墙,形成不同交汇的边界。
▼整体空间以盒子作为主要框架,the overall space uses the box as the main frame ©ZIMO摄影
粗胚混泥土作为顶面基调,结合清晰的材料和结构,元素之间看似孤立,却有着无限的张力。通过原始的粗犷与细腻的形态相互交叠,既对立而又不失协调。借用传统园林的透视、借景的手法,使得各个区域隔而不绝,身处其中可以感受到属于这个空间的独特的纵深感和层次感。
Coarse embryonic soil as the top tone, combined with clear materials and structure, the elements seem to be isolated, but have infinite tension. The original rough and delicate forms overlap with each other, which is opposite and coherent. Borrowing the perspective of traditional gardens and borrowing scenes makes each area endless, and you can feel the unique depth and layering of this space.
▼会议区,粗胚混泥土作为顶面基调,the meeting room, coarse embryonic soil as the top tone ©ZIMO摄影
空间的中心点设计了镜面不锈钢装置,在不同角度反射不一样的空间,将每个单元空间更好的融合在一起。盒子上方,利用剩余高度设置了休息区,巧妙地为无用之地创造了功能。办公桌与隔墙相互咬合,形成两个独立功能区域,机箱内嵌在桌面之内,保证了台面的整洁。想象需要包容,恰如造境需要空间,唯有思维无拘,即便身处果壳之中,仍有无限之可能。
▼空间的中心点设计了镜面不锈钢的椭圆形装置,the center point of the space is designed with a mirror elliptic stainless steel device ©ZIMO摄影
▼空间墙面和地面细节,details of the wall surface and floor ©ZIMO摄影
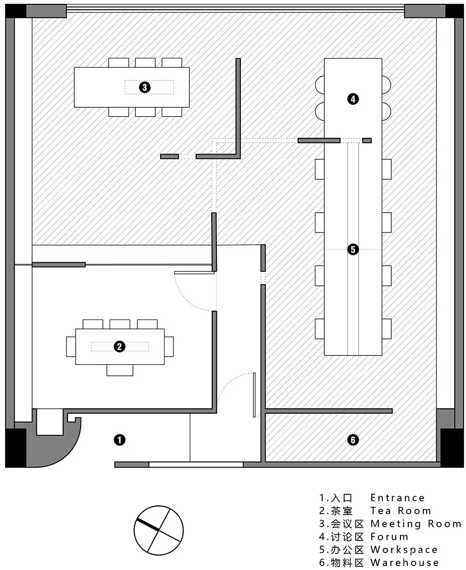
▼平面图,floor plan ©己盒概念
项目名称:果壳中的宇宙
设计方:己盒概念
方案设计:2019年5月份
竣工时间:2019年8月份
主创及设计团队:己盒概念设计团队
项目地址:福建省福州市仓山区鸿博新时代
建筑面积:135m²
摄影版权:ZIMO摄影
品牌:烤漆钢板/烤漆板/实木皮/艺术涂料/硅酸钙板/自流平地坪漆( 得高地板/莱客照明/云米智能)

