感谢来自 鑫龙郡装饰工程有限公司 的民宿项目案例分享:
项目位于厦门市同安区东北部,地处竹坝南洋风情景示范景区内。在设计之初,即定调为南洋风情、国贸文旅民宿示范单位,作为参观接待及后期规划样板。
The project is located in the northeast of Tong’an District, Xiamen City, in the Nanyang scenery demonstration scenic spot of Zhuba. At the beginning of the design, it was set as a demonstration of Nanyang style, Home stay demonstration of ITG real estaet group, as a model for visiting reception and later planning.


原建筑为自建民宅返租,结构及外观都不能进行调整,因此在室内的设计上,尽可能的利用室内空间,以功能引导平面。同时,要在紧迫的设计及施工时间内,尽量平衡设计效果及施工难度。
The building is a rural self built house, so the structure and appearance cannot be adjusted. the indoor space should be used as much as possible to guide the plane by function. At the same time, in the urgent design and construction time, try to balance the design effect and construction difficulty.


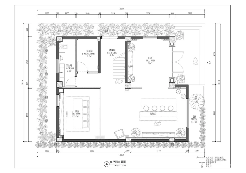
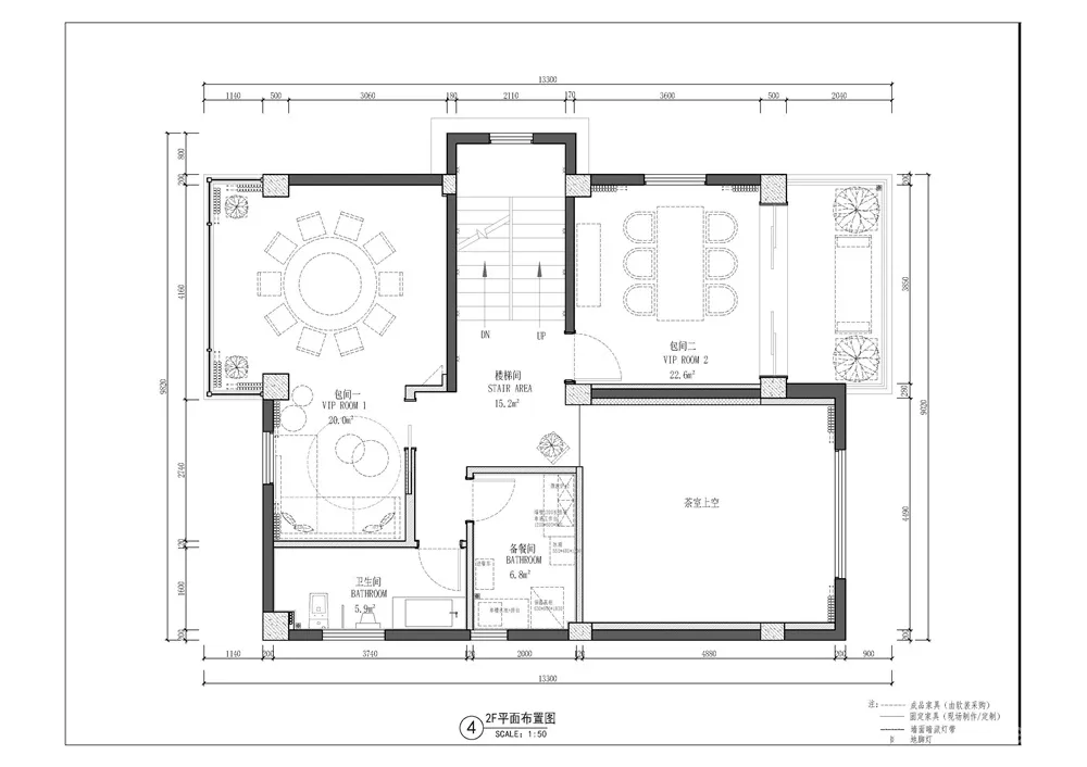
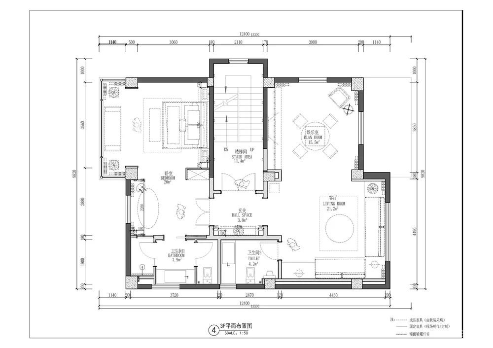
一层主要功能为接待茶室,其中一个茶室为了满足私密需求,采用夹藤玻璃的折叠门做为区隔。二层为餐厅,且在挑空位置增加了墙面开口,原本封闭的二楼与一楼空间产生了对话空间。三层为民宿示范套房,配置卧室及客厅,可以满足私人接待及小型会议功能。
The first floor is reception teahouse. In order to meet the private needs, one teahouse adopts the folding door with rattan glass as the partition. The second floor is the dining room, and the wall opening is added in the empty position. The original closed second floor and the first floor space have a dialogue space. The third floor is a residential demonstration suite, equipped with bedroom and living room, which can meet the functions of private reception and small meetings.


客人在进入空间后,便能沉浸于营造的南洋风情之中,隔绝外部的繁杂。墙面米黄色肌理与地面花砖拼块;竹编灯具与藤艺家具;随着空间的不断探索,能感受不一样的体验。
After entering the space, guests can immerse the Nanyang style and isolate the external complexity. Beige texture on the wall and tile on the ground; bamboo lamps and rattan furniture; with the continuous exploration of space, you can experience different experiences.





∇ 平面图



主要项目信息
项目名称:厦门竹坝256民宿接待房屋
项目地点:厦门市同安区竹坝新村
项目面积:约292.3平方米
开业时间:2019年8月
设计公司:鑫龙郡装饰工程有限公司
主创团队:肖光辉(主创设计师)、柯新琴、杨丽鹏、许宝洪、纪锦洋
项目摄影:周志春
联系邮箱:303891831@qq.com

