小岛邻居,建于2017年-2018年,位于武汉市远郊某水库。项目地点位于该水库北侧一处逶迤伸入水中的半岛上,这里人迹罕至,景观开阔,野趣盎然。该项目联合法国知名智慧城市研究机构“70亿规划师/7 Billion Urbanists”(链接见附录)和儿童建筑教育NGO“世界儿童运动/ WOCC” ,致力于对社区化自然生活的探索。
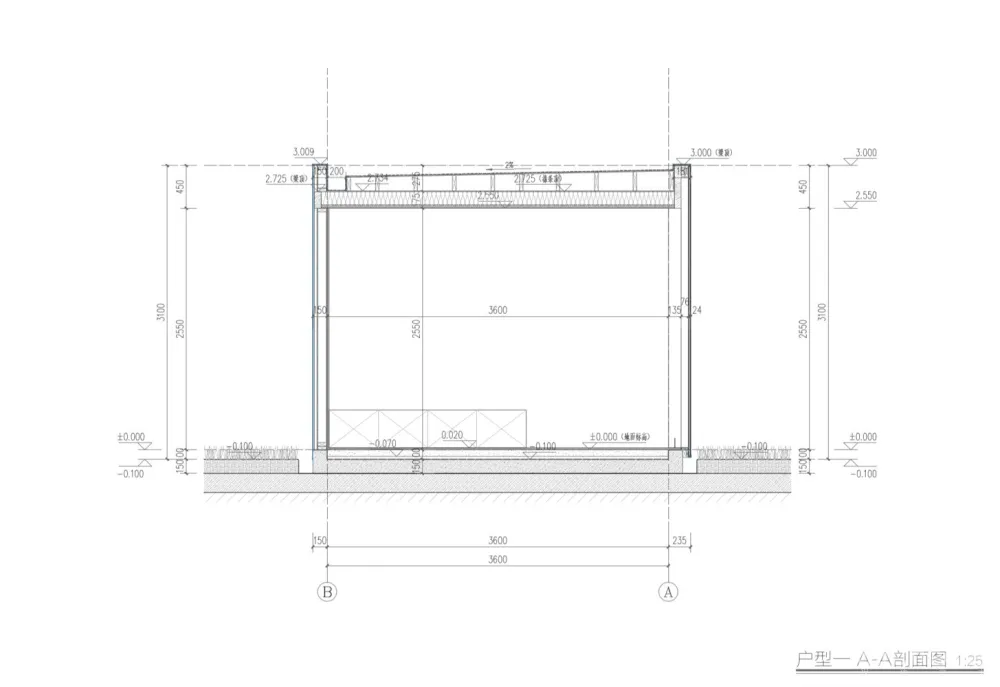
项目初衷即是以一种最低限度的建筑存在融入旷野环境,人居住其中得以最近距离、最大限度地忘我感知自然。因此,每栋小屋设计均选择在最佳景观面使用大玻璃全景幕墙,最大化景观面视野,弱化建筑体感,使建筑化身为一具“自然的取景器”。
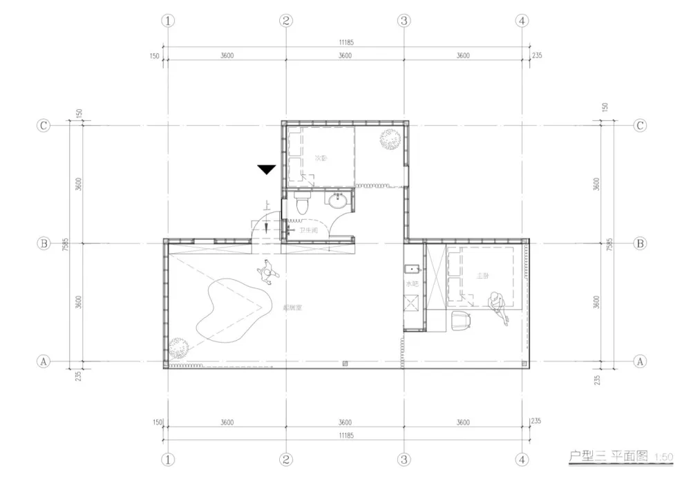
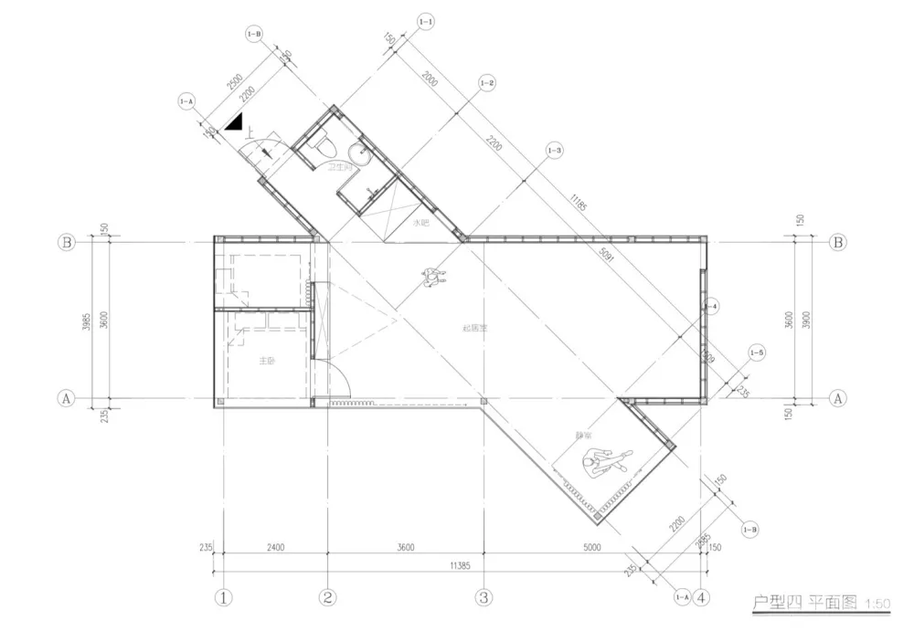
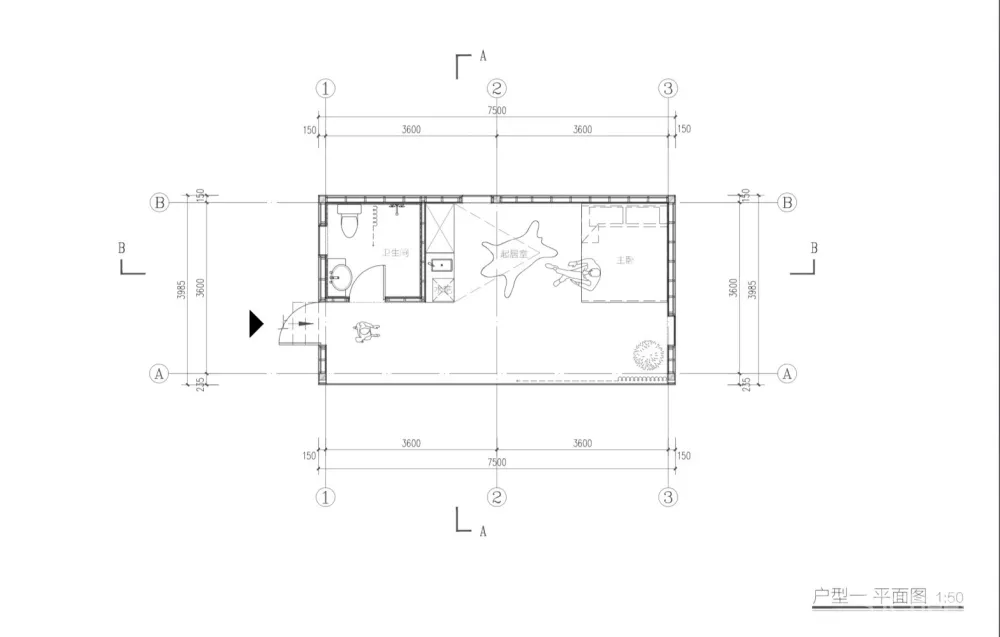
不同于常规建筑的产生过程,小岛邻居首先通过互联网发布了项目地点的自然状况和发起人的“主动分享”社区理想,招募“岛主”,根据意向人选提出的小岛愿景筛选后,确定四位志趣相投的“岛主”参与项目共建。实际的设计过程正是针对四位岛主的设想展开的,比如四栋建筑面积分别为30、44、58、59平方米,来自于将岛主们的不同需求模数化计算适配。
建筑外立面设计取用镜面材料,利用镜面反射效应将周围环境吸纳其中,形成多重镜照的丰富自然肌理,同时,也达到了使建筑体量“消失”的隐匿效果,消解建筑与环境之间的对立冲突,让建筑融为自然的一部分。设计的初衷不在于盖一栋房子,而是要让小岛的原始风貌得到完整的保留和极致的表达。
建筑室内饰面采用原生木质材料,在克制而充分的尺度内,给予居住者沉浸内省的空间体验与亲近自然的舒适惬意。
项目地处珍贵的原始环境,加之交通可达性有限,因此在设计阶段就确定了整体木结构方案,建筑主体在工厂预制完成,经过搭建测试、力学测试调整,再运输到项目地,采用在地拼装的方式轻便搭建,保证了对自然环境的最低限干扰。
尽管没有对项目地做出任何不必要的扰动,但小岛邻居项目仍然超出了单一的建筑设计范畴,而是一次综合景观、社区、建筑、室内的一体化在地尝试,探索了人们在自然中亲切友好生活的人居理想。
建筑师 先进建筑实验室, 个个世界
地址 Wuhan, 中国
类别 独立住宅
设计团队 穆威、张迎春、刘晗、蔡可昆、谭梦、王乃豪、罗俊贤、何闻
建筑面积 191.0 平方米
项目年份 2018
摄影师 存在建筑

