Foodhallen美食广场最早在2014年阿姆斯特丹成立开业 ,经常是在荷兰首都人们的美食餐饮和酒吧休闲的空间首选之地。但它不是唯一一个你能找到受欢迎的食品市场、酒吧和活动场所的城市,在鹿特丹和现在的海牙都设立了这美食广场。海牙的美食广场是由Studio Modijefsky设计的占地1,256平方米的场地,通过其深思熟虑的、以社会服务为中心的设计,延续了第一个美食广场的吸引力。
Founded in Amsterdam in 2014, food-and-drink destination Foodhallen regularly tops recommendation lists for the Dutch capital. But it’s not the only city you can find the popular food market, bar and event space in, with a post in Rotterdam and now The Hague. The latter, a 1,256-sq-m venue devised by Studio Modijefsky, carries on the appeal of the first locations by way of its thoughtful, social-focused design.




每个Foodhallen美食广场都首先要为(饥饿的)公众服务的场所。 因此,在构思该项目的同时,Studio Modijefsky的女性领导的团队开始研究城市景观中的典型实例:广场。考虑到欧洲古老的城镇和城市空间的社会功能,设计师是希望将海牙的Foodhallen美食广场改造成一个繁华的城市缩影。
Each Foodhallen is meant to serve first and foremostly as a welcoming place for the (hungry) public. So, while conceptualizing the project, the female-led team at Studio Modijefsky took to studying archetypal examples within urban landscapes: piazzas. Crediting the social function of the age-old town and city spaces in Europe, the designers set their target on building Foodhallen The Hague as a bustling microcosm of its own.




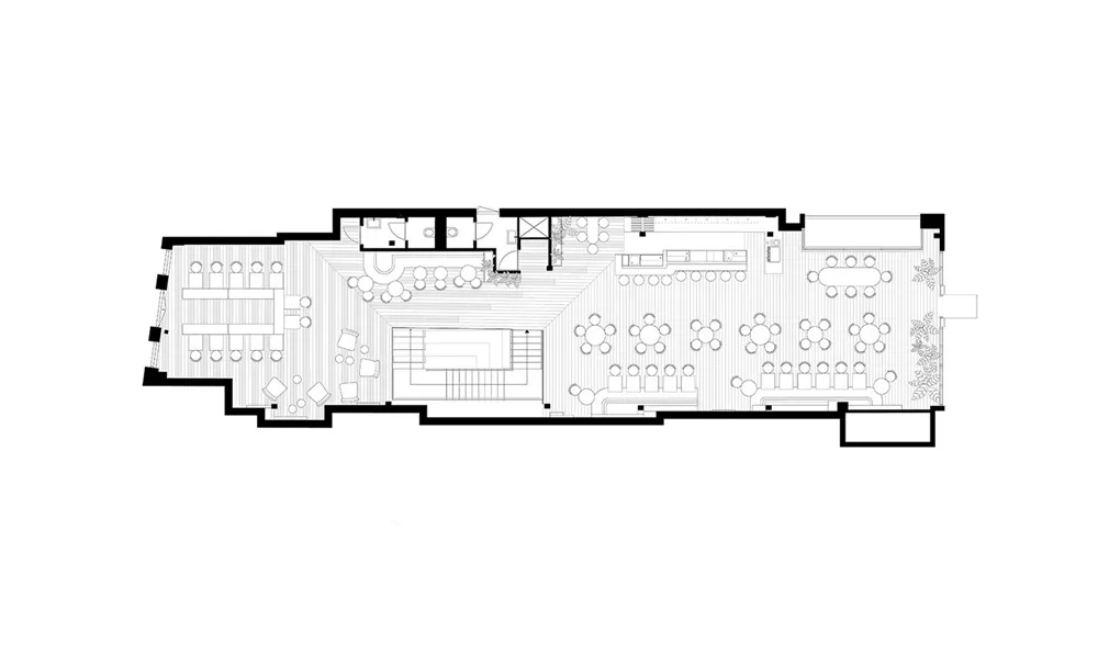
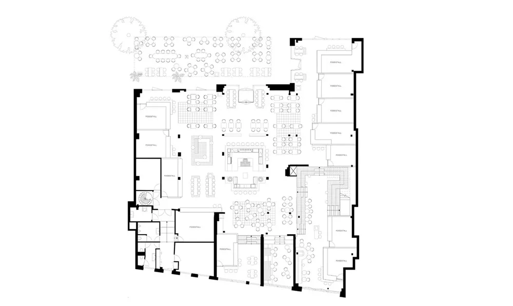
该广场横跨三个相邻的建筑,以前是一个由圆柱,横梁和楼梯构成的混乱的空间结构,形成了一个黑暗和低矮的室内空间。但是现在,这个空间已经通过图形化的细节,明亮的材料装饰风格和七个典型的城市广场元素而发生了变化:地标、醒目的人行道、喷泉、商人摊位、游乐场、楼梯和雕像小品。作为概念性的建筑组件,这些元素是设计的组成部分,因为它们是用来鼓励游客之间的交互而设计时不可或缺的。
Spread across three adjoining buildings, the site was formerly a chaotic grid of columns, beams and staircases, which made for a dark and low interior. But the space now has been transformed by graphic details, a bright material palette and seven defining elements typically found in urban squares: landmarks, striking pavement, fountains, merchant stalls, playgrounds, stairs and statues. Used as conceptual architectural components, these elements are integral to the design as they’re built to encourage interaction between visitors.
















∇ 平面图


主要项目信息
项目名称:Foodhallen美食广场
项目位置:荷兰海牙
项目面积:1,256平方米
项目类型:餐饮空间/改造设计
完成时间:2019
设计公司:Studio Modijefsky
摄影:MAARTEN WILLEMSTEIN


谢谢分享