在静谧和光明下,空间有了表情,也拥有了时间的意义。每一处空间都是一页空白的纸张,是静谧和光明让空间瞬间充满生命力与无限的可能性。
All spaces are built as blank canvas, the moment silence and light shed, the infinite possibilities of life create. It’s the expssion of space reveals the meaning of time.
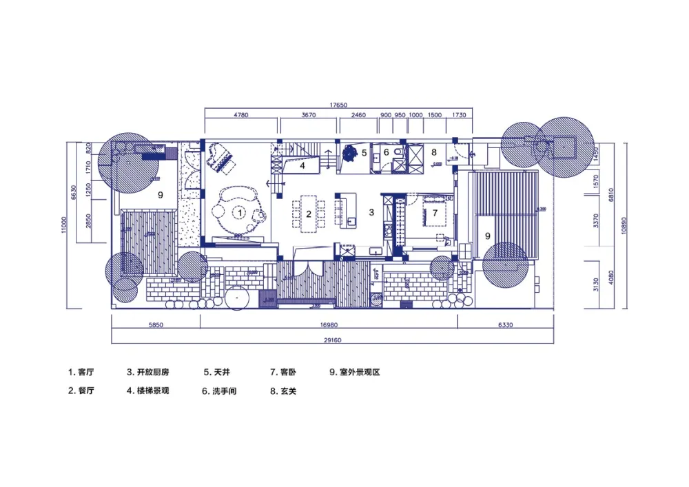
此项目为住宅改造项目,位于上海南翔一个联排别墅小区。建筑空间为17米*6.6米的长方形空间形态。北面为小区住宅入口,南面临城市的河流。
The housing renovation project locates at Nanxiang, Shanghai. The building space is a rectangular space of 17 meters *6.6 meters. A river flows at the south of the house.
改建后的空间是一个可以满足三代人共同居住的理想生活空间,我们的客户是一对从事产品设计工作和媒体工作的夫妻,需要有独立的音乐室和手工制作室。考虑到家里的2个儿童年纪还很小,需要不同层次的功能需求。而客户的父母则需要相对安静的居住空间和便利的功能形态。
The project supplies living space for a six members’ family. The host and hostess are engaged in design and media, they need independent studios respectively. Their parents favor quiet living space with convenience and relative spaces are designed particularly for their children.
室内整体颜色客户希望以洁净的白色调为主色调。我们通过改善楼梯和增大天井来加强空间之间的趣味性和多样层次性。同时,家庭的公共活动区域增大通透性,保障家庭成员独立空间范围的衔接。
The overall color of the room appears as white tone. With the stairs and increased size of the patio, we enhance the layers between spaces to create diversity and enjoyment. Transparencies are introduced into the family’s public activity area, increasing the convergence of family members’ independent spatial scope.
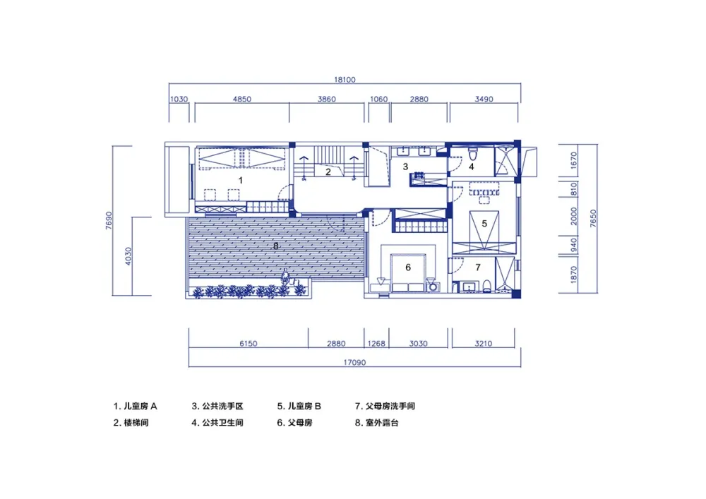
在地下室与一层、一层与原有小型天井之间,我们消减实体楼板,增加竖向天井采光。最大化的保证室内采光和空气流通。
By diminishing the floor slabs we extend the patios into basement for better solar access and ventilation. Fatherly the change of four seasons can be experienced as well.
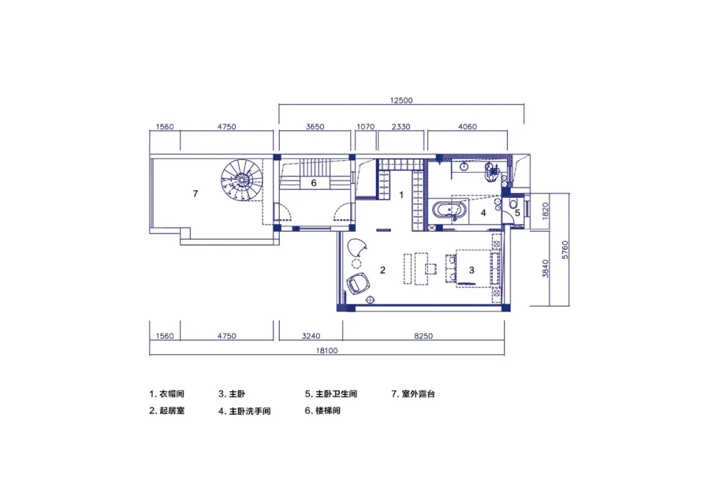
室内外的先接部分做到了延伸室内的平台,周围的围挡采用木质格栅和磨砂玻璃的组合,过滤周围建筑的视线分隔,保证周边的视线互不干扰。室内外我们增加落地玻璃窗带来充沛光线,将庭院里美好的四季变化轻松地引入室内。达到室内外各个公共区域之间的界限消隐。
Interior floor reaches out as exterior platform; French windows are set to diminish the boundaries, blending light and landscape into interior.
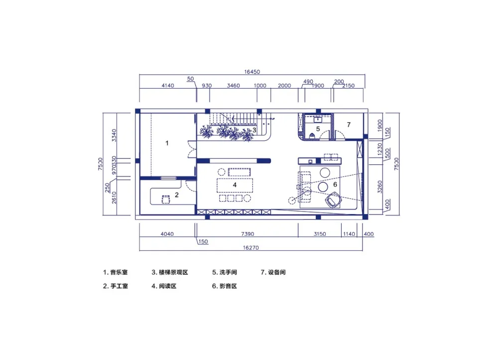
在二层与三层,考虑到家庭成员之间的不同需求,我们增加了公共区域的趣味性。
综合考虑到老人和儿童的安全性,二层的走道区域的墙体做了倒弧处理,墙面嵌入感应灯保证夜间的安全。设置开敞的中岛台,让二层的生活也变得很便利。
The second floor integrates safety aspects of the elderly and children like the chamfer of the wall edges, the central island, and the induction of night lights.
在住宅的空间里,让家人生活与活动之间的留有呼吸感一直是我们思考的重点。
如何在形影不离的空间里,不让相互亲密的家人忽略掉距离的重要,就如同静谧和光明。他们一直是相互依存,相互寄托。在反复的转换中感受的细微变化和成长。我们希望空间记录家人的生活,感受光影的变化和自然四季的变迁力量。在充满一呼一吸的空间节奏中,让人们可以关注到那些不可度量的静谧和光明的感动。在静谧和光明,时间赋予了家庭成员之间情感的意义。
In the residential space, the sense of respiration among family members has always been the focus of our thinking. In the inseparable space, retain the importance of distance between individuals.Family members have always been interdependent and mutual sustenance. Space should be able to record every moments of the family. In the breathing space, people can sense the immeasurable quietness and bright, in which time shines emotional meaning to family members. Everyday life in space is full of vitality and infinite story.
▼体块分析
▼平面图
项目地址:上海市,南翔
Location: Nanxiang, Shanghai
项目类型:住宅设计
Program: Housing renovation
设计内容:室内+建筑
Scope: Architecture and interior
规模面积:400平米,景观200平米
Area: 400㎡
Courtyard: 200㎡
设计时间:2016.10—2016..12
Design phase: 2016.10- 2016.12
施工时间:2017.03—2017.11
Constructing phase: 2017.03-2017.11
设计单位:序态设计研究室(上海)
Office: XuTai Design And Research Studio
设计团队:杨添堡,盛哲,Diamond
Architects: Tianbao Yang,Shengzhe,Diamond
景观设计单位:梧枝景观设计(上海)
Landscape: WOOZ DESIGN
土建景观及室内施工: 上海睦博装饰设计工程有限公司
Contractor: Shanghai MuBo Design Engineering Co. LTD.
摄影师: 余未旻
Photographer: Biguu
联系方式:info@xutaidesign.com
负责人姓名:杨添堡
微信号:186 7224 2538
联系电话:186 7224 2538

