衍生,代表着演变而产生,从母体物质得到的新物质。这是一个品牌的未来,而不是一个结果。‘妆衣时尚’位于市区商业中心区域,最繁华的商业街区。1999年创办,是一家专注于时尚女装零售20年的品牌集合店。TRONGYEE,设计师品牌集合店是妆衣时尚品牌的衍生。业主希望重新激活自己的品牌调性。给这个城市商业带来新的力量。
AD ARCH 艾克建筑,用装置艺术的手法/艺术性/当代审美来实践一个90平方米的商业空间。店面形象是商业设计中一个重要的组成部分,它是直接传达给社会最暴力元素,设计师用逆转的思维,通过干净且照度较低的处理手法,将视觉中心直接引入内部的空间环境,采用超白玻璃,让店面处于暴露的状态。打破整个商业街浮躁的气息。
▼店铺外观,采用超白玻璃,让店面处于暴露的状态,
exterior view of the store, the ultra-clear glass exposes the interior ©欧阳云
在扁平化的时代,室内空间我们也采用了扁平化的设计理念,空间六面体用同一种材料来阐述,降低空间的立体感。红色楼梯充当空间的垂直流线,同时成为整个空间的视觉焦点。绚丽与清淡并置,激烈彰显物象张力,在周遭嘈杂中营造一方宁静与热烈亲密相偎的场所。
▼室内局部,红色楼梯充当空间的垂直流线,
partial interior view, the red staircases functions as a vertical circulation route ©欧阳云
几何形于弧线的组织,构成了空间丰富的表情,于视觉错像。整体空间用守规矩的方体进行阐述,顶面以及更衣间的弧形门洞打破了空间的平静,并且给空间带来了女性调皮的性格。夹层只有2.2米的高度,空间采用波纹镜面质感,解决空间压抑的条件,模糊了空间的界限。空间整体呈现中性的灰色系水泥质感,红色成为了空间的唯一色彩,形成强烈的视觉反差。留下强烈的品牌记忆。
▼红色的楼梯与灰色的空间形成强烈的视觉反差,
the overall space is dominated by a gray hue rendered by cement, and highlighted by red ©欧阳云
▼上层展示区,the upper display area ©欧阳云
在探索未来城市商业空间可持续的价值过程中,设计从商业价值思考到实践,并最终构建了衍生品牌内核的商业空间。
The project is an exploration of sustainable value for future urban commercial spaces. AD ARCHITECTURE conceived the design solution by taking commercial value as the starting point, and eventually created a design that is derived from the core of the brand TRONGYEE.
▼室内空间效果图,interior view ©艾克建筑设计
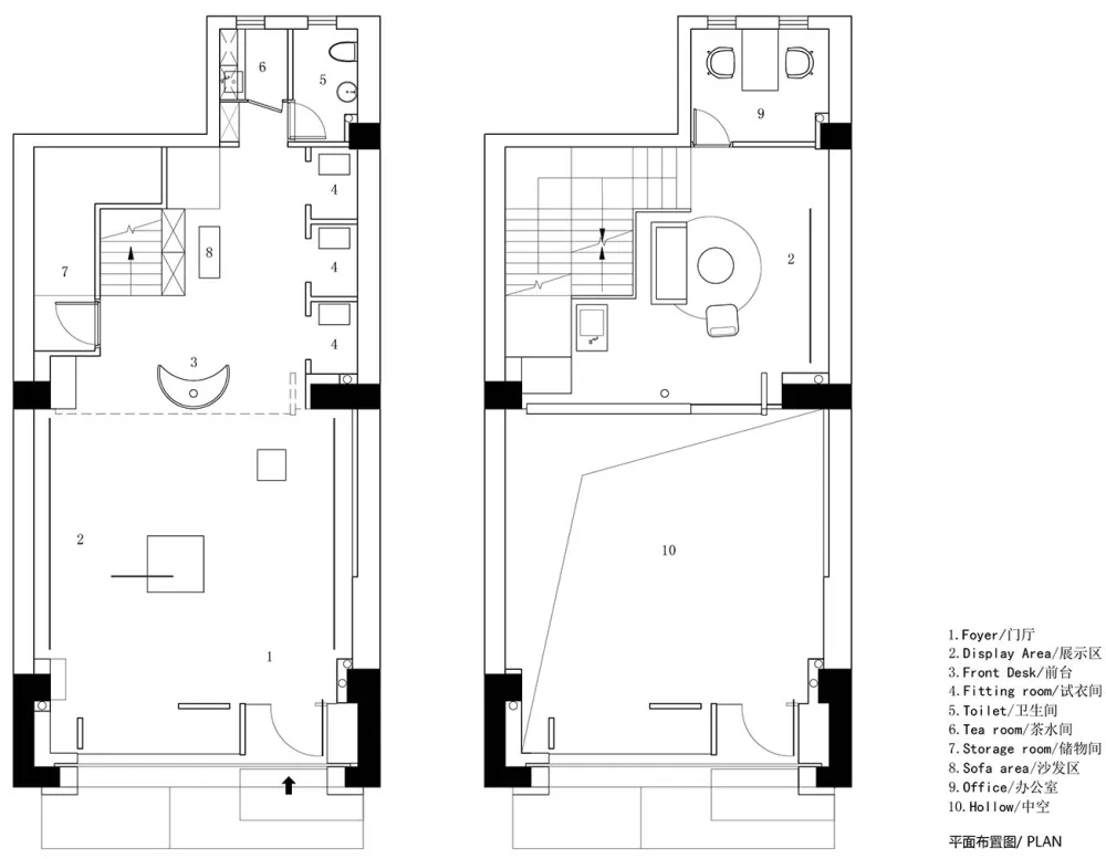
▼平面布置图,layout plan ©艾克建筑设计
项目名称:衍生-TRONGYEE设计师品牌集合店
设计机构:AD ARCHITECTURE∣艾克建筑设计
总设计师:谢培河
设计团队:艾克建筑
项目地点:广东汕头
建筑面积:90平方米
主要材料:微水泥、手工漆、金属、玻璃
设计时间:2019年10月
竣工时间:2019年12月
摄影师:欧阳云

