感谢来自 万社设计 的有机餐厅项目案例分享:
Voisin Organique邻舍有机餐厅是一家主打Contemporary Chinese Cuisine(当代中国料理)的“farm to table”有机餐厅,以古典美学为灵感,结合自家欧盟有机认证农场种植的食材,将古法中国菜与国际化的fine dining 的仪式感相融合。本项目坐落于深圳福田区的深业上城,委托方希望整个空间能同时拥有一个酒吧区、一个高级正餐区,同时亦需要面积110平米的厨房操作间。
Situated in Upper Hills, Futian District, Shenzhen, Voisin Organique is a farm-to-table restaurant features contemporary Chinese cuisine. The restaurant draws on classic aesthetics, uses ingredients grown in its ECOCERT-certified farm, and integrates age-old Chinese cuisine with fine dining experiences. The owner entrusted Various Associates to conceive the interiors, requesting a lounge, a fine dining area and a 110-square-meter kitchen within the space.


外立面是高耸的铜色墙,为室内遮挡了刺眼的户外光线;特制的玻璃凸透镜,让人不禁对店内产生好奇。
The restaurant has a towering bronze facade, which helps to block out the glaring sunlight, while the row of bespoke convex lenses on it triggers people’s curiosity about the interior.


高低差、闪光的巨型管道、拐角、黑暗空间,结合品牌本身的理念和对自然环境的追求,构成了一个在峡谷间野餐的故事 :
Taking into account site conditions such as height difference, the giant gleaming pipe, corners and the dark space, and combining these with the restaurant’s brand concept and its pursuit of a natural environment, Various Associates envisioned a concept story of having picnic in valleys, and regarded it as the design thread.
“ 峡 谷 漫 游 ”
“Wandering in Valleys”

峡谷漫游的概念,意为在山野中的随心探秘。
The interior space was approached based on the concept of “wandering in valleys”, indicating a free exploration in wild nature.

进入室内的酒吧区域,仿佛瞬间置身峭壁嶙峋的山谷之间:低矮处很低,而高处又如同悬崖般需要仰视;低矮的天花中间还有一道深邃的沟壑直达顶端,仔细一看,不知从何而来的光影在沟壑的最上方洒下。
Entering the lounge area, people may feel like they are suddenly brought into a valley, with steep hills in between. The ceilings show great height discrepancy. Some are as high as precipices, attracting people to look upwards. Among two suspended ceilings, there is a deep gully that extends up to the top, where light from nowhere shines downwards.

如何营造两处就餐空间不同的氛围和体验,并将之顺畅自然地连接起来。这些问题在万社团队第一次考察现场时,得到了灵光一现的巧思。
As for how to create distinctive ambience and experience in the two dining areas and link them smoothly, a brilliant idea popped up when the design team visited the site the first time.

项目地是一个高度较高且漆黑的L型空间。一进大门,就直面一个挑高的大空间,上方横着一个不可以拆卸的巨型烟道,其防火棉的反光质感在空旷的空间里给人带来了震撼的视觉感受。
The site is a high and dark L-shaped space. Inside the entrance is a large double-height area, above which lies a huge flue which can’t be dismantled. The fire-resistant material wrapping the flue glitters, which produces striking visual effects in the expansive space.

打开手电筒一照,只看到管道防火棉的反光质感,局部的反光打亮了一部分空间,有种金属矿石被勘探到的错觉。
Opening a flashlight and shining it onto the flue, people can see the fireproof covering reflecting light and brightening a part of the space, which creates an illusion that a metallic mineral was prospected.


整体空间从天花到墙面,大面积使用了银箔,这银色哑面的质感让整个空间里反射散漫着点点光晕、照映着模糊的人影,如身在雾里一般。
From ceilings to walls, large areas of the interior surfaces are finished with matte silver foil. It diffuses light throughout the space and reflects dim human figures, making people feel like they are in the mist.

“清风徐来,雾气氤氲,映着微红的余晖,我们坐在山谷里喝着小酒野餐。”这便是酒吧区域,银的质感加上微红的色调伴随着顶上洒下柔和的光。
In the lounge, the silver material, the light red hue and the soft light that falls from above are perfectly fused together. In this way, Various Associates hopes to provide people with a fabulous experience of drinking in a “valley” awash with gentle breeze, mist and glow of sunset.


外立面上的圆洞,为室内引入些许阳光,连接着里外两个世界。
The round holes on the facade introduce daylight into the space, and at the same time connect the inside and outside.


炽白的光束顺着孔洞照射进来,映的里面的幽暗那么的不真实,仿佛身处另一个世界。
Bright light filters in via the holes, making the dark interior appear unreal, just like an otherworldly place.

感到好奇的人们可以从圆洞往里看,客人们也可以从里面往外看,两者的互动为这庄重的立面添加了许多趣味。
The holes allow the curious people outside to look in and the diners to look outward. Such interaction adds playfulness to the sedate facade.

过道上充满了仪式和神秘感。沿着有光的通道往更深的地方前进,慢慢步入一个更加深邃隐蔽的另一个空间。
The passageway is filled with a sense of rituality and mystery. Walking deep along the passage with light, people will encounter a hidden space.

拐角过后的空间一片黑暗,当人拿着手电筒在空间里扫视,仿佛是在原始山体里探险-这便是隐藏在深处的高级正餐区。
The space concealed behind the corner is gloomy, which serves as fine dining area. Sweeping a flashlight in it, people would feel as if they are exploring in a primitive hill.


缓缓步入,一个转身,透着暗红色的天顶引入眼帘,在极黑的空间里,仿佛是进入一座红彤彤的矿山洞口底下。
Slowly stepping into this space and turning around, a dark red concave ceiling leaps to the eye, which seems to bring people beneath a red mine pit.

高级正餐区内,暗红色的天顶,粗旷的墙面材料,纯黑色的桌椅,透明的杯具,不同的元素交织在一起,形成一个带有仪式感及高级感的空间。
Within the fine dining area, different elements including the deep red ceiling, rough wall surfaces, pure black furniture and transparent glasses are interwoven together, which renders the space classy and endows it with a sense of occasion.

区别于空间里的黑,红色,在一堆烛火和黑色材质的照映下,折射出独特的感官体验。
In the dark hue-dominated space, the striking red collides with candle flames and black materials, generating unique sensory experiences.



幽深的暗黑中、皎洁的白光,野性粗犷又奢华,这是高级正餐区营造的更极致的体验。
The deep darkness and the white light produce a rustic yet luxurious ambience, which contributes to creating an extreme experience in the fine dining area.

在棕红色天顶的映射下,远处影影绰绰的冷色光从天顶孔洞或缝隙中落下,显得一切是那么的纯净与美好。
Complemented by the brownish red ceiling, cold light shines downwards from the holes and gaps on the top, injecting pureness and beauty into the interior.

黑暗粗糙的肌理漆强化了原始粗犷的氛围,角落上的冷色光为空间添加了一丝自然的气息。
The black and rough texture of paint strengthens the primitive and rustic atmosphere, while the white light on the corner adds a sort of natural ambience to the space.


在这里,极尽抽象化的空间设计,没有丝毫自然气息的前卫材料,却给食客带来了有关峡谷和野餐的无穷想象空间。富有建筑逻辑的务实理性,在概念故事的脉络中穿梭,亦附上了一层浪漫主义的唯美。
Though fully adopting abstract design languages and utilizing no avant-garde material with natural quality, Various Associates successfully created a space that evokes imagination, in which diners can immerse themselves in enjoying picnic in a valley. Besides, the design incorporates rational architectural logic whilst taking the concept story as the thread, which gives the space a romantic aesthetic.






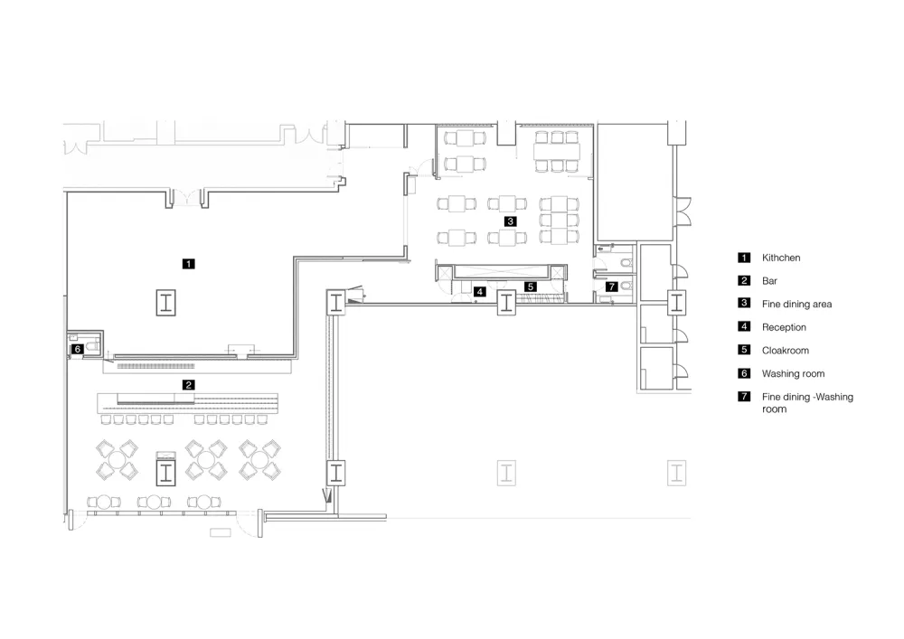
∇ 平面图 plan

完整项目信息
客户:Voisin Organique 邻舍有机餐厅+V.O. Lounge
地址:中国,深圳,福田区,深业上城L2层S209铺
完工时间:2019.11
设计团队:Various Associates | 万社设计(https://various-associates.com/)
项目负责人:林倩怡
主设计师:杨东子
设计师:李诗琪,唐静静
摄影师:邵峰
Project info
Project name: Voisin Organique Restaurant & Lounge
Location: S209, L2 floor, Upper Hills, Futian District, Shenzhen, China
Completion time: Nov., 2019
Design team: Various Associates (https://various-associates.com/)
Project leader: Qianyi Lin
Main designer: Dongzi Yang
Designers: Suki, Jingjing Tang
Photographs: Shao Feng

