60㎡ 意味着什么?
60㎡ 是否等于60㎡?
关于西安,大可不必详情叙述,人们对十三朝古都的史诗魅力与文化印象早已如数家珍。尽管再无大唐盛世,但流转千年的文化底蕴、人文美学与东方精神,成为后世习之、取之的粮仓,也跟随着城市发展与创新,塑造了当代人文生活典范。
西安上城·国际loft公寓样板间,与西安千古风情和历史积淀的文化风潮中,用60㎡诠释现代生活空间不以大小博弈,不随潮流定义,旨在遇见最适合的生活温度,心安便是家。
▼双钥匙LOFT – 无印良品风格,简约不简单
60㎡ 意味着什么? 60㎡ 意味着在快节奏的城市生活中,相比起琼楼林立的摩天公寓楼,小型公寓楼的设计是安放的年华,是置身于大都市中不多不少的灵魂栖息地,它有温度、更具人性化,更有幸福感……
为了更好的渲染空间氛围,整体延续森林绿作为主题色,搭配原木色木饰面,并在设计上加入了东南亚度假休闲元素,以及随处可见的绿植都让整个空间看起来更加随性自在,给人置身于大自然的奢华感受。
因此设计师孙蕊在梳理空间设计逻辑中,放弃了古都传统建筑设计风格,而是以当代美学与生活方式照见东方人文,用现代人的审美意识传承长安精神。双钥匙loft户型无印良品风的简约含蓄之美就映照了大多数人们所追崇的生活本质——懂生活,才懂生活美学!
卧室区域通过地面波西米亚风地毯进行空间划分,在饰品选择上,巧妙融入东南亚常见的动物图腾,搭配色调一致的棉麻质地米色床品、森系绿色抱枕,与格栅背景墙、镜面装置相结合,丰富空间层次感与设计感。
在整体感官视觉重塑上,为了以小见大,扩充空间感和层次感,无印良品素净简练的木质元素与白色穿插呼应形成空间准基调之前,双钥匙户型上下两层的空间属性划分定义为一层男性、二层中性,兼顾小空间的功能性,主要分为休闲区、工作区、多功能区域,并利用柜体组合满足收纳,来维系清爽整洁的画面感。
一层描摹了一位商业摄影师的居住空间,简洁干练,黑白分明,彷如严谨的完美主义者,于任何细微之处生出的高级感,其设计上都在强调生活者精神层面的意识活动。
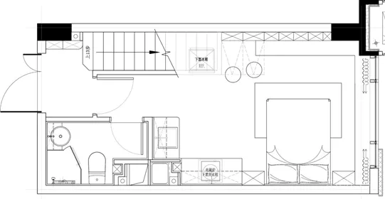
▼一楼平面图
▼1F卧室实景图
因此,以低饱和灰蓝色系填充的家具布艺材质、几何艺术与人物形象刻画中从世界各地收集回来的艺术装置,营造了整个空间如沐春风般的温润气质,装载了一位单纯美好的摄影青年生活者的诗与远方。
而作为一名更善于发现美的摄影师,他所关注的事物焦点往往与众不同。设计师并不想掩盖掉生活者对于空间的探索欲望,在克制美学中找到这种微妙平衡,使简约明亮的空间设计呈现出生活者的人生理想状态。
正如卧室床头上方那幅摄影佳作,休闲区所摆设的摄影器材,以及个性独特的艺术装置,每一处都在让设计融入生活,让生活气息更具有温度。
二层的整体基调保持了一层主题设计,但视觉上跳脱一层的生动韵律。设计师想在这里营造质朴恬淡的日式森系感,辅以日系色调铺垫,使得整体空间画面较为暖和平静,温馨素雅。
走道尽头,精心设置的梳妆功能座墩,悬挂的波西米亚风格编织挂毯,与餐厅壁画、卧室设计辉映成趣。黑白条纹餐盘搭配绿色棉麻餐巾,藤编餐垫,绿色水晶石作为点睛之处,每个细节都是贴近自然的一小步,最终营造一个深呼吸的森林空间。
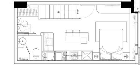
▼二楼平面图
大铄设计(DESIO DESIGN)创始人、设计总监,2014年创立于上海,为高端地产样板房、高档住宅、会所等提供室内和装饰陈设设计。从业十余年来,一直专注于室内设计工作,坚持秉承”设计创造价值”的初心,在提升以及满足客户需求同时,将原创精神融入到每个项目中。作为女性设计师,孙蕊擅长利用极具现代感的西方设计理念,创造深受东方乃至亚洲人喜爱的居住和室内空间。
▼孙蕊 (大铄设计DESIO DESIGN创始人)
主要代表作品 | Projects
▼江河汇A户
▼联排别墅
项目信息 Project Information:
项目名称|西安上城loft公寓样板间设计
设计单位|DESIO大铄设计
甲方单位|西安置业有限公司
单钥匙设计风格|现代简约
双钥匙设计风格|现代简约
项目地点|陕西省西安市
单钥匙项目类型|LOFT公寓样板房
双钥匙项目类型|LOFT公寓样板房
单钥匙项目面积|60㎡
双钥匙项目面积|60㎡
设计总监|Sherry 孙蕊
空间设计|邱轶雯、章力、朱文康
陈设设计|缪亚平、梅琴琴
摄影师|赵宏飞
双钥匙设计造价|2500元/m²
双钥匙主要材料|实木、布艺软包、爵士白大理石、本色木饰面、黑钛拉丝不锈钢、银镜、本色木地板
设计时间|2019年7月
完成时间|2019年9月

