通过简约的设计实现简单而有意识的生活。这是我们最欣赏的体系结构。有了更少的东西,更少的注意力和更多的沉默,我们就能过上简单而平静的生活。
CHouse 是西班牙建筑师哈维尔·穆勒( JavierMüller)设计的宽敞且低调的住宅。
对现有空间的完整抽象,我们简单地将木材的记忆与历史和房屋的各种干预联系起来。单一的流体空间定义了底楼,并以几何形状和灯光标记了不同的房间。三层楼之间的空间具有视觉上的连续性,该空间由大窗户连接起来,而大窗户似乎是客厅的主角。新的壁炉空间和中央楼梯确保了垂直的视觉和程序连接。
木质的三扇门作为“框架”与房间水平地板和标出水平差异的楼梯对话。抛光混凝土的连续地板和不锈钢的材质在白色墙面上提供了一系列形状,几何形状和纹理的对比。













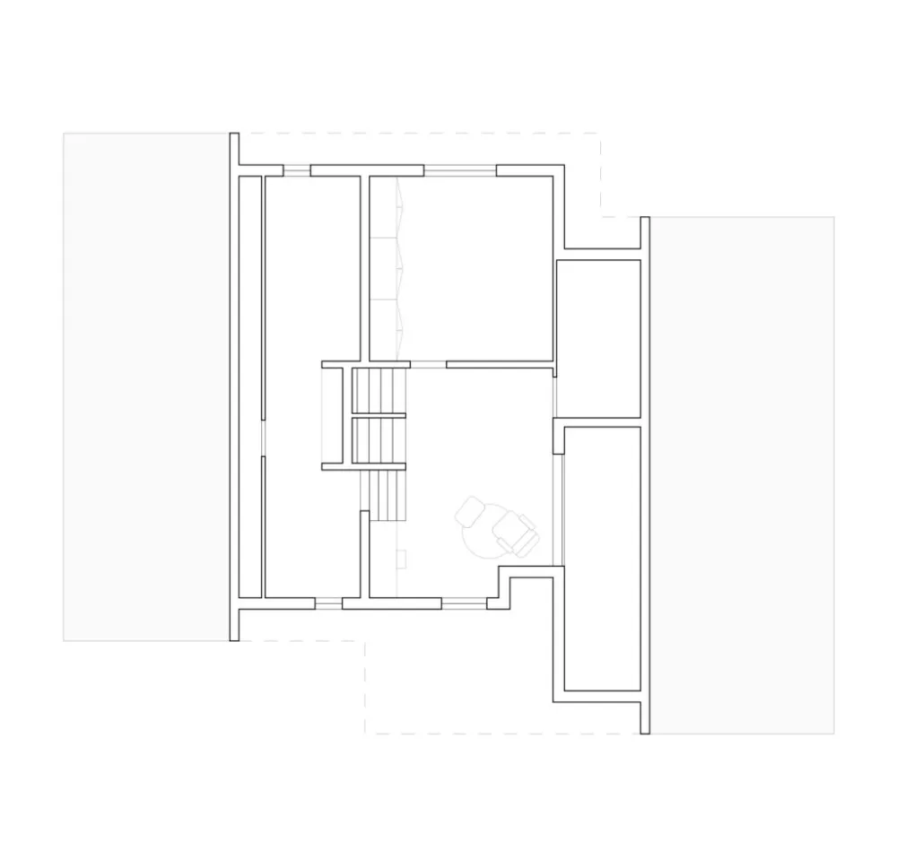
∇ 一层平面图

∇ 二层平面图

∇ 结构剖面图

∇ 立面图

∇ 立面图

主要项目信息
项目名称:C House
项目位置:瑞士
项目类型:住宅空间/极简主义住宅
完成时间:2019
项目面积:1,143.5平方米
设计师:哈维尔·穆勒( JavierMüller)
摄影:Think Utopia

