LIGHT FALLS坐落在伦敦肯辛顿的一条绿树成荫的道路上,伦敦事务所FLOW Architecture与伦敦建筑师MAGRITS合作,彻底重建这座维多利亚式住宅以应对增加日光和空间流动性的需求,翻新后的建筑从外观上看可能是一样的,但在内部却体现了当代的精致。该住宅以雕塑般的采光井为中心,将日光引入建筑物的核心,因此该住宅得名“光之瀑布”。该住宅有五层,包括一个新的地下室和一个两层高的后部扩建部分,可轻松满足客户闲适的生活要求,极简的风格感和不断增长的艺术收藏。
Located on a leafy road in Kensington, London, this recently renovated Victorian terraced house stands out in its radical approach to inhabiting historical housing. Thoroughly reconstructed in response to the need for increased daylight and spatial fluidity by London-based practice FLOW Architecture in collaboration with London-based architect MAGRITS, the renovated building may look the same from the outside but revels internally in contemporary sophistication. Centred on sculptural light well that ushers daylight deep into the building’s core, hence the residence’s name “Light Falls”, the dwelling smoothly unfolds on five floors, including a new basement and a double-height rear-extension, comfortably catering to the client’s laidback living requirements, minimalist sense of style and growing art collection.


这幢四层楼高的联排别墅最初建于1851年,其分区布局和昏暗的光线上体现了维多利亚时代的住宅建筑风格。面对这种情况,设计团队着手彻底重新配置内部布局,仅保留面向街道的立面,以符合该地区的规划限制,这实际上意味着拆除建筑物并从头开始进行重建。
Originally built in 1851, the four-storey, end-of-terrace house exemplified Victorian residential architecture in its compartmentalised layout and poor quality of natural light. Faced with such conditions, the design team set upon completely reconfiguring the internal layout keeping only the street facing façade intact in line with the area’s planning restrictions, which in effect meant demolishing the building and reconstructing it literally from scratch.


在建筑的中心,建筑师设计了一个细长的采光井,一直延伸到抬高的底层,以及一个开放的楼梯,从上层一直延伸到底层和新的地下室,两者都以雕塑的方式构思,并由大型无框架天窗覆盖。这两个大胆的设计增强了垂直堆叠的居住空间的流动性,并允许自然光渗透到整个建筑物的核心。“Light Falls完美地表达了该房子的灵魂,”设计团队解释说,“日光的层叠效应,将垂直运动引入建筑中心,使内部空间更加活跃,并消除了室内外空间之间的边界。”
At the centre of the building, the architects have incorporated a slender light well extending down to the raised ground floor and an open staircase that goes all the way from the upper floors down to the lower ground floor and the new basement below, both of which have been conceived in sculptural terms and crowned by large frameless skylights. These two bold gestures enhance the fluidity of the vertically stacked living spaces and allow natural light to percolate throughout the core of the building as reflected in the project’s name. “The name Light Falls perfectly expresses the soul of the house”, explain the design team, “the cascading effect of daylight, brought in vertical motion to the centre of the building, enlivens the interior spaces and dissolves the borders between outdoor and indoor spaces”.


室内和室外之间的视觉联系也很丰富,以全玻璃扩展为中心,全景推拉门将餐厅和客厅与露台和花园连接起来。柔和弯曲的露台与采光井和楼梯的雕塑几何形状相呼应,可容纳一棵大型核桃树,这棵核桃树主导着景观花园,有机形状的花盆和蜿蜒的小径也是如此。
Visual connections between indoors and outdoors also abound, centred on an all-glass extension featuring panoramic sliding doors connecting the dining area and living room above with the terrace and garden on the back of the property.Echoing the sculptural geometry of the light well and staircase, the gently curved terrace accommodates a large walnut tree that dominates the landscaped garden, as do the organically shaped planters and serpentine footpath.

























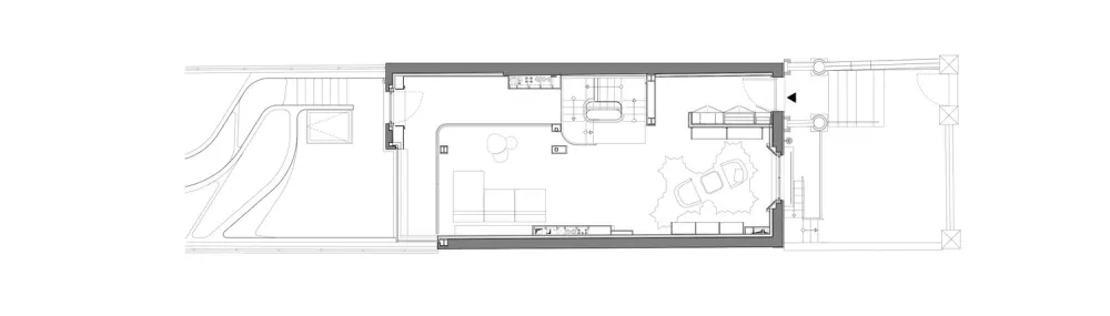
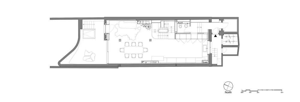
∇ 平面图


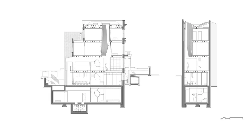
∇ 剖面图

∇ 剖透视图

主要项目信息
 项目名称:LIGHT FALLS
 项目位置:英国伦敦
 项目类型:建筑改造/住宅改造
 项目面积:290㎡
 完成年份: 2019
 设计公司: FLOW Architecture、MAGRITS
 灯光设计:Mindseye
 摄影:NAARO


