这套公寓位于意大利都灵华伦天奴公园(Valentino Park)前的一栋50年代末的建筑的五层。东南向的暴露使得公寓非常明亮,所有通向外部的开口都能欣赏到都灵山和波河的美丽全景。

产生这个项目的想法是不想使用内部门。
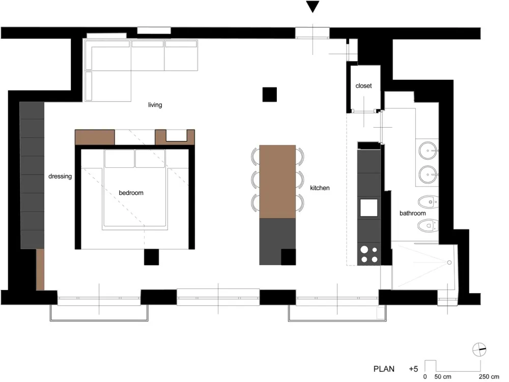
在不使用门和隔断的情况下分配所有的空间和起居/夜间区域功能,一直是这种干预的挑战。现浇混凝土的立方体,是唯一的分布单元。

这个体量容纳了卧室,与厨房、客厅、更衣室和餐厅分离。
住宅居民的路径是围绕着这个元素产生的。
空间在房子的探索过程中被“揭示”出来。

建筑结构有助于强调这种分布,因为Corso Massimo d ‘Azeglio上的柱子从立面向后设置。
这种不规则的结构创造了一个沿着公寓运行的虚拟走廊,从衣柜到宽敞的淋浴间,通过增加自然采光的蛋白石玻璃与公寓的其他部分隔开。混凝土“洞穴”高出地面10厘米。

通过在地板上使用镜子,人工制品变得轻盈漂浮。地板采用透明环氧树脂直接浇铸在找平机上而成。
这种树脂的出现谴责了设计师和客户所参与的“工业”性质。

厨房是无烟煤做的,桌子是橡木做的。这张餐桌穿透了工作家具,拥抱了结构的支柱。
浴室呈细长的形状,由混凝土架子组成,架子是脸盆的支撑物。淋浴采用白色环氧树脂,反射并增加了自然光,整个无烟煤浴室。



建筑师Blaarchitettura Location Turin
位置:意大利
摄影师:Beppe Giardino

