NIA SCHOOL是一个600平方米的学习空间,旨在通过设计释放2至8岁儿童的创造潜力。在墨西哥城的第一个试点,我们试图通过各种环境来支持儿童的成长,让他们通过互动学习来发展他们的技能。
The 600 ㎡ learning space, NIA SCHOOL, is created to unlock the creative potential of children between two and eight years old with the use of design. With this first location in Mexico City, we seek to support the growth of children through various environments that allow them to develop their skills through interactive learning.


该区域允许儿童在不同的灵活空间之间自由移动。该区域允许儿童在不同的灵活空间之间自由移动。设置有活动空间,以锻炼身心,以及两个学习室,将自然融入室内空间。照明系统旨在创造一个舒适和自然的环境。接待处配有符合人体工程学的儿童家具,包括木芽,类似于自然的座椅以及在不同高度的架子,并配有书籍,可让该空间随时成为学习的场所。
The area allows children to move freely between different flexible spaces. The setting has spaces for movement in order to exercise the body and mind, as well as two learning rooms that integrate nature into the interior spaces. The lighting systems are designed to create a comfortable and natural environment. The reception has ergonomic furniture for children including wooden buds, seats that resemble nature and shelves at different heights with books that allow the space to become a learning station at all times.


教室的书架由用于学习材料的几何木制模块和带有六角形地毯的阅读空间组成,形成了一个愉快而温暖的学习环境。通过创建一个探索,实验和发现的游戏环境来实现这种运动和穴居的感官空间。在这个区域的学习是通过动态游戏来实现的,使用不同的元素为孩子们探索、攀爬、跳跃和建造,发展不同的技能。
The classrooms have shelves consisting of geometric wooden modules for learning material and a reading space with hexagonal rugs, forming a pleasant and warm learning environment is. This sensory space for movement and cohabiting is achieved through creating a playing environment for exploration, experimentation and discovery. The classroom has soft tactile materials such as cork and oak wood. The learning in the area is achieved with dynamic play using different elements that are made for children to explore, climb, jump and build with, developing different skills.










∇ 场地位置

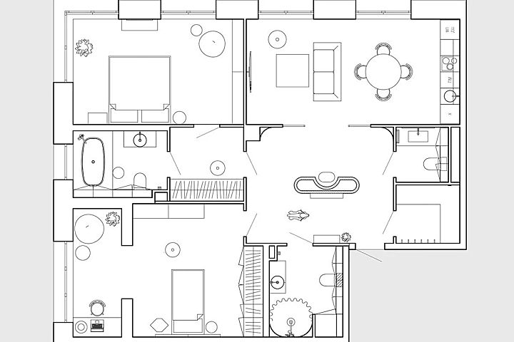
∇ 地面层平面

∇ 一层平面

∇ 二层平面
∇ 剖面图




∇ 细部轴测图



完整项目信息
项目名称:Nía School
项目位置:墨西哥
项目类型:教学空间/儿童学校
项目面积:605平方米
完成时间:2019
设计公司:Sulkin Askenazi
景观设计:Fernanda D’Acosta, Apolinar Flores
摄影:Aldo C. Gracia

